查看完整案例

收藏

下载
施拉赫贝尔海姆新市政厅坐落于一座阿尔萨斯小村庄之中,其设计以水平延展与通透性为核心,力图融入这片壮丽的林地环境。木结构外部规则而清晰的框架强化了建筑的公共属性,同时确保了一种超越流行的、恒久的美学表达。松焦油形成的深色、丝绒般的防护涂层,以及比例精致而优雅的木柱尺度,既呼应了村庄传统的木构半木结构,也回应了场地中的树木意象。耐候钢拉伸网状立面赋予建筑立面近似织物般的质感,其色调则呼应了当地历史村落中大量存在的石材(孚日砂岩)的自然色泽。整体建筑既当代又扎根于地域,既严谨又温和,仿佛自始便存在于此。
The new town hall of Scharrachbergheim, a small alsatian village, seeks horizontality and transparency to integrate into this magnificent wooded site. The external regular framework of the wooden structure affirms the public dimension of the building, while ensuring a timeless aesthetic, out of fashion. The dark and velvety tint of the protective pine tar and the refined and elegant sizing of the wooden columns echo both the village’s colombages and the site’s trees. The corten steel expanded mesh cladding gives an almost woven appearance to the facade and the hue recalls the tones of local stone (Vosges sandstone) very present in the historic village. The ensemble is contemporary but rooted, rigorous but gentle. As if it had always been there.
▼建筑与周边环境,Building and landscape © 11h45 – Florent Michel
▼建筑鸟瞰,Aerial view of the Town Hall © 11h45 – Florent Michel
▼市政厅沿街视角,Town Hall street view © 11h45 – Florent Michel
▼建筑整体外观,Overall view of the Town Hall © 11h45 – Florent Michel
▼入口前的小广场,Small forecourt in front of the entrance © 11h45 – Florent Michel
建筑中央,一处拔地而起的体量为接待大厅提供了宽敞而充盈的室内空间,这里是新市政厅的核心。同时,这一体量更承担着面向整个村庄的标志性角色,象征着未来市政厅应当构建的全新公共中心性。体量顶部设置了一枚铜制风向标,融合了村庄的两枚纹章,在延续传统建筑语言的同时,也重新唤起人们对符号与象征所蕴含的、近乎童真的愉悦与惊奇。这一中央体量同时在建筑的自然过度通风中起着关键作用,为夏季热舒适性作出积极贡献。建筑采用生物基保温材料,具备显著的热相位延迟性能,并与混凝土楼板的热惰性相结合,使建筑在四季中都能保持舒适,仅需极少的供暖能耗(达到被动房标准),且无需任何主动制冷系统。室内隔墙采用夯土砖(adobe)砌筑,部分裸露,部分覆以白色土质饰面。这些砖块由距施工现场约20公里的兰特(Lanter)手工砖厂制作,使用黄土与稻草砂浆砌筑,工艺与阿尔萨斯传统的泥草填充建造技法(torchis)一脉相承。
▼爆炸图,Exploded axonometric diagram © AL PEPE architects
At the center of the building, a built emergence offers a generous interior volume to the reception hall, the heart of this new Town Hall. But it acts above all as a village-wide signal for this new centrality that the future Town Hall must constitute. A copper weathervane incorporating the 2 blazons of the village is installed at the top and completes this connection to traditional architecture while reconnecting with the almost childish pleasure and wonder of signs and symbols. This emergence is also crucial for natural over-ventilation of the building, actively contributing to summer comfort. The insulation is bio-based and provide a strong thermal phase shift, coupled with the inertia of the concrete slab, for a comfortable building in all seasons, requiring very little heating (Passivhaus level) and zero active cooling. The interior partitions are made of raw-earth bricks (adobe), left exposed or covered with a white earth finishing. These bricks, made by the artisanal brickyard Lanter (20km from the construction site) are masonry with a loess and straw mortar, like the torchis technique of the Alsatian constructive tradition.
▼建筑主立面,Building main facade © 11h45 – Florent Michel
▼建筑侧立面,Building side facade © 11h45 – Florent Michel
▼主立面近景,main facade close view © 11h45 – Florent Michel
▼侧立面近景,Side facade close view © 11h45 – Florent Michel
▼檐下空间,Under-eaves space © 11h45 – Florent Michel
▼屋顶与风向标,Rooftop and weathervane © 11h45 – Florent Michel
▼立面细节,Buiding facade detail © 11h45 – Florent Michel
建筑整体结构完全由木材构成,包括主体结构、木框架墙体、窗框以及室内饰面。主要梁跨越建筑的整个宽度,使空间在无中间支撑结构的情况下获得高度的灵活性,便于未来功能调整与多样化使用,宛如一座木构皇冠大厅。本地木构架在整个建筑中保持外露状态。在议会与婚礼大厅内,结构通过优雅的形变塑造出一座木质拱顶,为这一象征性空间赋予庄重与充盈的仪式感。弧形梁由实木直接切割成型,延续了祖传的建造技艺,无需胶合、弯折或其他复杂工艺。数字化技术的介入,使梁的截面形式得以多样化,从而在双向上形成变化的结构惯性拱顶。
▼木结构弯梁分析图,
Analysis of curved timber beams
© AL PEPE architectes
The entire structure is made of wood (framework, wooden frame walls, windows frames and interior finishings). The main beams span the entire width of the building allowing freedom of development and subsequent uses without intermediate structure. A kind of wooden Crown Hall ! The local wood framework is left exposed throughout the building. In the the council and weddings hall, the structure is elegantly deformed to create a wooden vault giving fullness and solemnity to this symbolic space. The curved beam are made of solid wood cut, thus resuming an ancestral savoir-faire, without needing any gluing, bending or other complex techniques. The digitization allows a variety of profiles creating a variable inertia vault in both directions.
▼接待大厅空间,Reception hall interior © 11h45 – Florent Michel
▼大厅顶部,Central space above the hall © 11h45 – Florent Michel
▼室内空间概览,Interior overview © 11h45 – Florent Michel
▼办公空间,Office space © 11h45 – Florent Michel
▼办公空间内部,Office space interior © 11h45 – Florent Michel
▼茶水间内部,Break room interior © 11h45 – Florent Michel
▼生土砖内墙,Raw earth interior wall © 11h45 – Florent Michel
▼木结构室内细节,Exposed wooden structure interior detail © 11h45 – Florent Michel
议会与婚礼大厅通过两扇大型推拉门向室外敞开。这种室内外的连续性赋予空间多样化的使用方式,并将建筑与这一全新的公共交流与聚会场所直接连接,使其真正服务于所有人的日常生活。
The council and weddings hall opens generously towards the outside through two large sliding frames. This interior/exterior continuity allows a varied use, and a direct connection with this new space of meeting and conviviality, for the use of all.
▼议事与婚礼大厅,Council and wedding hall © 11h45 – Florent Michel
▼议事与婚礼大厅看向室外,Council and wedding hall towards landscape © 11h45 – Florent Michel
▼建筑立面夜景,Building facade night view © 11h45 – Florent Michel
▼夜晚立面近景,Building facade close view at night © 11h45 – Florent Michel
▼总平面图,Master plan © AL PEPE architects
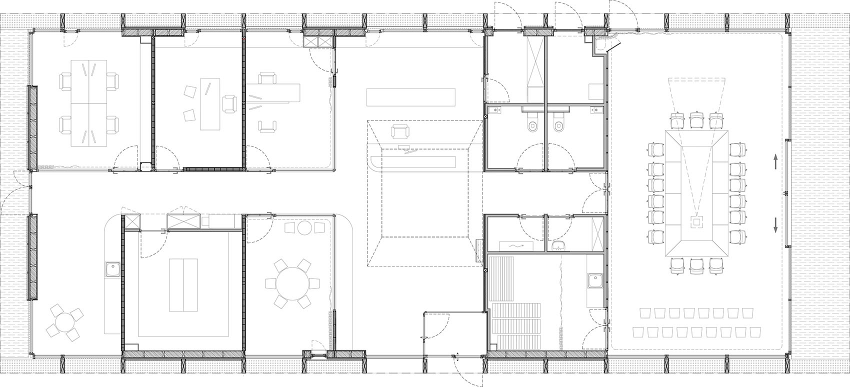
▼平面图,Floor plan © AL PEPE architects
▼剖面图,Section © AL PEPE architects
Client : Commune of Scharrachbergheim-Irmstett
Architects : AL PEPE architectes – Aude LECINSKI & Pascal PHILBERT
Project team : CAPEM (Structure) / SOLARES BAUEN (Fluides / Thermique) / C2BI (Economiste) / Françoise MAIRE (Paysagiste) / SCENE ACOUSTIQUE (Acousticien)
Place : Scharrachbergheim – Irmstett
Surface : 300 m²
Cost : 900 000€ HT
Timeline : Competition september 2021 – Completion november 2024
Thermical performance : RE2020 – Passivhaus
Materials : Wood / Raw earth / Concrete
客服
消息
收藏
下载
最近










































