查看完整案例

收藏

下载

翻译
Architects:suatudio
Area:131m²
Year:2025
Photographs:Tristan Salim
Lead Architects:Gagas Firas Silmi, Arif Rachman Hidayat, Adhietya Orlandho Putra Sunarmo
Category:Houses
Lead Team:Gagas Firas Silmi
Design Team:Rahsya Afwan
Engineering & Consulting > Structural:Alite
City:Jawa Barat
Country:Indonesia
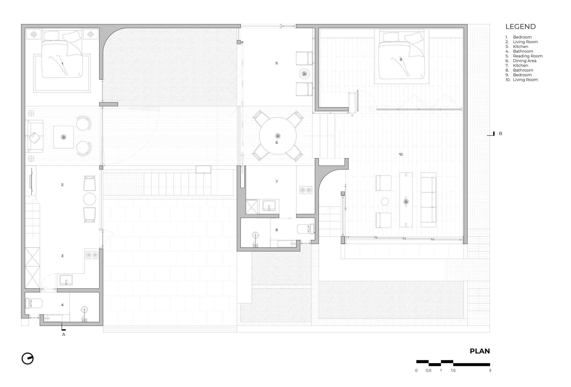
Text description provided by the architects. Rumah Tahu is a residential project located in Sumedang, Indonesia, designed for a single-family spanning two generations: an architect and his wife, and his parents. Rather than separating the household into independent buildings, the project is conceived as one architectural entity composed of two interrelated dwellings—the South Dwelling and the North Dwelling. This approach positions family relationships as the primary driver of spatial organization, rather than merely a programmatic outcome.
The South Dwelling occupies 36 m², with an additional 6 m² allocated for storage. Beyond serving as a home, it functions as an architectural experiment that reconsiders the widely replicated 36-square-meter housing typology in Indonesia. Typically built on a 72 m² plot and arranged in dense rows, this housing model often compromises access to natural light and ventilation. The project challenges the assumption that limited floor area must inevitably result in diminished spatial quality.
Designed for a tropical climate, the South Dwelling prioritizes natural light and cross-ventilation as essential components of a healthy living environment. Half of the 72 m² plot is deliberately retained as open space. Instead of placing the garden at the front—as commonly found in type-36 houses—the garden is positioned along the side of the building. This strategy creates a long, continuous outdoor space directly connected to the interior, allowing the interior, deck, and garden to operate as a single continuous living space.
Internally, the South Dwelling minimizes permanent partitions to enhance spatial continuity. Spaces requiring privacy, such as the bedroom and bathroom, are placed at opposite ends of the building, keeping the central area open and flexible for daily activities. The bathroom on the eastern end functions as a thermal buffer against morning heat, while the bedroom on the western side ensures greater privacy. The direct connection between the central living space and the garden further extends the perception of space beyond the building envelope. This arrangement allows the house to feel more spacious than typical 36-square-meter homes, which are often rigidly compartmentalized.
The North Dwelling is designed to remain connected to both the garden and the South Dwelling while maintaining a more enclosed character suited to its occupants. It is organized into two main zones: a semi-private zone and a private zone. The semi-private zone accommodates the dining area, kitchen, sitting area, and bathroom, and can be fully opened toward the side garden. The private zone contains the main bedroom and living room, separated by a sliding wall that allows the bedroom and living room to merge into a larger room during family gatherings.
Both dwellings are connected by a continuous ulin wood (Bornean ironwood) deck that extends across the site. More than a circulation path, the deck functions as a shared spatial platform where everyday interactions occur. Facing this deck and the garden, both houses feature large openings that can be fully opened. When opened simultaneously, the interiors, deck, and garden merge into a single continuous space, enabling shared use while preserving the autonomy of each dwelling.
Project gallery
客服
消息
收藏
下载
最近




























