查看完整案例

收藏

下载

翻译
Architects:MAKER architecten
Area:400m²
Year:2025
Photographs:Séverin Malaud
Lead Architects:Ana Castillo, Lieven De Groote
Main Contractor:Beneens
Sustainability Consultant:VITO
Category:Residential Architecture,Dorms,Renovation
Design Team:MAKER architecten
Client:VUB - Vrije Universiteit Brussel
Technical Engineer:VK architects + engineers
Country:Belgium
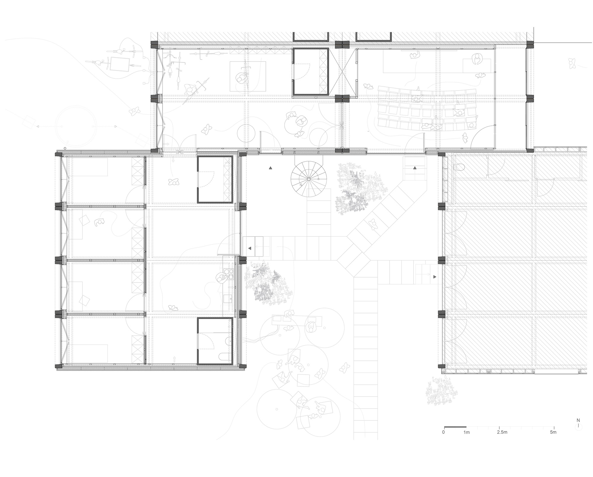
Text description provided by the architects. The more than 300 modular student dormitories on the VUB campus, designed by modernist architect Willy Van Der Meeren in 1972, were once at risk of demolition. Today, the twelve modules included in this project not only act as a catalyst for preservation but also guide the transition of the remaining buildings towards a circular renovation model.
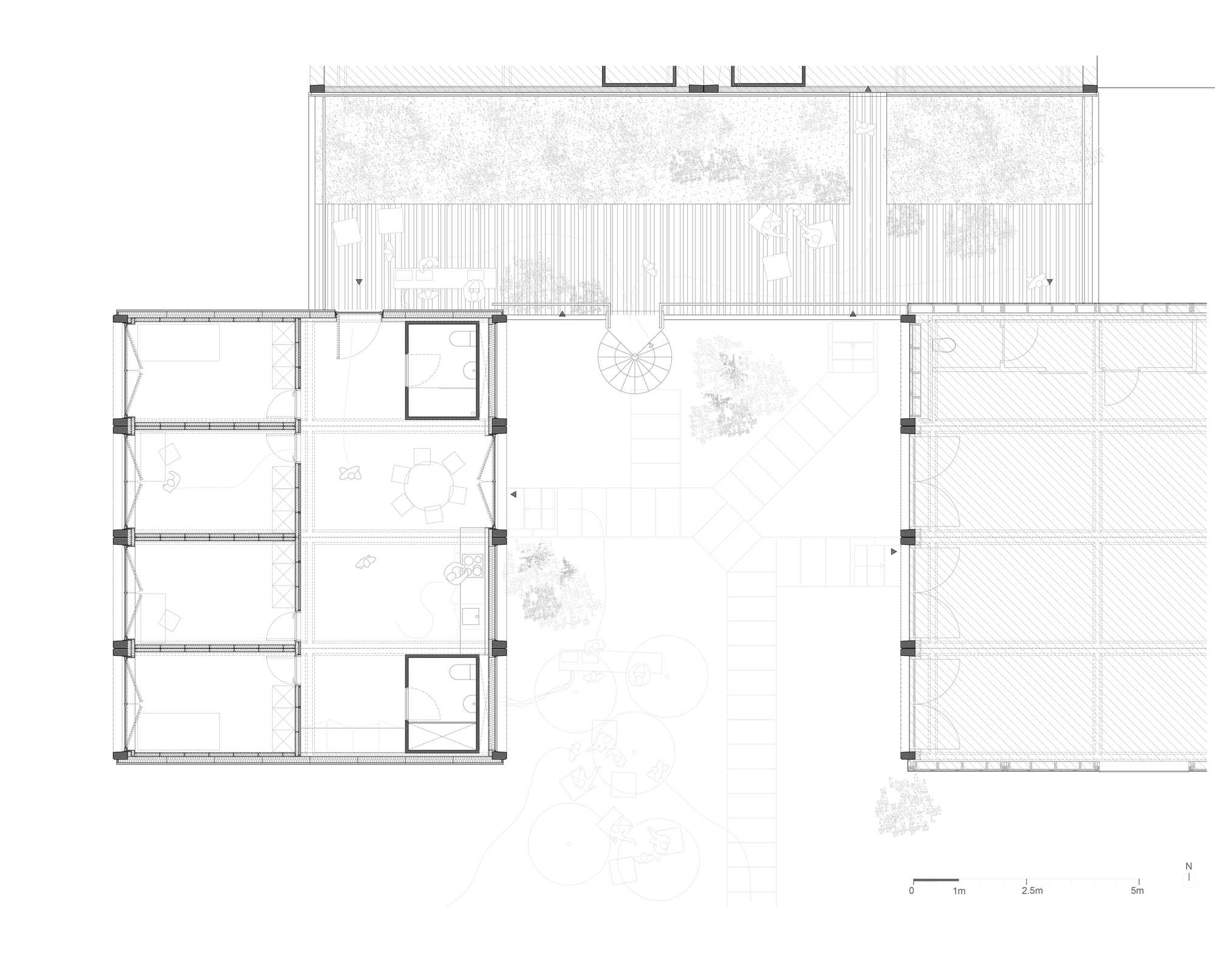
The intervention focuses primarily on preservation—specifically the concrete structures and sanitary units—and on the reuse of materials both on site (Fontex panels, concrete elements, and terrace tiles) and off site (carpet tiles, insulation, lighting, sanitary fixtures, and kitchens).
The project starts from a casco that meets basic needs and comfort requirements for any program. The strengths of the as-found condition—such as thermal inertia and modularity—are fully exploited and complemented by a high-performance envelope composed of bio-ecological materials. Reversible layers can be added to accommodate specific uses.
Three scalable renovation strategies are implemented to address different conditions. TENT minimizes material input by maximizing preservation, COCOON tailors comfort and energy consumption to specific uses rather than applying a uniform standard, and LAYERING emphasizes adaptive and demountable construction of the building envelope. Each strategy is evaluated using a set of tools based on four pillars: energy, heritage, sustainability, and economy.
The resilient framework of the modular structure enables the use of building kits composed of compatible and interchangeable components, assembled like a Meccano set. An open material bank is established—generic and scalable, yet adaptable to specific applications.
While the aim is to standardize solutions through modularity, the approach simultaneously enhances reuse potential and reduces financial impact by maximizing compatibility. This strategy fosters a dynamic, user-driven architecture—one that continuously reinvents itself in response to change and emerging challenges.
Form follows assembly and material availability. Like a machine à habiter, the renovation becomes part of an ongoing process of reassigning materials and functions.
Project gallery
客服
消息
收藏
下载
最近


























