查看完整案例

收藏

下载

翻译
Architects:Splinter Society
Year:2025
Category:Houses
City:Ocean Grove
Country:Australia
Text description provided by the architects. Coastal House in Ocean Grove is a development project designed as a large family home, with an enduring design approach that appeals to the local beach town property market. Commissioned by a local builder with a strong interest in natural, honest materials and the ability to achieve quality fabrication, the shared design and build approach focused on creating a robust home capable of weathering gracefully in a coastal environment, presenting a refined aesthetic that balances solidity with light-filled, open living spaces.
The site occupies an elevated position within Ocean Grove, set back from the beach and offering expansive southern views across the coastline. It is well connected to the local main street and amenities, while providing access to views and southern outlooks, protecting from prevailing winds, and maximising northern light.
The house addresses this with a semi-courtyard layout, where the building wraps around a central outdoor space featuring the pool. This arrangement shelters both private outdoor and interior areas and opens the living spaces to abundant northern sunlight, creating strong visual connections between the indoors and the courtyard.
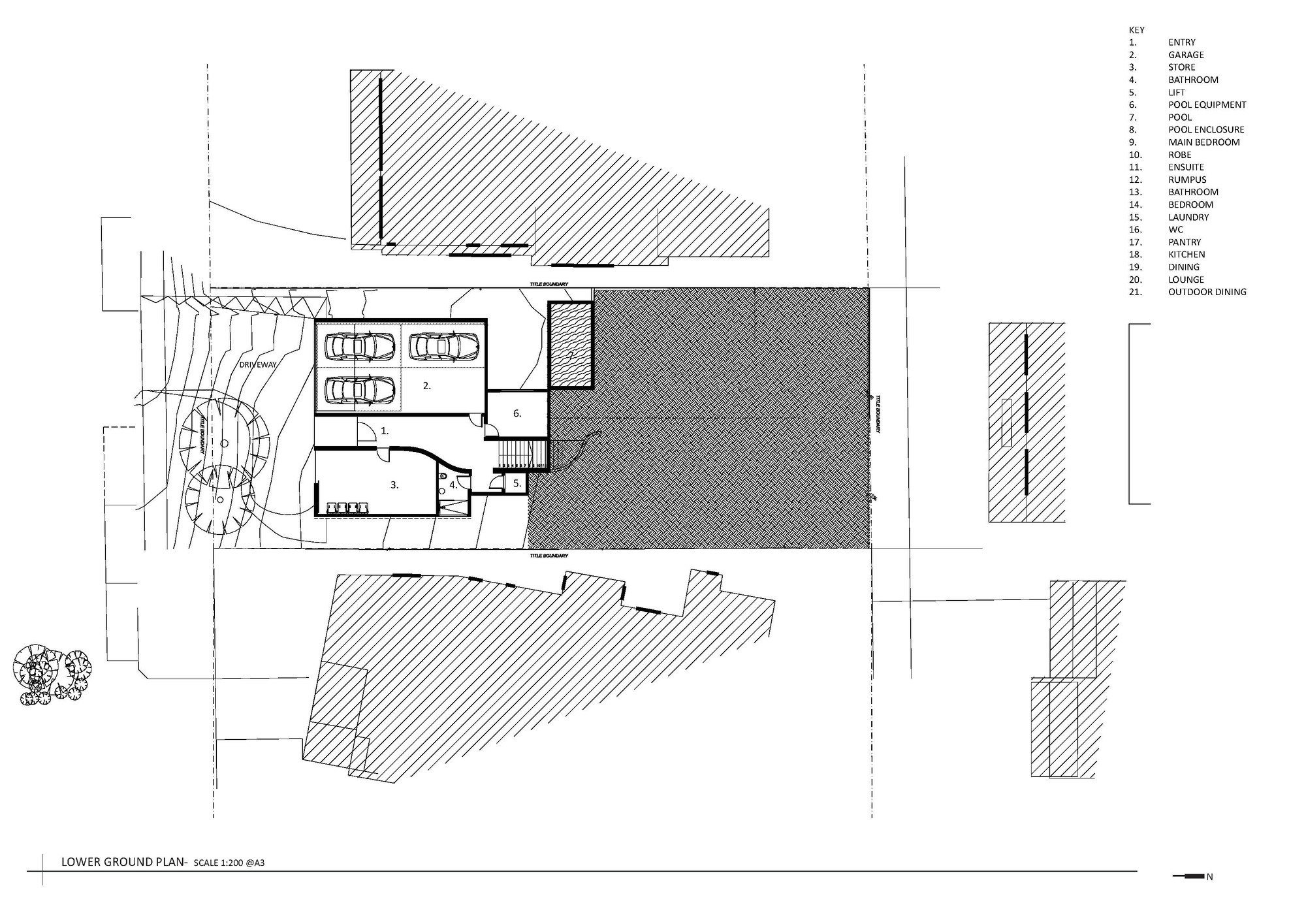
Set into the contours of the site and framed by native coastal landscaping, the lower level of the home is clad in recessive recycled natural timber, with the entry door further recessed within. Cantilevering above, a striking rectilinear concrete volume is positioned to maximise expansive beach views, with glazing extending along the front façade. The thickness of the concrete is refined with a chamfer along its edge. A rough limestone column is introduced at one point to subtly divide internal spaces for programmatic purposes, adding texture and creating a connection to the local stone.
The ground level contains guest bedrooms, amenities, a garage, and storage, with a stair and lift connecting to the upper floor. The main living spaces and primary bedrooms occupy the upper level, taking advantage of northern light and coastal views. All bedrooms are located at the rear of the house as part of a carefully zoned plan, ensuring privacy with direct access to outdoor areas. The main bedroom faces the central courtyard and pool, offering a private retreat with visual connections to light and garden areas. This zoning ensures a clear separation between private and public areas.
Internally, the home employs a soft, neutral palette, using subtle texture and material variation to define spaces and maintain cohesion with the architecture. Natural rough limestone and timber are introduced to add tactile materiality.
Naturally patinated copper cladding surrounds the pool pavilion, framed by lush planted gardens. The interplay of natural materials, light, and space defines Coastal House as a home that feels considered and resilient. Reflecting its design and quality, Coastal House achieved a high benchmark in the Ocean Grove property market.
Project gallery
客服
消息
收藏
下载
最近











