查看完整案例

收藏

下载

翻译
Architects:Minimalist Architecture & Design Studio
Area:8500ft²
Year:2025
Photographs:Purnesh Dev Nikhanj
Manufacturers:Gessi,ALCOI + ART-N-GLASS,ART-N-GLASS,Daikin,ENSEMBLE,FLOS,GLAMORA,NAVEEN BHARAT,NILAYA ANTHOLOGY,NORYSIS,SCIC ITALIA
Lead Architects:Samridh Aneja, Anima Aneja
INTERIOR STYLING:LABURNUM STUDIOS
PMC:THE CALIBRE
Category:Houses
City:Ludhiana
Country:India
Text description provided by the architects. A modern intervention within a timeless exoskeleton—where classical aspirations find voice through the lens of a minimalist practice. It is an encounter between eras, fusing the design sensibilities of two worlds: the permanence of antiquity and the precision of the present.
Rooted in a dialogue between history and the future, the design reinterprets a classic edifice inspired by the poetic streets of Milan. It transcends architecture — becoming a meditation on time and transformation, where modern purity engages with the quiet strength of the Roman spirit.
An enduring stone framework anchors the composition, met by linear insertions of glass, reflection, and light. The interplay between the old and the new forms a serene language of balance—where geometry and silence evoke timelessness rather than ornament.
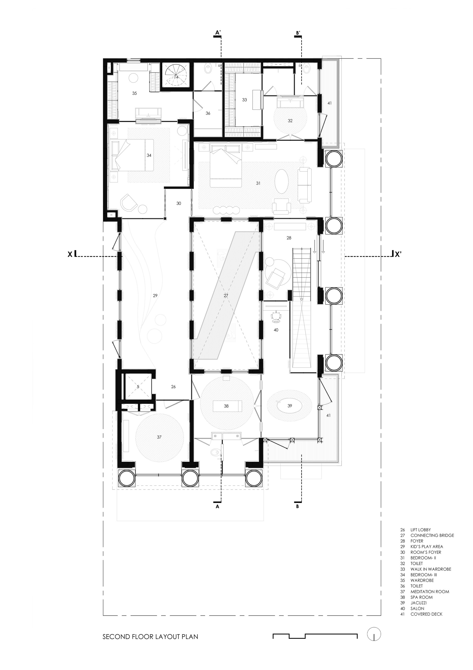
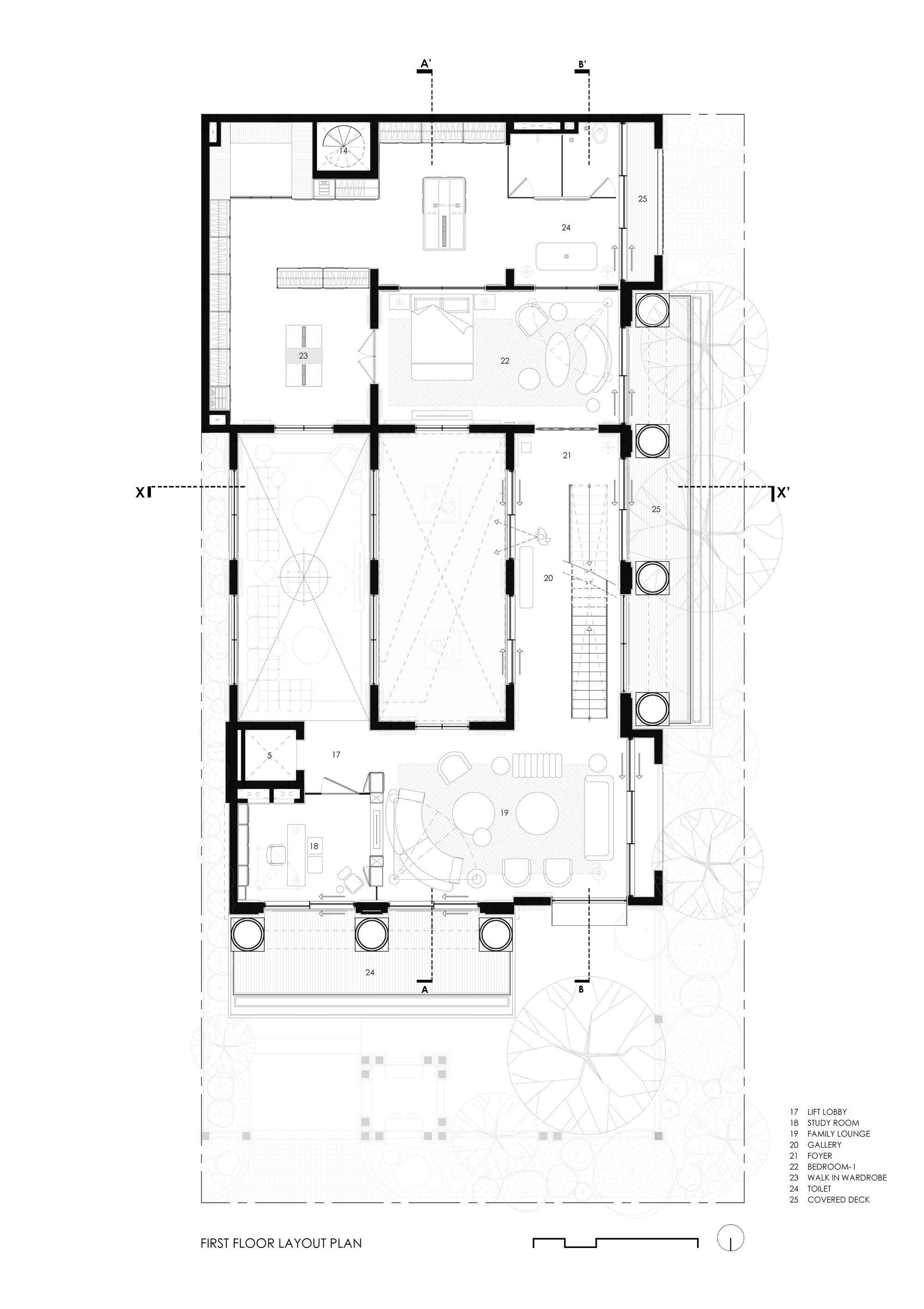
At the heart lies a luminous atrium, recalling the spatial grace of Milanese galleries, its light tracing gentle narratives across the stone surfaces and still water below.
From this calm rises a sculptural staircase—sculpted yet effortless—a ribbon of movement that embodies continuity and poise. It stands as both structure and metaphor: the bridge between art and precision, between memory and modernity—an enduring testament to harmony reborn in the present.
Project gallery
客服
消息
收藏
下载
最近



































