查看完整案例

收藏

下载
在乡村振兴的时代浪潮中,建筑师正以设计为桥,联结乡土本真与现代生活,为乡村注入新的文化活力与空间质感。坐落于安徽万山的万山电影公园(原万山山谷电影院),作为全国第一家乡村公共电影院,以一座高品质清水混凝土建筑的姿态,扎根乡野肌理,打破乡村文化空间的固有边界,既承载着光影叙事的功能需求,更以极致的材料表达与空间营造,成为乡村公共建筑创新实践的独特范本。
In the wave of rural revitalization, architects are using design as a bridge to connect the authenticity of the countryside with modern life, injecting new cultural vitality and spatial texture into the countryside. Located in Wanshan, Anhui, Wanshan Film Park (formerly Wanshan Valley Cinema), as China’s first rural public cinema, takes the form of a high-quality fair-faced concrete building, rooted in the rural context, breaking the inherent boundaries of rural cultural spaces. It not only undertakes the functional needs of light and shadow narration, but also becomes a unique model for innovative practices in rural public architecture with its extreme material expression and spatial creation.
▼项目概览,Overall of the project© 存在建筑-建筑摄影
▼全国第一家乡村公共电影院,The first rural public cinema in China© 存在建筑-建筑摄影
不同于城市影院的密集布局与华丽装饰,万山电影公园(总建筑面积1836平方米)的设计始于对场地的敬畏与对公共功能的精准考量。项目最大化利用现有场地条件,将三个影厅——两个小影厅与一个大影厅,合理安置于高低错落的两个建筑体量之中,两个体量自然咬合形成夹角空间,成为整个建筑的空间枢纽。设计团队巧妙地将连接上下两层的楼梯与连廊嵌入这一夹角之内,搭配轻薄舒展的屋盖与富有韵律感的柱廊,共同围合出一处极具识别性与场所感的室外灰空间。这一灰空间并非多余的过渡,而是自然与建筑、室内与室外的缓冲地带,既消解了建筑体量的厚重感,也为乡村居民提供了休憩、相聚、交流的非正式场所,让影院不再是单纯的观影载体,更成为乡村公共生活的延伸。
Different from the dense layout and gorgeous decoration of urban cinemas, the design of Wanshan Film Park (with a total construction area of 1,836 square meters) starts with awe for the site and precise consideration of public functions. Maximizing the use of existing site conditions, the project reasonably arranges three cinemas—two small cinemas and one large cinema—in two staggered building volumes. The two volumes naturally interlock to form an angular space, which becomes the spatial hub of the entire building. The design team cleverly embeds the stairs and corridors connecting the upper and lower floors into this angle, and together with the light and stretching roof and the rhythmic colonnade, they enclose an outdoor grey space with strong recognition and sense of place. This grey space is not an unnecessary transition, but a buffer zone between nature and architecture, indoor and outdoor. It not only relieves the heaviness of the building volume, but also provides an informal place for rural residents to rest, gather and communicate, making the cinema no longer a simple carrier for viewing movies, but also an extension of rural public life.
▼由周边乡村环境看建筑,Viewing the cinema from surrounding rural environment© 存在建筑-建筑摄影
▼由周边的农田看建筑,Viewing the cinema from surrounding field© 存在建筑-建筑摄影
▼由河水看建筑,Viewing the cinema from the water© 存在建筑-建筑摄影
在满足影厅尺寸规范、保障观影体验的实用性前提之下,设计团队始终追求空间与形式的共生之美。整个建筑摒弃冗余装饰,以清水混凝土的原生质感为核心表达,线条简洁有力,体量错落有致,与周边的乡野草地、自然景致形成和谐对话,恰如从土地中自然生长而出,不着粉饰,却自有力量。
On the premise of meeting the specifications of cinema dimensions and ensuring the practicality of viewing experience, the design team has always pursued the symbiotic beauty of space and form. The entire building abandons redundant decorations, takes the original texture of fair-faced concrete as the core expression, with concise and powerful lines and staggered volumes, forming a harmonious dialogue with the surrounding rural grasslands and natural scenery. It is just like growing naturally from the land, without decoration, but with its own strength.
▼建筑外观,Exterior view of the project©存在建筑-建筑摄影
▼空间与形式的共生之美,The symbiotic beauty of space and form© 存在建筑-建筑摄影
清水混凝土作为一种对施工工艺有着极高要求的建筑类型,其魅力在于“素面朝天”的真实与质朴——一次浇注成型,不做任何外装饰,仅依靠混凝土本身的纹理、质感,以及精心设计施工的明缝、禅缝和对拉螺栓孔等细节,构成建筑的自然外立面。为了实现清水混凝土的完美落地,万山电影公园在施工前期便进行了细致的模板专项排布设计,精准规划明缝、禅缝的间距与走向,确保肌理的规整与韵律感。施工过程中,采用木模板支护浇筑,搭配定制对拉螺栓固定,严格控制振捣节奏与养护流程,确保混凝土成型均匀、表面光滑。脱模之后,团队进一步对混凝土表面进行精细化修复,并对螺栓孔进行规范封堵,每一个工序都力求严谨专业,最终呈现出清水混凝土特有的细腻肌理与沉稳质感,让材料本身成为建筑最美的装饰。
As a type of building with extremely high requirements for construction technology, the charm of fair-faced concrete lies in its “natural and unadorned” authenticity and simplicity—it is cast in one piece without any external decoration, and only relies on the texture and quality of the concrete itself, as well as carefully designed and constructed details such as expansion joints, construction joints and tie bolt holes to form the natural facade of the building. To achieve the perfect implementation of fair-faced concrete, Wanshan Film Park carried out detailed special formwork layout design before construction, accurately planning the spacing and direction of expansion joints and construction joints to ensure the regularity and rhythm of the texture. During the construction process, wooden formwork was used for support and pouring, combined with customized tie bolts for fixation, and the vibration rhythm and maintenance process were strictly controlled to ensure uniform concrete forming and smooth surface. After demoulding, the team further performed refined repair on the concrete surface and standardized plugging of the bolt holes. Every process strived to be rigorous and professional, and finally presented the unique delicate texture and calm quality of fair-faced concrete, making the material itself the most beautiful decoration of the building.
▼建筑以清水混凝土的原生质感为核心表达,The original texture of fair-faced concrete as the core expression ©存在建筑-建筑摄影
▼“素面朝天”的真实与质朴,The “natural and unadorned” authenticity and simplicity of the project© 存在建筑-建筑摄影
▼混凝土成型均匀、表面光滑,The concrete is formed uniformly and has a smooth surface © 存在建筑-建筑摄影
▼轻盈、舒展的建筑形态,Bright and light architecture form©存在建筑-建筑摄影
清水混凝土取之于自然,其呈现出的真实、质朴、安静与力量感,正是万山电影公园想要传递的设计内核。设计团队希望这座建筑能够融入乡野,不哗众取宠,不喧嚣张扬,以最本真的姿态,为每一位到来者提供一方安放情绪、感受光影的有趣场所。修长的柱廊如同树木的枝干,向上生长,稳稳承托着轻薄的屋盖,既赋予建筑轻盈的视觉感受,也暗合了乡野草木的生长意象。
Fair-faced concrete is taken from nature, and the authenticity, simplicity, tranquility and sense of strength it presents are exactly the design core that Wanshan Film Park wants to convey. The design team hopes that this building can integrate into the countryside, not grandstanding or noisy, and provide an interesting place for every visitor to place their emotions and feel the light and shadow with its most authentic attitude. The slender colonnades are like the branches of trees, growing upward, steadily supporting the light roof, which not only endows the building with a light visual feeling, but also implies the growth image of rural plants and trees.
▼真实、质朴、安静与力量感,The authenticity, simplicity, tranquility and sense of strength © 存在建筑-建筑摄影
▼修长的柱廊如同树木的枝干,向上生长,The slender colonnades are like the branches of trees, growing upward© 存在建筑-建筑摄影
▼细部,Details© 存在建筑-建筑摄影
空间的叙事感,在万山电影公园的设计中被发挥得淋漓尽致。影厅入口特意设置于二层,人们拾级而上,沿着长长的楼梯前行时,视线会逐渐从乡野的自然画面,慢慢过渡到建筑内部的光影空间,完成从自然到人文的心境转换。通向二层的楼梯、环绕二层的游廊,搭配简洁有力的结构支撑构件,不仅优化了动线体验,更巧妙地消解了影厅巨大体量带来的压迫感,让建筑在视觉上更显轻盈、舒展。
The sense of spatial narration is fully exerted in the design of Wanshan Film Park. The entrance of the cinema is deliberately set on the second floor. When people climb the stairs and walk along the long stairs, their sight will gradually transition from the natural picture of the countryside to the light and shadow space inside the building, completing the mood transformation from nature to humanity. The stairs leading to the second floor, the corridor surrounding the second floor, combined with concise and powerful structural support components, not only optimize the flow experience, but also cleverly relieve the sense of oppression brought by the huge volume of the cinema, making the building more light and stretched visually.
▼电影院首层与柱廊,Ground floor and the colonnade of the cinema© 存在建筑-建筑摄影
▼通向二层的楼梯,Staircase leading to the upper floor© 存在建筑-建筑摄影
▼室内细部,Details of interior© 存在建筑-建筑摄影
作为全国第一家乡村电影院,万山电影公园的意义远超一座建筑本身。它以清水混凝土为语言,诠释了乡村建筑的另一种可能——不刻意迎合,不盲目复制,而是扎根乡土、尊重自然、贴合需求,让现代建筑美学与乡村本真肌理相融共生。在这里,光影流转间,乡村居民得以享受高品质的文化生活;乡野景致中,建筑得以成为乡土文化的载体与象征。万山电影公园,用设计唤醒乡村文化活力,用材料诉说乡土本真,为乡村振兴背景下的建筑实践,提供了极具价值的参考与启示。
As China’s first rural cinema, the significance of Wanshan Film Park goes far beyond a building itself. With fair-faced concrete as its language, it interprets another possibility of rural architecture—not deliberately catering or blindly copying, but taking root in the countryside, respecting nature and meeting needs, allowing modern architectural aesthetics to coexist harmoniously with the authentic rural context. Here, with the flow of light and shadow, rural residents can enjoy a high-quality cultural life; in the rural scenery, the building has become a carrier and symbol of rural culture. Wanshan Film Park awakens the vitality of rural culture with design and tells the authenticity of the countryside with materials, providing a very valuable reference and inspiration for architectural practice under the background of rural revitalization.
▼影院室内,Interior of the cinema© 存在建筑-建筑摄影
▼室内夜景与灯光设计,Night view and light design of interior© 存在建筑-建筑摄影
▼场地区位,Location of the site© a9a建筑设计事务所
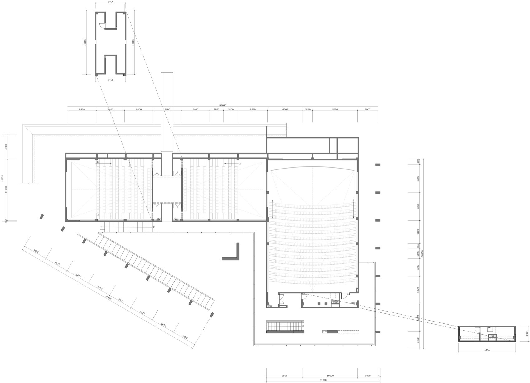
▼底层平面图,Ground floor plan© a9a建筑设计事务所
▼二层平面图,Upper floor plan© a9a建筑设计事务所
▼屋顶平面图,Roof plan © a9a建筑设计事务所
▼立面图,Elevations© a9a建筑设计事务所
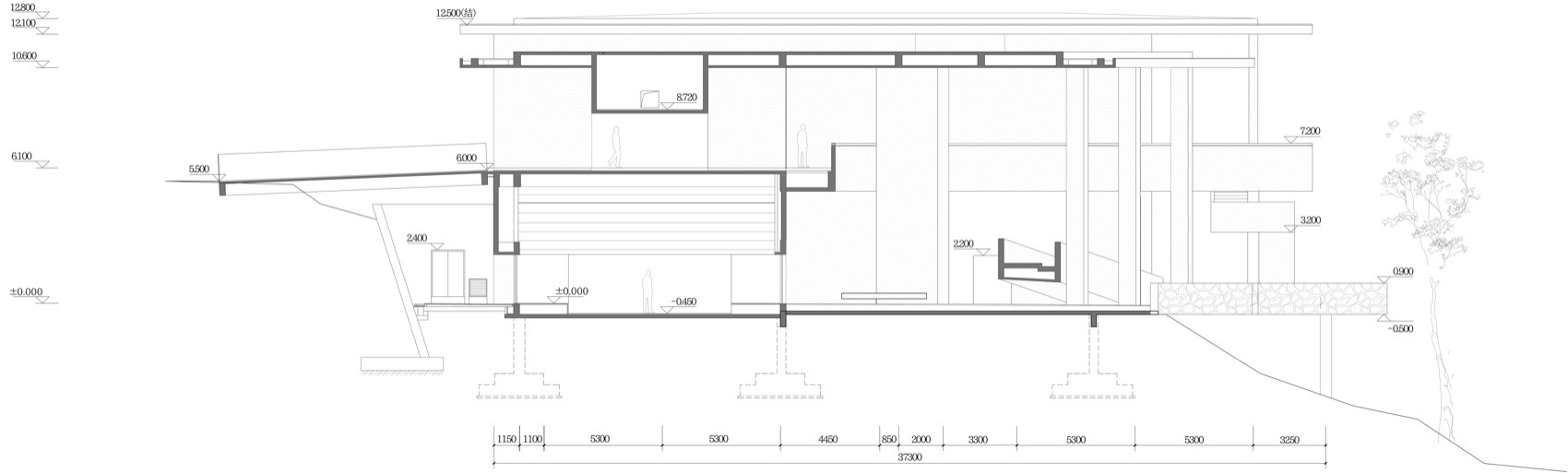
▼剖面图,Sections© a9a建筑设计事务所
项目名称:万山电影公园
项目地点:安徽万山
项目类型:公共建筑
总建筑面积:2048平方米
主持建筑师:李岳九
建筑设计:a9a建筑设计部
项目策划规划:超级平常设计
结构设计:iStructure结构事务所,杨笑天、王哲、周鹏飞
室内设计:超级平常设计
景观设计:AF.d-奥凡设计
机电设计团队:四川煊通建筑设计咨询有限公司
建筑摄影:存在建筑
策划推广:张楠
Project Name: Wanshan Film Park
Project Type: Public Building
Design Firm: a9a Architects
Project Design: Architectural Design
Completion Year: 2024
Design Team: Design Director | Li Yuejiu, Members of the Architecture Department of a9a Architects
Project Location: Wanshan, Anhui Province
Building Area: 1,836 square meters
Photography Copyright: Existence Architecture Photography
Project Planning and Design: Super Ordinary Design
Structural Design: iStructure, Yang Xiaotian, Wang Zhe, Zhou Pengfei
Interior Design: Super Ordinary Design
Landscape Design: AF.d – Aofan Design
Mechanical and Electrical Design Team: Sichuan Xuantong Architectural Design Consulting Co., Ltd.
客服
消息
收藏
下载
最近


































