查看完整案例

收藏

下载

翻译
Architects:a.co.lab
Area:115m²
Year:2024
Photographs:Yong-joon Choi
Lead Architects:Isak Chung, Jinpyo Hong
Category:Houses,Renovation
Design Team:Youhwan Cho, Jangwoo Bae, Heejeong You
City:Seoul
Country:South Korea
Text description provided by the architects. The "Artist N's House" is a remodeling project of a single-family house originally built in 1969, where an artist couple had lived for over a decade. Rather than replacing the existing structure, the project began with the question of how to preserve the accumulated lifestyle of both the residents and the surrounding neighborhood, while introducing new spatial possibilities suited to contemporary life.
Landscapes shaped by time cannot be produced instantly by planners or designers. In this project, the aim was not to erase problems through demolition, but to resolve them through remodeling—preserving the values embedded in long durations of use while carefully confronting structural, spatial, and environmental limitations. The modest and imperfect condition of the original house was therefore not treated as an obstacle, but as an active archive of social life and memory.
In contemporary Seoul, remodeling sites often resemble sinkholes left behind by rapid modernization—places that were used, exploited, and then hollowed out. Artist N's House responds to this condition by revisiting the clumsy yet sincere forms overlooked by architectural mainstreams, imagining a new kind of contemporary architecture rooted in what already exists. Through precise yet restrained interventions, the project preserves accumulated layers of history while introducing new spatial logics.
While the most efficient approach for the exterior would have been to completely wrap the building with new materials, this option was deliberately rejected. In order to maintain the scale of the alleys and the character of the village, the external insulation was removed to expose the original materials. Missing decorative bricks were sourced from a redevelopment site across the mountain, dismantled, collected, and reused in the renovation.
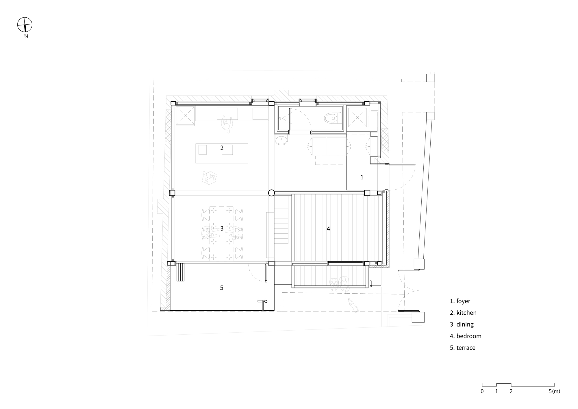
Responding to the stepped topography of the neighborhood at the foot of the mountain, the attic extension was limited in height to avoid obstructing the views of neighboring houses. The original first-floor slab above the damp underground air-raid shelter was removed and replaced with a raised wooden floor integrated into the new structural system. This creates a single yet divided spatial condition between the basement and first floor, with the raised floor extending outward to form a wooden porch.
Interior elements such as shelves, movable tables, storage units, lighting, and bathroom partitions were all designed in accordance with the order of the wooden structural grid. Eaves and gutters protect the wooden exterior cladding of the roof extension and prevent water infiltration between the existing outer wall and the new inset structure. Additional insulation and brass gutters were installed within the irregular gaps to protect the building from sideways rain.
Employing inexpensive, everyday materials—such as wood, recycled brick, metal, and simple fixtures—the project reveals how modern substitutes can still carry traces of tradition. Artist N's House demonstrates how remodeling can serve not as a secondary alternative to new construction, but as a primary architectural act that confronts time, memory, and continuity head-on.
Project gallery
客服
消息
收藏
下载
最近

































