查看完整案例

收藏

下载

翻译
Architects:João Marujo, Orlando Naj
Area:140m²
Year:2024
Photographs:Lela Leme
Lead Architects:João Marujo, Orlando Naj
Category:Apartment Interiors
City:São Paulo
Country:Brazil
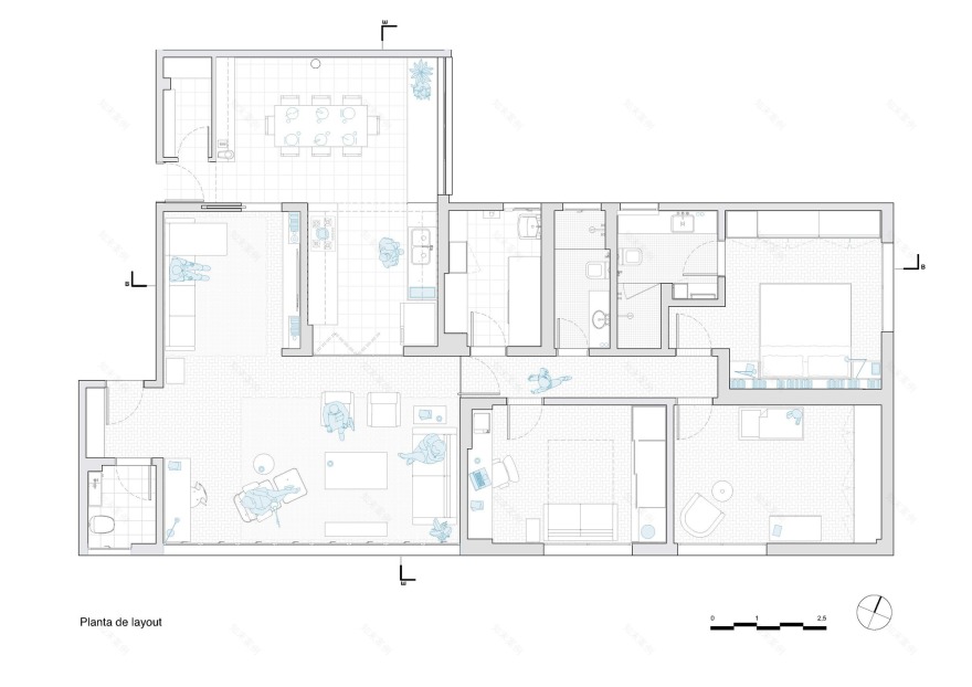
Text description provided by the architects. The renovation project for this apartment aimed to enhance the spaciousness of the original 1970s floor plan, overcoming certain shortcomings through minor interventions. The scarcity of natural light and the need to expand the living areas prompted a rearrangement of the kitchen, laundry, and living room programs, as well as the connections between them. In this shift, the laundry room was relocated to the apartment's private wing.
This allowed the former service area to be transformed into a dining room, finally taking advantage of the best view, which was previously obscured by hollow screen blocks.
The installation of a glass folding door established a new integration between the kitchen and the living room, enhancing both visual connection and circulation. The loop is completed by another opening between the TV room and the dining room, providing greater fluidity of movement.
In the private areas, with the exception of the new laundry room, the original floor plan was largely preserved. The master suite was internally reorganized to accommodate a larger bathroom, and one of the bedrooms was converted into a home office. Overall, the design in these areas focused on custom cabinetry, seeking to ensure coherence and greater functionality for the whole.
Finally, the minimalist aesthetic chosen for the new finishes sought to both dialogue with the existing—and now restored—striped Ipê parquet flooring, and to highlight, through contrast with the white walls, the objects that tell the new residents' story and bring life to the new visual composition.
Project gallery
客服
消息
收藏
下载
最近




























