查看完整案例

收藏

下载

翻译
Interior Designers:Waterfront Design
Area:218m²
Year:2024
Photographs:Studio Millspace
Manufacturers:Herman Miller Sayl Chair,Cassina Cab 413,Cassina LC1,Cassina LC3,Cherner Chair
Lead Architects:Nic Lee
Category:Offices Interiors
Lead Team:Nic Lee, Elvin Ke
Design Team:Sherry Hu, Jia Lin
City:Taipei
Country:Taiwan
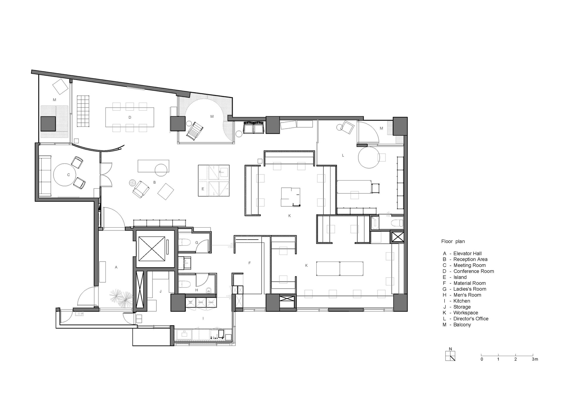
Text description provided by the architects. Throughout eight months of design and on-site work, we realized that what truly matters is not the completeness of drawings, but the intuition shaped by being present. Around 70% of the layout was defined early on, while the remaining 30% was deliberately left without a set function—allowing light, behaviors, and moods to participate in forming the space.
This "open framework" functions like a museum, leaving room for future artworks, experiments, and fragments of documentation. Materials serve as a backdrop; what ultimately shapes spatial memory are the lives that will unfold here.
Serpentinite flooring was the first material chosen, inspired by the weathered stone of the Taipei Fine Arts Museum plaza, marked by forty to fifty years of use. Its resilience and stratified patina make the floor the most reliable measure of time. The space, therefore, begins with materials that coexist gracefully with aging.
At the same time, we reinterpreted our past through new placement: the entrance electrical panel door is crafted from leftover aged timber from a previous project; the soft cement washes on the walls and floor were derived from prototypes made for a commercial commission. These remnants find a new home here, making the space not a blank start, but a long timeline where the past, present, and future coexist.
Project gallery
客服
消息
收藏
下载
最近




























