查看完整案例

收藏

下载

翻译
Architects:Minimalist Architecture & Design Studio
Area:11350ft²
Year:2025
Photographs:Purnesh Dev Nikhanj
Manufacturers:Gessi,ALCOI + ART-N-GLASS,ART-N-GLASS,ASHIESH SHAH,CLADDING MATERIAL,Daikin,ENSEMBLE,ENSEMBLE,FLOS , LINEA LIGHT,GLAMORA,NILAYA ANTHOLOGY,NORYSIS , JUNG,SCIC ITALIA
Lead Architects:Samridh Aneja, Anima Aneja
INTERIOR STYLING:LABURNUM STUDIOS
PMC:DHILLON CONSTRUCTIONS
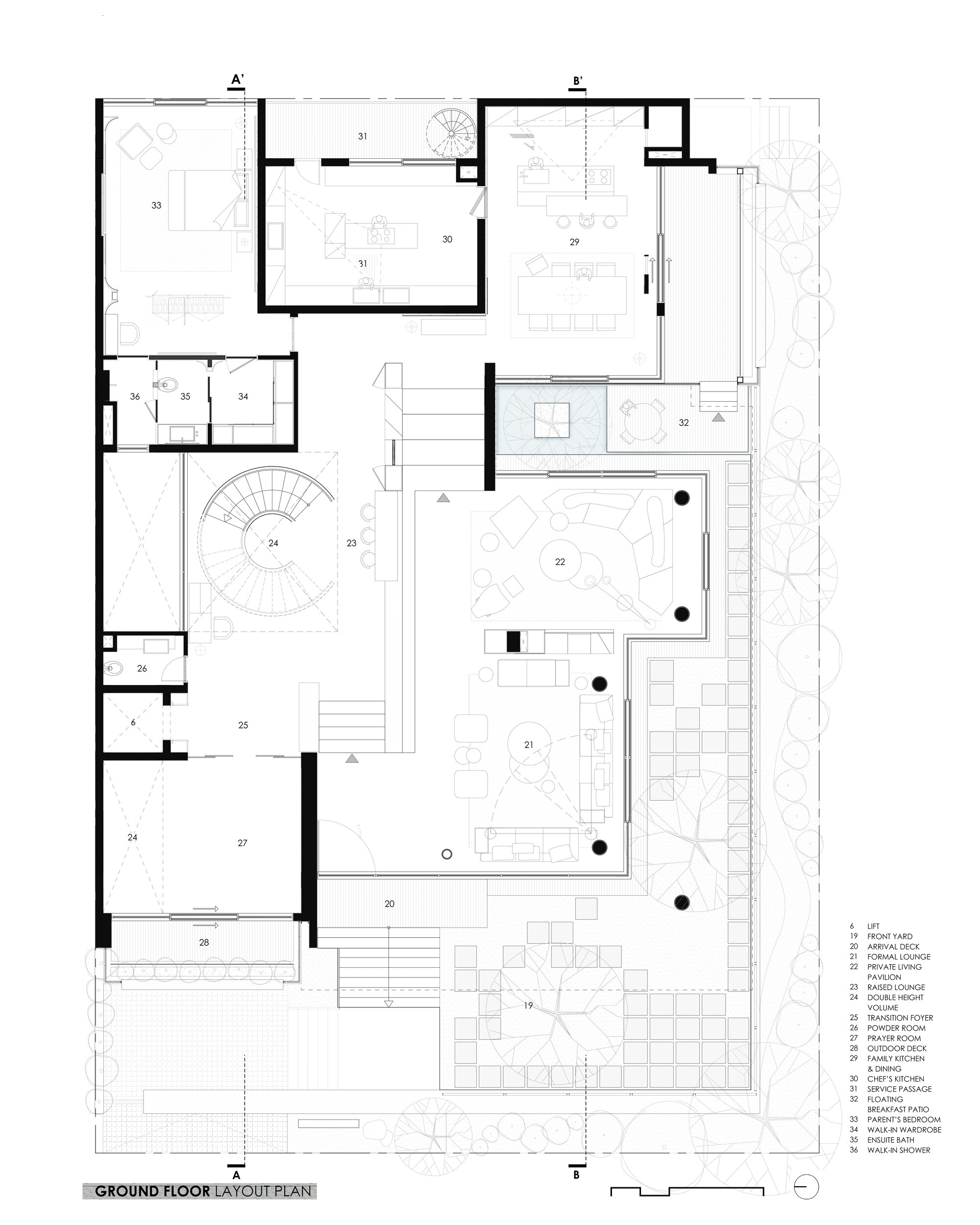
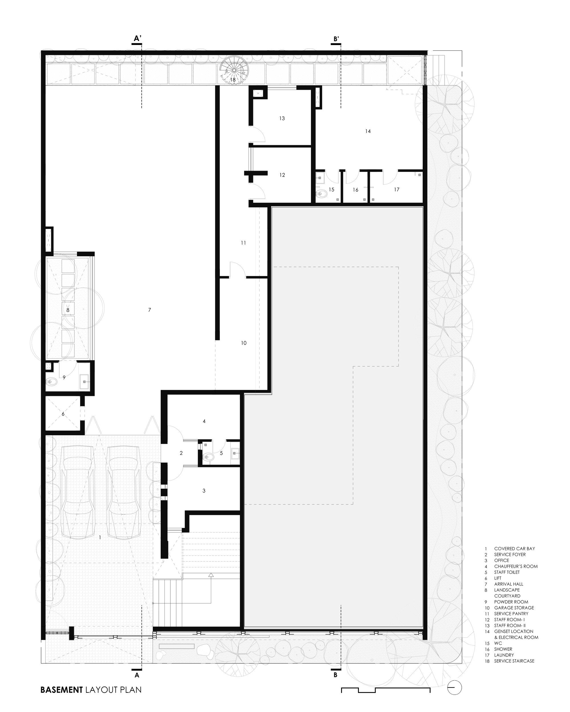
Category:Houses
City:Ludhiana
Country:India
Text description provided by the architects. Emerging quietly from its urban fabric, the residence stands as an orchestration of planes that hover and masses that drift, defying the weight of their own materiality. What begins as a grounded plinth gradually ascends into a composition of layered horizontality—a home that feels anchored yet airborne.
The architecture celebrates elevated living, quite literally lifting its primary volumes above the landscape to create moments of pause, shadow, and refuge beneath. The cantilevered upper block—massive in presence yet weightless in expression—floats forward like a contemplative gesture, casting long, shifting lines of shade. Its stillness becomes the home's central poetry.
The façade negotiates a delicate balance between opacity and lightness. The upper volume is wrapped in a translucent skin, held within an exposed steel frame. This veil behaves as a glowing lightbox: softening daylight during the day, dissolving its boundaries at dusk, and allowing the structure to breathe with luminosity. It turns mass into atmosphere and material into mood.
This tension—between the heavy and the ethereal, the grounded and the suspended—defines the home's emotional core. Concrete planes meet delicate steel. Deep shadows meet diffused light. Solidity meets silence. The architecture embodies a choreography of contrasts, where every line appears deliberate, every void intentional, and every intersection a moment of quiet strength.
In its essence, the house becomes more than a dwelling. It is a meditation in concrete and air, a spatial poem where weightlessness is carved out of weight, and where the purity of form invites the mind to slow, observe, and breathe.
Project gallery
客服
消息
收藏
下载
最近





































