查看完整案例

收藏

下载

翻译
Architects:StudioAC
Photographs:Felix Michaud
Manufacturers:Atelier Vaste
Construction:AT Build
structural:Honeycomb
Category:Loft,Renovation
Studio Ac Team:Andrew Hill, Jennifer Kudlats, Mohammed Soroor, Melody Matin
Furniture Supplier:Atelier Vaste
City:Toronto
Country:Canada
Text description provided by the architects. Located in Leslieville, in Toronto's east end, this loft renewal project set out to enhance the interior both aesthetically and functionally. Once a toy and bottling factory throughout the 1900s, the building became live/work lofts in the early 2000s. As time wore down the quality of finishes and fixtures, a new opportunity emerged to rework the loft's spatial dynamics.
Entering the unit reveals expansive proportions that immediately command attention. A moment of compression at the threshold gives way to a soaring double-height volume, illuminated by four generous skylights and a pair of south-facing windows. This interplay of compression and release posed the core design challenge: how to honour the openness of the loft while introducing elements that define more intimate, social zones – without compromising spatial clarity.
A custom platform both delineates the living area from the adjoining kitchen and dining zones and introduces new social configurations. The platform evokes both a Japanese Engawa a transitional space – and a Greek Agora – a social center and gathering place. These references emerged as the design direction evolved. Here, the platform carves out a quiet enclave for rest, while linking visually and physically to the kitchen through an elevated surface integrated with the island.
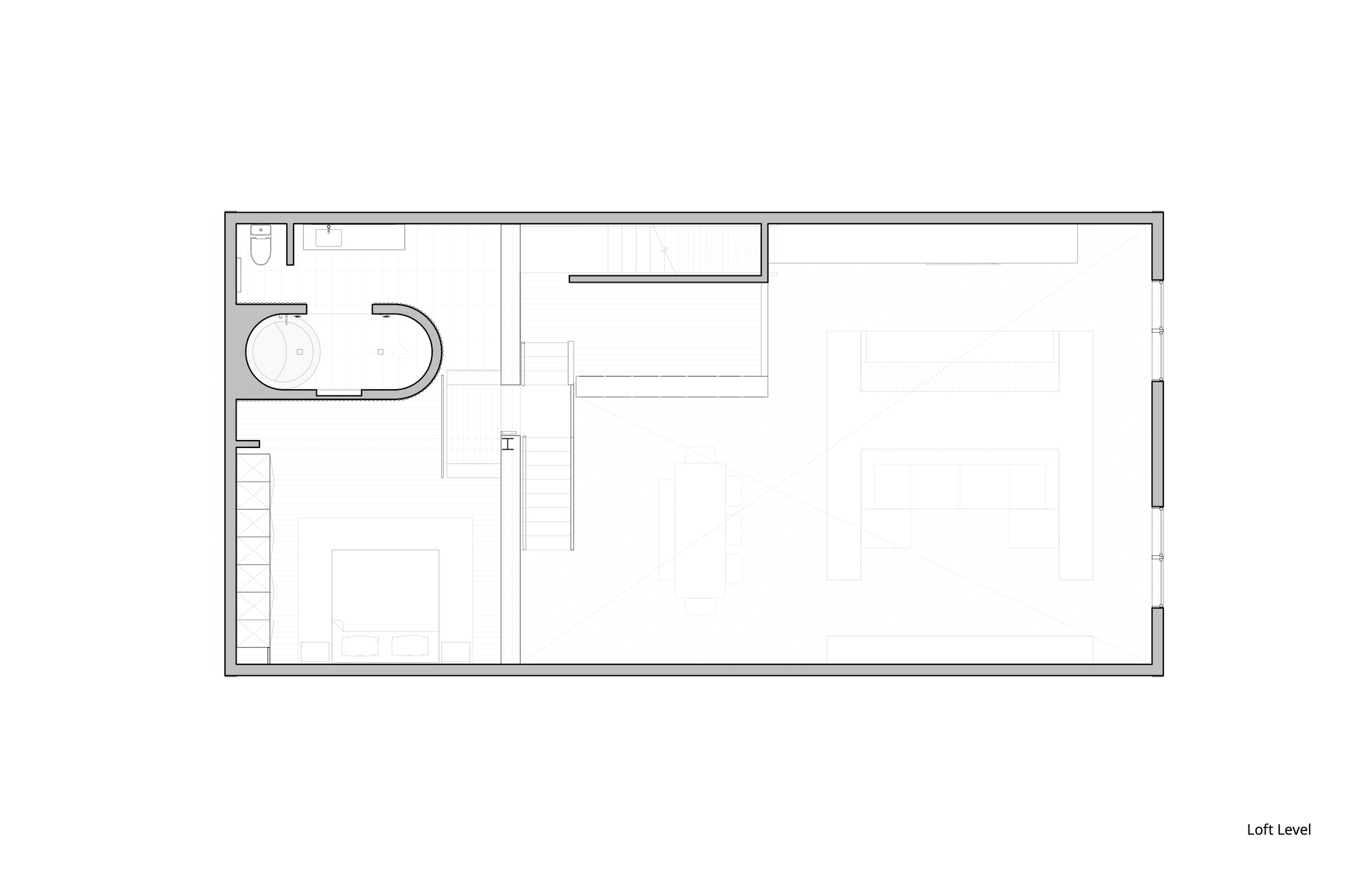
On the upper level, a bath pod acts as both a spatial divider between the primary bedroom and ensuite and as a vessel for a secluded soaker tub and shower. Integrated open shelving houses the owner's extensive library, while softly partitioning the loft office from the rest of the mezzanine.
The design balances the building's industrial roots with the warmth of contemporary interventions. Corrugated metal cladding on the bath pod recalls the building's original industrial vocabulary, while white oak and concrete toned stone bring harmony to the raw textures of exposed brick and timber ceilings.
Project gallery
客服
消息
收藏
下载
最近


























