查看完整案例

收藏

下载

翻译
Architects:studioSHUWARI Inc.
Area:113m²
Year:2025
Photographs:ToLoLo studio Nakamura Mayu
Manufacturers:TAKEMURA INDUSTRY Co.,Ltd.
Category:Houses
Architects:Satoshi Shuwari, Yu Sakai
Structural Design:Ippei Yasue (Workshop)
City:Toyama
Country:Japan
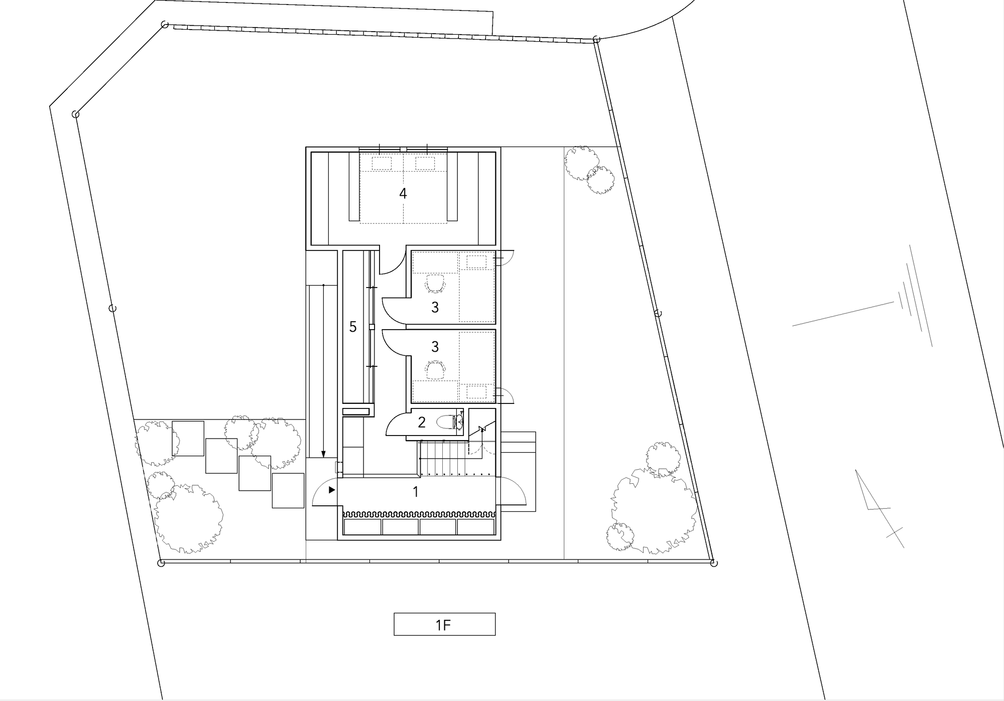
Text description provided by the architects. This house is built on a site along a bank in Toyama City overlooking the Tateyama mountain range.
It was planned with the utmost care to allow people to enjoy the scenery in their daily lives. The living/dining/kitchen area and bathroom are located on the second floor to take in the views of the river, Toyama City, and the Tateyama mountain range that were previously blocked by the bank. The large windows offer a panoramic view, allowing you to spend time feeling the changes of the seasons.
The entrance and private rooms are all on the first floor, allowing each family member to cherish their own time. The scenery becomes memorable depending on the people who gather there and how they spend their time. The scenery that catches your eye in your daily life and the time you spend barbecuing with friends can create special scenery.
Toyama has a diverse range of natural features and climates, including mountains, rivers, seas, countryside, and cities. We believe that building a building means creating a place for people to live and connect with the landscape. We hope that this house will also become part of the landscape and become a place where people and nature can connect.
Project gallery
客服
消息
收藏
下载
最近
































