查看完整案例

收藏

下载

翻译
Architects:YES.ARCH
Area:350m²
Year:2023
Photographs:Yumeng Zhu
Manufacturers:Rilang Doors and Windows,SKK,Sidong
Lead Architects:Luo Ren, Zhao Yao
Category:Houses,House Interiors
Design Team:Wang Yingli Wen Yifan
Construction:Qianhui Home Decoration
City:Chongqing
Country:China
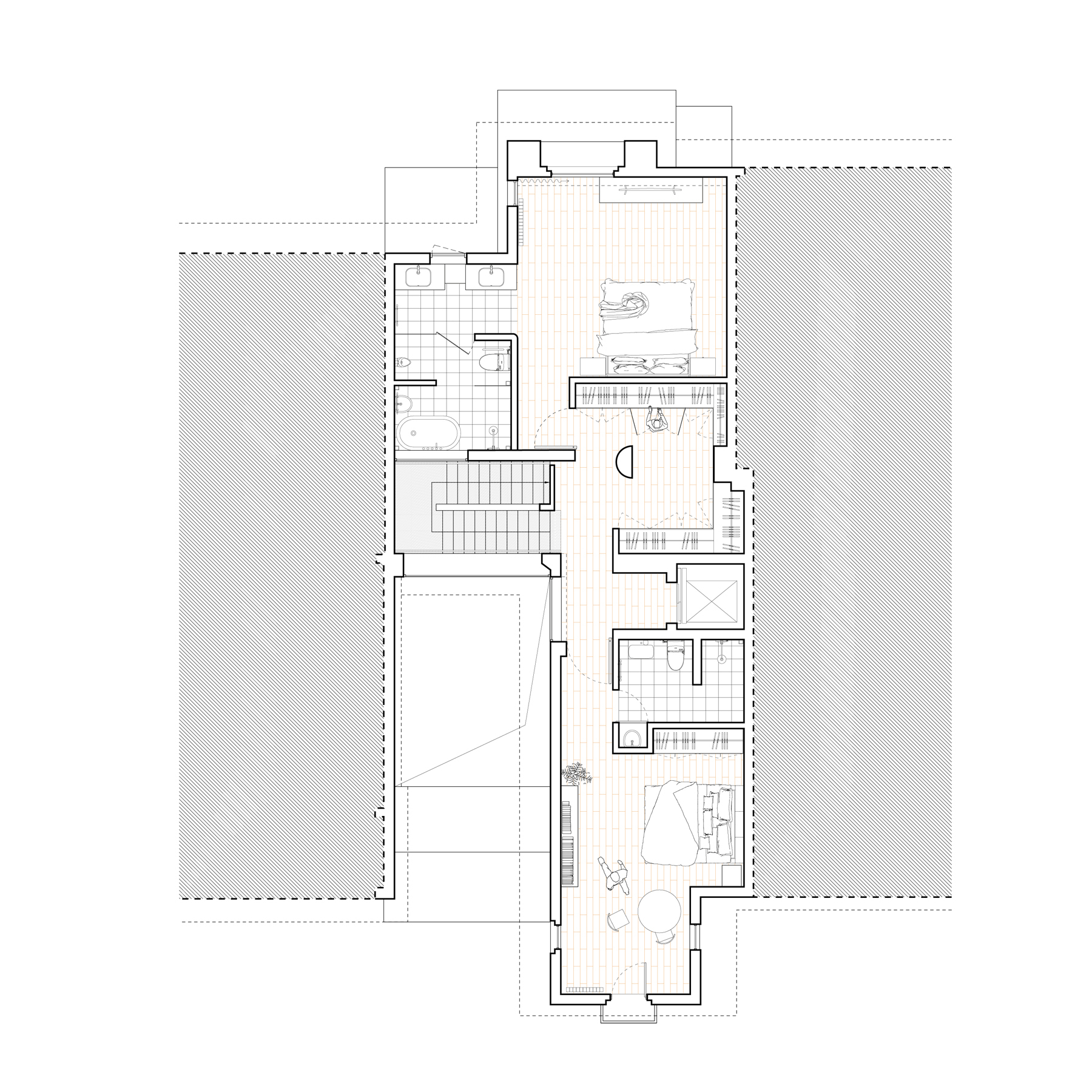
The First Act of Organization: Tracing the Trajectory of Life — The existing three-story building sits on terraced terrain, accessible from both north and south. Years of habit had formed a vertical functional zoning: the second floor, connecting to the vehicular road in the southern community, served as the main entrance, housing the living room, garage, guest room, balcony, and atrium; the first floor, backing against the hillside retaining wall and facing the rear garden, connected to the pedestrian secondary entrance and consisted of the dining room, kitchen, and entertainment room; the third floor was the most private sleeping area, containing two bedrooms and a study. After continuous discussion and comparison of schemes, this zoning was retained in the renovation. The thinking focused on how to release the spatial potential of the house to become a catalyst for the evolution of future life.
The Second Act of Organization: Liberating Space with "Light" Moves — Considering the house shares its structural framework with three neighbors, and adhering to the principle of economy, the renovation completely preserved the original structural system and the main plumbing lines. Optimization focused on non-load-bearing block walls that were easy to alter, attempting to intervene with the "lightest" possible touch. On the second floor, by shifting a wall facing the atrium, the design achieved several goals: adding an accessibility elevator, relocating the guest room, expanding the usable semi-outdoor area of the atrium, and adding a cloakroom/mudroom. On the first floor, by removing a row of walls, the north-facing entertainment room and drying porch were merged into the interior. The dining room was moved forward near the backyard, making the outdoor landscape a part of the dining activity for the first time.
An extra-long island became the focal point of the space. Designed as a stage, it is surrounded by the stove, dining table, and mahjong table. During gatherings, my parents—who love to cook personally—can discuss culinary arts with family and friends while showing off their skills. In the open floor plan, one wall extends outdoors. It coordinates a semi-open stir-fry cubicle (avoiding the heavy oil smoke of Sichuan cuisine affecting the dining space) and carves out an equipment room in the backyard, integrating the AC outdoor units, water heater, and laundry drying functions. On the third floor, by adding an external wall to eliminate a segment of semi-outdoor corridor, we amplified the flexibility of the indoor space, improved thermal comfort in summer and winter, and liberated functions like the walk-in closet that could previously only be located deep within the layout, sparking new imagination for living.
The architectural design does not seek a strong stylistic manifesto; it naturally allows the façade to continue the past style, silently blending into the community environment. Design effort was spent on details related to the body: the forms of door handles and stair handrails echo the specific movements of pushing sliding doors and climbing stairs; equipment and storage volumes act as boxes inserted into life, providing expandable storage for parents who love to organize and clean; the material palette of natural wood, textured paint, and brushed stainless steel strives for simplicity and warmth, while being easy to maintain and replace.
The Third Act of Organization: Letting Sunlight In — To solve the issue of insufficient indoor lighting brought by the "Spanish Style" architecture to Chongqing living, the north wall of the atrium was opened up, and huge glass windows were installed on the third and second floors. For the first time in twenty years, my parents did not have to turn on all the indoor lights during the day. The glass wall on the second floor, in particular, redefined the relationship between the atrium and the interior. It visually integrated the two, making them background and depth for one another—the atrium transformed from a purely transitional space into an extension of the living room.
A tea table set originally kept indoors was moved under the eaves of the atrium, becoming a place for my father to enjoy the afternoon sun and tea. To achieve this, we custom-ordered a single pane of glass 3 meters high and 3.8 meters wide as the core of the atrium's curtain wall system (since its scale exceeded the building entrance, we used a crane to hoist it into the atrium for installation, which became a memorable moment during the renovation). This continuous glass curtain wall, equal in width to the atrium and containing the living room entrance, dissolved the sense of enclosure and heaviness caused by the original architectural style. The second floor seems to break free from gravity, suspended above a transparent partition of metal and glass.
Inside, the staircase—retained for economic reasons—became a "device" to guide light indoors. It was not designed as a cliché fully transparent glass staircase. Instead, a solid sculptural volume based on light analysis cuts through the vertical direction of the building. Without hindering the entry of light, it makes light perceptible by shaping shadows. Now that human transit is handled by the elevator, the staircase has become the primary means for light to move up and down within the building.
The Fourth Act of Organization: Working with Redundancies — All the aforementioned wall movements, exterior openings, or functional changes inevitably conflicted with the original building entity, creating "redundancies." These were columns sitting in the middle of rooms, walls protruding or receding due to architectural molding, or beams of uneven heights. Admittedly, for a more stunning "design effect," we could have used technical means to eliminate them (e.g., structural reinforcement to remove columns or altering beam sizes).
But isn't the key to solving some problems simply to stop viewing them as problems, but rather as possibilities? Can architecture act as a mediator between the new and the old? Therefore, in the renovation, we kept these "redundancies" and endowed them with new meaning. The zigzagging wall on the north side of the second floor was transformed into two "bay windows," becoming my parents' favorite spot for summer naps. The column in the middle of the living room became a decorative light feature illuminating the ceiling. The partition wall between the bathroom and the foyer was gently "placed" on the ground, forming a visual focus of the living space alongside the stairs.
In the dining room, beams of different heights were exposed below the ceiling, becoming cues to distinguish the dining area, entertainment area, and kitchen. A column on the third floor became a full-length dressing mirror. The greater value of these redundancies lies in the fact that they delineate space within an open field, distinguishing places in a non-coercive manner. This act of spatial division is activated when the human body interacts with these physical structures. They serve as the most definitive 'furniture' within each space.
The Fifth Act of Organization: Immersion — This is a design without a "story." We believe that the retreat made by architecture is the catalyst for life to take its first step. Radical and bizarre stories are eventually worn down by the continuity of daily life. As my parents moved in, the building began a new life cycle. This time, my parents themselves became the protagonists of the design, allowing change to happen continuously. Everything brought from the old home slowly filled the space: the old sofa, mahjong table, crafts, calligraphy, photos, tableware, books... Visiting guests are often invited directly to the dining room on the first floor to play cards while chatting with my mother as she prepares the meal.
The large long table in the center of the living room is a depot for my parents' hobbies, always piled with magazines, tea sets, and snacks. My father has also started envisioning putting an inflatable pool in the atrium for his grandson, or setting up a hot pot table in the backyard during family gatherings. My parents' life experience did not become a constraint on the design. On the contrary, it helped us focus on the moments that truly matter, rather than products and concepts.
Project gallery
客服
消息
收藏
下载
最近








































