查看完整案例

收藏

下载

翻译
Architects:Not All Architecture
Area:240m²
Year:2025
Lead Architects:Phoebe Clarke, Timothy Stelzer, Claudio Torres
Category:Houses
Landscape Architecture:Simon Taylor Landscape Design
General Contractor:Andell Construction
Interior Design:Daisy Eckersley
City:Victoria
Country:Australia
Text description provided by the architects. Set within a coastal bushland landscape, Ironbark House forms a retreat from the complexities of contemporary life. The clients' aspirations focused on connectivity for their busy family of five and a relationship to the landscape. The architecture is intended to assimilate into the landscape's strong presence, the large span openings, and 'as local as possible' materials form this strong connection.
The project draws inspiration from the work of Jørn Utzon, particularly his principle of 'additive architecture'; the idea that complex and organic forms can emerge through the repetition and variation of simple elements articulated in his Expansiva prefabricated houses and Jutland Project in Herning, Denmark.
The project emerged just after COVID. During this period of uncertainty, several considerations needed to occur in relation to building material shortages and delays. One of the early challenges encountered during the project related to material sourcing and compliance. The original intent was to use locally sourced Ironbark cladding, supplied through a personal connection of the owner. However, due to bushfire regulations and compliance, the material needed to be sourced from New South Wales to comply.
The material palette is deliberately minimal, with Class 1 Ironbark timber cladding used and a galvanised steel structure forming the skeleton. Detailed demountable connections were designed to consider a lifecycle approach to sustainability with room for reversal, maintainability, and adaptation.
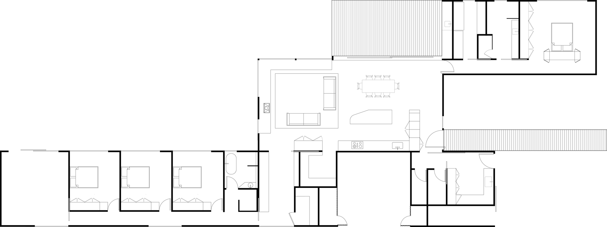
Spatially, the house is staggered to follow the natural contours of the land and promotes a diagonal movement pattern through the central form, encouraging connection between family members. Connectivity is encouraged through the converged pathways of the adult's east wing to the children's west wing through a central shared space. The design generates a series of courtyards that respond to the seasonal wind patterns of the area, providing shelter and comfort year-round. The design is deeply site responsive to its coastal-bushland context.
Project gallery
客服
消息
收藏
下载
最近


























