查看完整案例

收藏

下载

翻译
Architects:D'WELL
Area:10000ft²
Year:2025
Photographs:Ishita Sitwala
Manufacturers:Gessi,Hansgrohe,Luxurarte living,Alsorg,Amare - Jaipur rugs,Andblack,Arflex,Friggerio,Ligne Roset,Meridiani,Misura Emme,Molteni&Co,Poliform,Porro,ROGAN DESIGNS,Reflex,Source Designs,Source Designs,Toto,casamilano, +1wriver-1
Category:Houses
Team:Jhanvi Mehta, Rakshit Shah, Sefali Balotia
City:Surat
Country:India
Text description provided by the architects. The Calming Abode is a 10,000 sq ft private residence in Surat, conceived as an inward-looking sanctuary shaped by sculpted volumes, material restraint, and spatial calm. The primary challenge was addressing the inherently generous scale of the house while ensuring the interiors remained grounded, composed, and deeply inhabitable rather than overtly grand.
At its core, the residence is structured through monumental yet restrained volumes that hold space with quiet stillness. Large, carefully articulated walls frame an interior world that is open, luminous, and private. Rather than relying on ornamentation, the project derives its character from proportion, depth, and material tactility.
The material palette balances raw, handcrafted surfaces with contemporary precision. Hand-chipped basalt stone, lime-textured wall finishes, and travertine accents establish permanence and warmth, while stainless steel elements are introduced through staircases, railings, and kitchen cabinetry. These metal interventions subtly reference the professional background of the family, embedding identity within the architectural language. Custom concrete basin counters and carefully integrated artworks further reinforce the project's emphasis on material honesty and restraint.
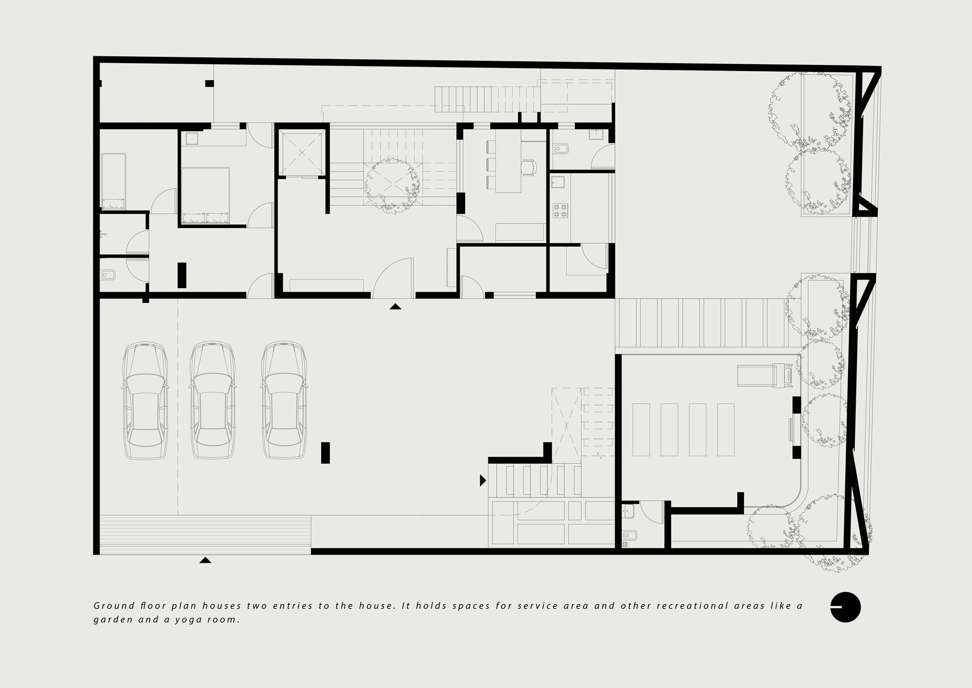
Circulation plays a defining role in shaping the spatial experience. Two sculptural staircases anchor the home—one grounded in concrete and stone, the other a sweeping steel spiral—guiding movement through the vertical volumes and acting as inhabitable architectural elements. A tall double-height living space forms the spine of the residence, washed with diffused daylight and softened by low, monolithic furniture that allows the architecture to breathe. Raw stone surfaces anchor the scale, lending warmth and human presence to the monumental interior.
As one ascends, the residence gradually turns inward. The five bedrooms are conceived as tactile cocoons, where earthy palettes, warm wood accents, seamless built-ins, and curated artworks create quieter, more intimate environments while maintaining material continuity. Basalt stone rises along the four-floor stairwell and key feature walls, reinforcing a sense of solidity and permanence throughout the home.
Ultimately, the project demonstrates how scale can be moderated through material restraint and thoughtful composition. By pairing sculpted volumes with tactile surfaces and contemporary detailing, the residence achieves a calm, grounded form of luxury—one defined by depth, clarity, and lasting presence rather than visual excess.
Project gallery
客服
消息
收藏
下载
最近






















