查看完整案例

收藏

下载
设计核心
格局解构,赋予场域穿透的灵魂
机能重组,餐厨空间的社交进化
材质与光影,后极简的美学策展
极致细节,藏于美学之下的生活体贴
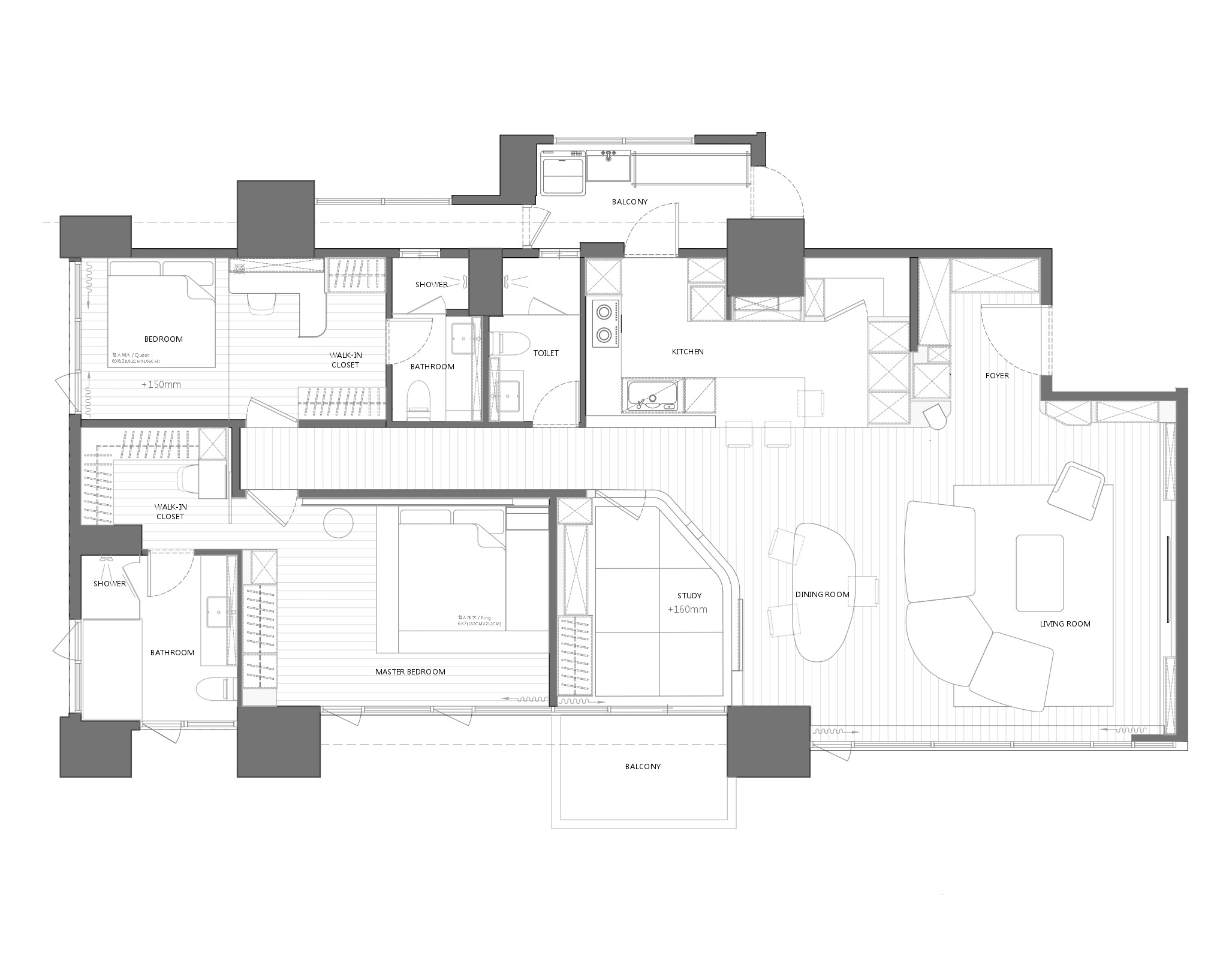
座落于台中西屯中科生活圈,这座室内面积达155平的居所,是新澄设计与屋主历时四载的深度对话。本案自预售屋阶段即展开规划,新澄设计设计总监黄重蔚深知一家三口对未来生活的期待,不仅仅是风格的堆砌,更是空间机能随时间流动的弹性。全屋以后极简主义(Post-Minimalism)为核心语彙,捨弃繁複的装饰符码,转而运用大面积的大地色系与天然材质,在温润的奶茶色调中,为屋主一家开闢一方静谧的栖所。
格局解构,赋予场域穿透的灵魂
原有的三房格局虽方正,却也侷限了光影与空气的流动。设计团队大刀阔斧地拆除多数隔间,仅保留结构完整的小孩房,重新梳理出开放且自由的公领域动线。为了极大化窗外景观优势,主卧室向景观阳台延伸,将隔间牆精准落于铝窗框位点,改以大面落地窗取而代之。这项变动不仅强化了採光,更打破了室内外的疆界。客厅后方,一处“留白”的弹性区应运而生,它现在是孩子的创意乐园,未来则是书房或客房的备援空间。地面预留的铺设弹性,细腻考量了长辈留宿的温馨需求,展现设计对空间未来变动性的预留与考量。
机能重组,餐厨空间的社交进化
餐厨区的转型是本案动线的另一亮点。黄重蔚将原先封闭、侷促的 L 型短边拆除,将厨房彻底解放。开放式的配置与餐厅一气呵成,中岛吧檯不仅是晨间享用轻食的据点,更成为连结客厅与厨房的社交核心。沙发后方配置的长桌,则扮演了场域转换的灵魂角色。它既是工作、阅读的静谧角落,也是亲友聚会时的谈笑中心,更陪伴著孩子完成每日功课。与之相邻的书房立面,以穿透式形式与俐落的线条分割,引领视线在不同维度间恣意游走,确保了155平的宽阔尺度不被牆面所阻断。
材质与光影,后极简的美学策展
材质的选择,决定了后极简空间的温度。女屋主倾心的奶茶色调,在设计师笔下转化为细腻的沙色与米白层次。主卧室的端景牆为石材与木作的完美共舞,精选低色温、避开偏黄调性的“米色洞石”,以大面积铺陈展现石材天然的孔隙美学,搭配精緻的壁灯与吊灯,形塑出稳定且内敛的睡眠氛围。照明规划亦呼应了“减法”原则。减少了传统天花板繁琐的崁灯,取而代之的是线性灯带与间接光源。主卧衣柜採用感应式铝框烤漆玻璃,在光影明灭间,于雾面美感与取物便利性中取得平衡。柜体底部特意嵌入的发光灯带,消弭了家具的厚重感,让光影从地坪缓缓升起,勾勒出极简线条的轻盈秩序。
极致细节,藏于美学之下的生活体贴
真正的设计,往往藏在看不见的细节裡。主卧床架採落地大框架设计,却考量家务负担,将两侧床板设计为“磁吸式固定”,让更换床单变得轻而易举。面对风水考量,玄关处巧妙设置屏风阻隔视线,小孩房则透过弧形柜体的转折,优雅迴避了正对厕所门的疑虑。电视牆亦是一场机能美学的实践。22 公分的进深内,整合了影音设备与杂乱的网络线路,并于玄关侧保留维修便利性。这种“隐于无形”的设计思考,让整体视觉面始终维持清爽俐落,体现了后极简主义对“纯粹生活”的最高致敬。
客服
消息
收藏
下载
最近
















