查看完整案例

收藏

下载
东院儿 ©苏圣亮
设计单位:本哲建筑
项目地点:江苏省启东市
建成时间:2025
建筑面积:320平方米
本文文字由设计单位提供。
东院儿位于江苏启东,近城临海。受常年在外工作的业主委托,本哲建筑为其年过六旬的父母重建了这处居所。设计希望以现代设计语言,回应新农村的建设——既保留乡村的质朴,又提升居住的品质。
夕阳下的东院儿
©苏圣亮
启东位于长江入海口北翼,长江在这里卸下最后一口泥沙,转身汇入东海。原址为典型渔村宅基地,周边环绕风车阵列与滩涂景观。
项目所在位置
本哲建筑
远视东南角 ©苏圣亮
△ 项目视频 ©苏圣亮
与邻为融
建筑采用三层框架结构,遵循周边农宅的体量比例,通过多视廊渗透消解体量感。屋顶线与邻居房屋齐平,谦逊介入村落。
不同于传统院墙的封闭,建筑师用低矮围墙及树木界定边界,既保证私密性,又让院落与村庄环境自然融合。
△ 北立面构成设计 ©苏圣亮
△ 北入口 ©苏圣亮
旧时渔民将牡蛎壳夯入墙体,今朝外墙采用贝壳混合水洗石,随时间推移逐渐显露粗粷肌理。造价适中却自带海的气息,也允许农作时的泥土进入。
△ 初醒生机 ©苏圣亮
△ 北立面细部 ©苏圣亮
不追求符号化,通过材料与尺度延续乡村记忆。不造一栋外来的房子,但求与村共生,与自然同息。
△ 南主立面及院子 ©苏圣亮
△ 主入口 ©苏圣亮
与自然游
谦逊的外在形态下,有丰富的内在空间组合。功能克制,三层空间仅设个房间,余下面积均留给公共区域。以天窗为轴,三层楼间散落起居室、睡眠区、休闲区,以楼梯与窗串联,呼吸流动。
△ 挑高中庭与大厅 ©苏圣亮
△ 餐厅 ©苏圣亮
△ 餐厅与客厅 ©苏圣亮 建筑内部呈现三明治式垂直聚落。
△ 剖面图
本哲建筑
底部泥土层
室内水洗石地面延伸至院外,模糊公私边界,呈半开放式院落。
△ 楼梯间 ©苏圣亮
△ 楼梯间与中庭 ©苏圣亮
中部 生活层
梯转窗移,四时田野入画,悬挂于粗粝墙面之上。延伸至外的露台,消融建筑与自然边界,随时走出,居于天地间。
△ 儿童房 ©苏圣亮
△ 三楼小中庭 ©苏圣亮
△ 三楼楼梯间 ©苏圣亮
△ 趣味小窗口 ©苏圣亮
顶层“云层”
方形天窗,云影投至茶席,于室内感受时间流逝。雨天观雨,晴天观云,天高地阔。
△ 茶室 ©苏圣亮
△ 茶室一角 ©苏圣亮
建筑内部开不同尺度的窗,首层落地窗消除室内外边界,横向长窗望向树干,也让晨光铺展于餐桌之上;三层天窗洒下菱形光斑,于夏日降临至茶室墙面;而楼梯间竖缝窗,则将阳光压缩成一道光刃,与墙面肌理相融,在楼梯间营造神性场所。在日常与精神之间,留出余地。
△ 起居室 ©苏圣亮
△ 三楼天井 ©苏圣亮
与城乡和
门前有河,院后有田,院旁有树,屋边有邻。院落一角留菜畦,父母依然可莳花种豆,拾趣园中”。林语堂曾写:“宅中有园,园中有屋,屋中有院,院中有树,树上见天,天中有月”,便如此。
△ 天人合一 ©苏圣亮
△ 北阳台区 ©苏圣亮
△ 一角 ©苏圣亮 东院儿在形式上回应乡村肌理,在功能上满足代际需求,在美学上与自然共生,在空间上重构传统院落关系。
△ 池塘边儿的东院儿 ©苏圣亮
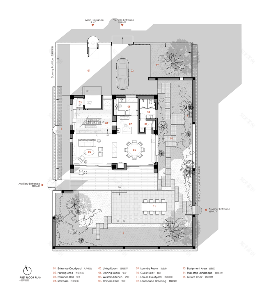
△ 归家 ©苏圣亮 设计图纸 ▽
△ 一层平面图
本哲建筑
△ 二层平面图
本哲建筑
△ 三层平面图
本哲建筑
△ 东立面图 本哲建筑
△ 南立面图
本哲建筑
△ 西立面图
本哲建筑
△ 北立面图
本哲建筑
△ 剖面图
本哲建筑
完整项目信息
项目名称:东院儿
项目地点:江苏省启东市
建筑、室内、景观设计:本哲建筑
设计时间:2022月—2022
完成时间:2025
建筑面积:320平方米
主创建筑师:蒋华健
设计团队:姚瑞艮、阮泽霖、赵桂军、林桐
品牌合作:全屋实木定制(宜兴林艺木业)、大理石定制(上海祥一石业)、窗帘定制(米墅软装)
摄影:苏圣亮
编辑/彭雅冰
视觉:陈汝婷
校对:宋诗雨
本哲建筑授权发布。欢迎转发,禁止以有方编
以“在看”分享
客服
消息
收藏
下载
最近



















































