查看完整案例

收藏

下载
闲云出岫本无心,野鹤鸣皋自得意。醉卧江山烟霞里,一枕清风忘尘机。
本项目采用建筑 · 景观 · 室内 · 标识多专业一体化设计
项目图纸
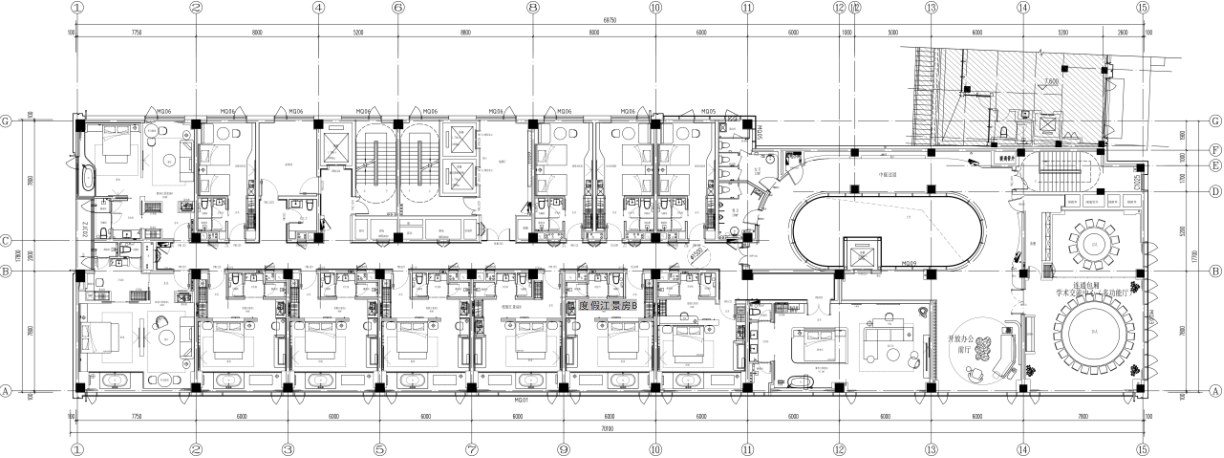
左右滑动 → 1F、3F-5F、地下室电梯厅 平面图
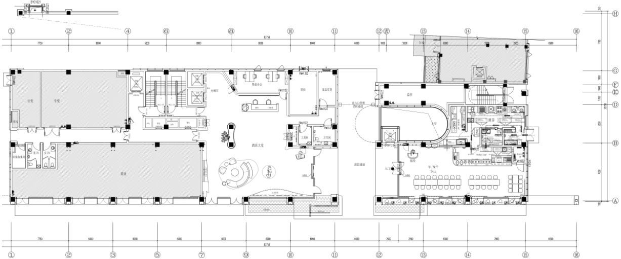
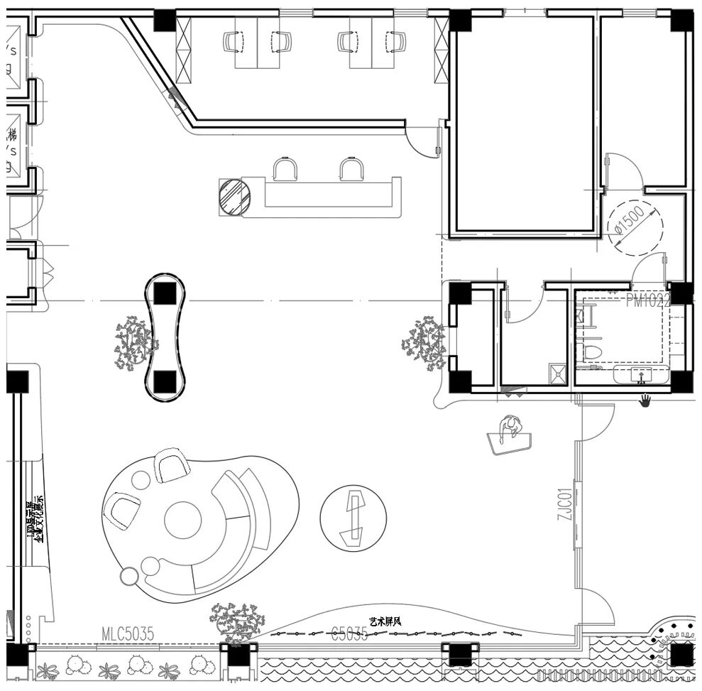
大堂平面布置图
△ 一层早餐厅平面布置图
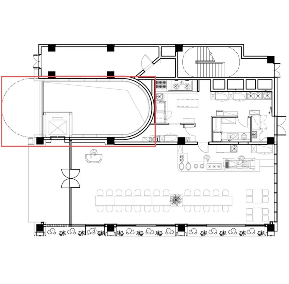
△ 挑空天井庭院平面布置图 左右滑动,查看更多 →
项目视频
建筑区位
项目坐落于浙江西南部的江山市,这座兼具江南娇媚与峰峦如聚的城市,自古便是东南要地。江郎山似锦若霞,须江为钱塘江源头之一,浙派、徽派、闽派、赣派文化在此交融,更有“中国白鹤之乡”的美誉,“江山如画”的盛景与深厚文脉,为空间设计埋下了得天独厚的伏笔。
在这里,暂别都市的浮躁,沉浸于“时光交错的江山城港湾”。凭栏远眺江景,看须江流水悠悠;静赏庭院松鹤,感山林清寂悠远,在自然与人文的环抱中,享受回归宁静、自由闲适的慢时光。
鹤舞山河间,勾勒自然与艺术
主入口效果图
主入口实景图
建筑以简约雅致的线条勾勒轮廓,将江山的山水肌理与鹤的灵动姿态融入立面设计。大面积的通透开窗,让室外的峰峦叠翠、江波浩渺与室内空间无缝衔接,仿佛把整幅江山画卷搬进了建筑之中。
标识实景图
酒店标识LOGO用红色不锈钢呼应丹顶鹤的特征,黄铜衬质感,融鹤形与书法笔触,借材质色彩联动传递‘江山有鹤’元素。
笔墨绘江山
沉淀时光里的闲适雅致
江山的地貌类型多样,山峦重翠,山长水阔,造就多样的风景,享有“中国白鹤之乡”的美誉。自古以来,文人画师泼墨挥毫,寄情于鹤,竞相描摹。画鹤是人与自然和谐统一的艺术表达,引鹤入画,体验闲云野鹤般无拘无束的生活。
一层大堂效果图
大堂以大面积的韵白为基底,搭配玄黑色的线条,几只以鹤为原型的艺术摆件点缀,透着简约与雅致。
一层大堂
柱子设计成曲面,宛如连绵起伏的山峦。红色的点缀更是点睛之笔,巧妙呼应了丹顶鹤的标志性特征。
一层大堂
前台设计以原木为基底:台面采用自然木材质感,搭配顶部“鹤羽”装置,白质黑边复刻羽纹,轻盈如鹤翼舒展,以原木的温润呼应鹤之雅致,让自然材质与意象相融于空间。
山水入肌理
细节里的文化共鸣
餐厅设计灵感源自江山的自然盛景与人文底蕴,将 “鹤、曲线、山水、艺术”四大核心元素巧妙融合。这里没有喧嚣的装饰,唯有温润的材质、柔和的光影与雅致的色调,还原“闲云野鹤般无拘无束的生活”体验。
一层早餐厅效果图
一层早餐厅
红墙瓷砖呼应丹顶鹤的红顶,搭灰白石材衬出“山白映朱红”的江山感,暖光裹红黑质感,造松弛用餐氛围。
光影透璃间 通透里的静界栖居
点击边框调出视频工具条 项目视频
弧形玻璃幕墙 挑空结构,打造“天空之境”的垂直观景体验。以弧形玻璃为幕,挑空结构为框,将天光、云影与建筑立面的反射叠入垂直空间,让天井成为“悬浮在空中的镜面庭院”,每一层都能收获“抬头见云、低头见庭”的双重观景体验。
挑空天井庭院
打破传统天井的采光单一性,借挑空与玻璃的通透感,将天井打造为“垂直社交轴”—— 从底层庭院到上层观景廊,每一层都可通过玻璃幕墙互动,让空间既是观景台,也是连接人与人的松弛社交场。
功能与场景 让每一种需求都被“温柔接住”
酒店的 8 大功能空间 会议 社交 会客 宴会 放松 运动 公共居住
会议室、多功能室效果图
会议室
多功能室
会议场景:会议室配备了先进的智能会议系统,以“极简高效”为核心:浅米台 深黑椅 灰墙,色调沉稳;顶置线性灯匀光护眼;无冗余装饰 隐藏设备,极简空间聚焦会议沟通。
休闲区效果图
休闲区
四层麻将室效果图
四层麻将室
社交场景:墙面浅木纹理,仿山峦层叠,白色软装配黑顶、黑地形成柔和对比;简约围合坐区,嵌入式灯光,既显松弛的社交感,又呼应酒店“闲云野鹤”的闲适氛围;麻将室墙面是浅灰宣纸质感涂料,点缀墨色山水线条,暖黄灯光下,亲友围坐,在谈笑间感受传统娱乐的雅趣与相聚的温情。
三层前厅效果图
三层前厅
会客场景:我们以弧面布局铺展空间,将地毯纹理塑成层叠云浪,衬着巨幅窗景揽入林野,既柔化动线节奏,又让自然意趣漫入室内。
三层连通包厢效果图
三层连通包厢
宴会场景:圆形石纹桌仿“山水肌理”,暖黄软装配环形灯营造温润围合感;连通布局兼顾独立用餐与社交联动,浅棕饰面嵌入式柜架,既保私密又借材质呼应酒店闲适氛围。
SPA区效果图
SPA区
放松场景:SPA 室里飘着淡淡的草本香气,让人身心舒缓。墙面用带肌理的材质、深色饰面做深浅搭配,地面铺石材纹料、嵌入式灯带拉宽空间;柔和色调、细腻材质,营造安静放松的氛围,适配 SPA 的舒缓需求。
露台泳池
露台泳池模型动图
运动场景:露台泳池采用悬浮式嵌入设计,以整块亚克力为核心材料,主体池体选用一体成型的亚克力板材,兼具通透质感与结构强度;搭配金属框架固定,实现露台空间的轻量化嵌入。露台泳池施工中通过亚克力模块预装、现场精准定位,确保池体与露台结构的稳固衔接,既实现“推门亲水” 的体验,也让泳池成为露台的通透景观。玻璃围边保障安全的同时,让视线无遮挡;功能上整合主泳池、泡池,运动、休闲需求一站式覆盖。
卫生间效果图及实景对比
公共区域:卫生间用竖向肌理砖搭配弧角,圆形镜灯晕开柔和光晕,黑白灰的极简里藏着细腻的使用体感。
二层过渡廊道效果图及实景图对比
过渡廊道借弧形地面与顶光呼应,木饰面的温润中和了空间的冷调,每一处转折都藏着“张弛有度”的设计呼吸。
电梯厅效果图及实景图对比
公共区域:电梯厅以深浅石纹拼接出利落动线,线性灯牵引视线,让通行节奏松弛而有序。
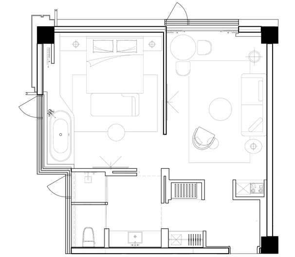
居住区域平面图
商务江景房A户型平面图
商务园林房B户型平面图
商务园景C户型平面布置图
度假江景房大床房D户型平面布置图
园景双床房F平面布置图
园景无障碍G户型平面图
左右滑动,查看更多 →
居住区域:提供多个户型,每一处都有着特色江景,房间内的布置温馨舒适,柔软的床铺、贴心的设施,带来舒适安逸的居住体验。
商务江景
- A户型客房 -
写意的曲线循江韵轻扬
商务江景房A户型效果图
商务江景房A户型
空间以深色墙作隔断,嵌屏交互;临窗区通顶玻璃引绿意,浅木与黑灰柔化质感,分区利落且松弛,功能美学兼备。
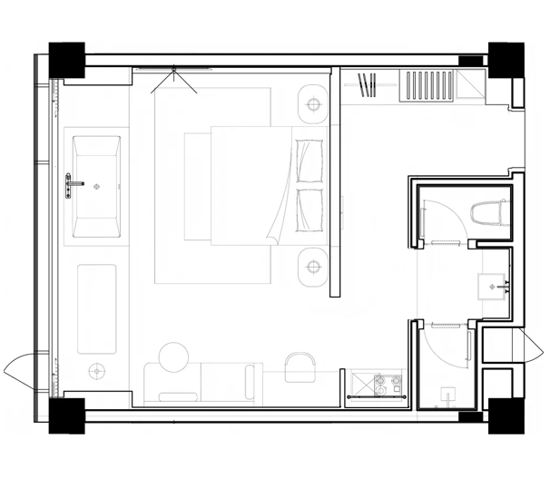
商务园景
- B户型客房 -
引鹤入室
商务园林房B户型实景图
商务园林房融“江山有鹤”调性,黑红白配色利落,巨幅窗景引圆景入室,简约软装平衡商务质感与自然闲适。
商务园景
- C户型客房 -
园景雅室,揽入绿入怀
商务园景C户型
深色墙分区,饰艺术装置;卫浴用玻璃隔断保通透,石材配浴缸显松弛;卧室浅暖调,红饰呼应艺术感,分区清晰且功能美学兼顾。
度假江景
- 大床房D户型客房 -
清透的隔断引江景漫入
度假江景房大床房D户型效果图
度假江景房大床房D户型
黑灰高阶配色勾勒利落空间轮廓,线性灯与隐式光带营造温润氛围;通透玻璃隔断延伸视觉层次,将江景诗意揉入起居与卫浴场景,兼具质感与松弛的度假体验。
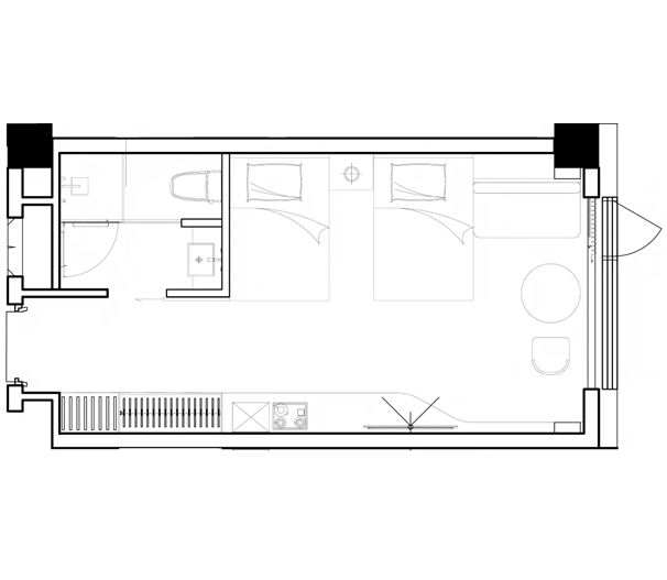
园景客房
- 双床房F户型客房 -
解锁雅致的江居氛围,静享江山的闲适与松弛
园景双床房F户型
黑调隔断衬出红色装饰,呼应丹顶鹤意象,通透玻璃柔化卫浴边界;暖调床品裹入松弛感,江景隐于空间与细节质感交织,既显度假雅韵,又暗合“江山有鹤”的闲逸调性。
园景商务
- 无障碍G户型客房 -
漫游园景雅室的松弛旅程
园景无障碍G户型
贴合空间布局又兼顾实用:平面上合理划分卧室、卫浴等功能区,动线顺畅;实景里用深浅色调区分空间层次,床区、卫浴与休闲区衔接自然,同时通过通透布局、适配的设施,满足无障碍使用的便捷性,让空间既好用又舒适。
END.
项目信息
项目名称:笔中有鹤(江山)度假酒店
项目地点:浙江,衢州
项目类型:建筑、景观、室内设计
项目面积:8000平方米
设计时间:2022年8月
完工时间:2025年8月
建筑设计:浙江安地建筑规划设计有限公司
室内设计:杭州器合设计科技有限公司
设计总监:秦玲、全龍浦
项目负责人:叶琼
设计团队:秦慧、李婷、赵晓悦、赵梓源
标识设计:杭州器合设计科技有限公司
项目摄影:秦玲、叶琼、全龍浦、徐欣意
器合设计研究所是一家国际新锐多元化设计所。合伙人来自浙江大学和国内外各大高校。目前设计项目涵盖空间设计、室内设计、平面设计及品牌策划设计等多个类别。团队善于结合商业模式及后期推广进行整体品牌的设计打造。
有灵魂的设计才动人。所以我们坚持用心对待每个项目,深入了解项目的背景,学习项目的行业知识、商业模式、文化内涵等,以创造出触动灵魂的设计。
编辑:张·萌
客服
消息
收藏
下载
最近

















































