查看完整案例

收藏

下载
Onnis Luque
沙漠、旷野、树荫和建筑的轮廓,在大地的低语中缓缓交融,蕴藏着生活的自由与清旷。当代墨西哥建筑的美,正在于这种无声的呼应——空间的美学表达与情绪记忆,皆是自然的显现,阳光与阴影静默地滋养着空间的本质,将绵延无尽的时光转变为写在墙垣与庭院里的日常。
Onnis Luque
在这里,色彩和自然光便是最灵动的建筑材料,走廊中流动的影子将时间塑造成记忆的形状,那些源于土地和植物的赭色、土黄、玫瑰粉,也从墙壁中自然浮现,让建筑仿佛向地生长的植物,盛满了静谧的绿意,成为自然温暖的延伸。
Onnis Luque
Casa Macana
坐落于一片嶙峋的山峦之间,山坡上的壮丽景色和极具特色的地貌是当之无愧的视觉焦点,建筑师以得天独厚的区位优势与自然资源为出发点,将经过调色的混凝土与天然石材进行组合,使建筑在视觉上与景观进行深层对话,融入自然的背景。
Onnis Luque
为了回应业主对宁静内省生活的向往,建筑师从附近的修道院中汲取灵感,将光影交错的通道作为连接各个空间的过渡区域,营造出冥想般的静谧氛围。起居室、书房、卧室等生活空间浸润在温暖的阳光之中,并通过
型布局兼顾了功能性和观景视野,以含蓄的姿态呈现出自然的叙事。
nnis Luque
左右滑动查看更多图片
Jasson Rodriguez
在墨西哥的旅游胜地、玛雅文明起源地之一的尤卡坦半岛,
Enekén Studio
设计了一座位于古老房屋遗址之中的沙漠风格住宅。步入场地,一棵保留的鳄梨树和形似玛雅遗址的前门以欲扬先抑的手法暗示着空间氛围的转变,源自摩洛哥沙漠的暖橙色调将喧嚣隔绝在外,提供了一片避世且独立的度假场所。
Jasson Rodriguez
狭长的地块以一个带有户外泳池的庭院为中心,生活空间则分设在两侧。靠近入口一侧的空间设有一个传统的下沉式客厅,面向鳄梨树的大窗将郁郁葱葱的绿意框入视野,形成了柔和的空间过渡。穿过一面保留的古老石墙,一间跨越内外界限的餐厅将人们引向了极具雕塑感的中庭,卧室和设备间与之隔窗对望,巧妙地平衡了私密性与接触自然的需求。
Jasson Rodriguez
Fabian Martinez
位于墨西哥城的拉马丁酒店(
LAMARTINE
)通过对于空间、光线和舒适度的设计,重新定义了酒店建筑的体验。这座拥有十间客房的建筑坐落在一片拥挤的地块中,虽然采光条件较差,但建筑师利用中央天窗和楼梯间作为补充自然光的渠道,不仅解决了场地问题,也以此勾勒出清晰的内部布局。
Fabian Martinez
酒店客房的设计风格平衡了功能性与美学的感官体验,看似封闭的外立面实际上由半透明的格栅组成,房客能够免受外部视线的干扰,同时欣赏到自然的城市景观。此外,酒店增加了内部的绿化开放空间和雨水收集系统,以最纯粹而自然的形式颂扬生活。
Fabian Martinez
左右滑动查看更多图片
Cesar Belio
Casa La Vista
是由
MEDEZA CDQ
VERTEBRAL
联合设计的住宅项目,建筑占据了墨西哥南下加利福尼亚州沙漠地带的一处悬崖,朝向东南面的空间俯瞰着圣何塞的海岸线,将海天交汇的壮丽景色尽收眼底。通过对于遮阳、材料性能与被动式节能的统筹考虑,建筑师围绕空间构建了一个应对沙漠极端气候的系统。
Cesar Belio
住宅空间栖息于一片大屋顶之下,由开放的檐廊和中庭分割为三个独立的附楼,分别承载着住宅的私人与公共区域,这一连续性的布局构建了共享的户外活动空间,并提供了必要的遮阳。为了呼应沙漠环境,建筑师通过来自
Santa Catarina
采石场的天然石材呼应环境色调,同时采用天然木材增加质感层次,进一步强调了自然的设计理念。
Cesar Belio
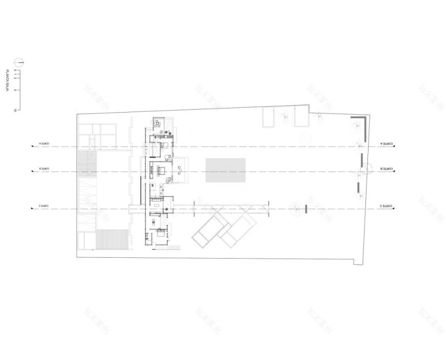
平面图
策划:Ne
iWai
编辑: YouChuan
校对:ZiYu
排版:
NingBai
客服
消息
收藏
下载
最近



















































































