查看完整案例

收藏

下载
这所房子,在最初的设计构想中,便不只被视作一个容器,而更像是一捧可以触摸的空气,一次关于呼吸、光影与温度的邀约。它没有强烈的宣言,只用最贴近自然的原木与最温柔的乳白,构筑一场静默而绵长的对话。
01SPATIAL RHYTHM
空间节律
空间的语言,首先从“打开”开始。设计师移除了餐厨与客厅之间那道隐形的墙,让视线与步履得以自由穿行。
P. 01
P. 02
P. 03
P. 04
P. 05 光从阳台涌入,漫过通铺的温暖木地板,再悄然漫上乳白的墙与顶,空间于是有了潮汐般的呼吸节律。
P. 06
P. 07
P. 08
统一的木色调从地板延伸至柜体,像大地生长出的脉络,将整个空间温柔地锚固在一片宁静之中。
P. 09
P. 10
P. 11
P. 12
P. 13
P. 14 02
BRAND-NEW LIFE
生活姿态
那个被稍稍抬高的阳台,是这次呼吸里一个温柔的顿点。
设计师以同一原木包裹它的四壁、顶面与台面,形成一个沉浸式的木色盒子。
P. 15
P. 16
P. 17
它既是从客厅延伸出的慵懒角落,又因这轻微的地台与材质围合,拥有了独处的静谧气质。在这里,时间可以坐下来,看一本书,或仅仅看光在木纹上游移的轨迹。
P. 18
P. 19
保留了原始的房梁,尊重空间自身的骨骼。而其中一道,被精心包裹上温润的木饰面,如同一道轻盈的、悬于空中的木桥,在视觉上轻轻划分了客厅与餐厅的场域。它不阻挡光与风,只以一道温柔的阴影,提示着功能的转换,是设计中最含蓄的叙事笔触。
P. 20
P. 21
P. 22
P. 23
P. 24
设计师放弃了固定的电视背景墙,选择了一盏可灵活移动的电视架。这不仅是功能的释放,更是一种生活态度的隐喻——空间的主角,永远应当是居住者与其活动,而非某个固定的物件。家,因而获得了随时被重新定义的可能。
P. 25
P. 26 03
RELAXING ATMOSPHERE
心安氛围
最终,这个家呈现出的,并非某种固化的风格,而是一种氛围:当原木的朴拙温暖遇上乳白的纯净通透,当开放的自由感遇上局部围合的安心,空间便有了生命。
P. 27
P. 28
它像一件素雅的衣服,妥帖地包裹日常;又如一个安静的背景,让居住者的生活、记忆与情感,成为其中缓缓浮现、最动人的艺术。
P. 29
P. 30
P. 31
P. 32 • 04
ANALYSIS DIAGRAM
分析图
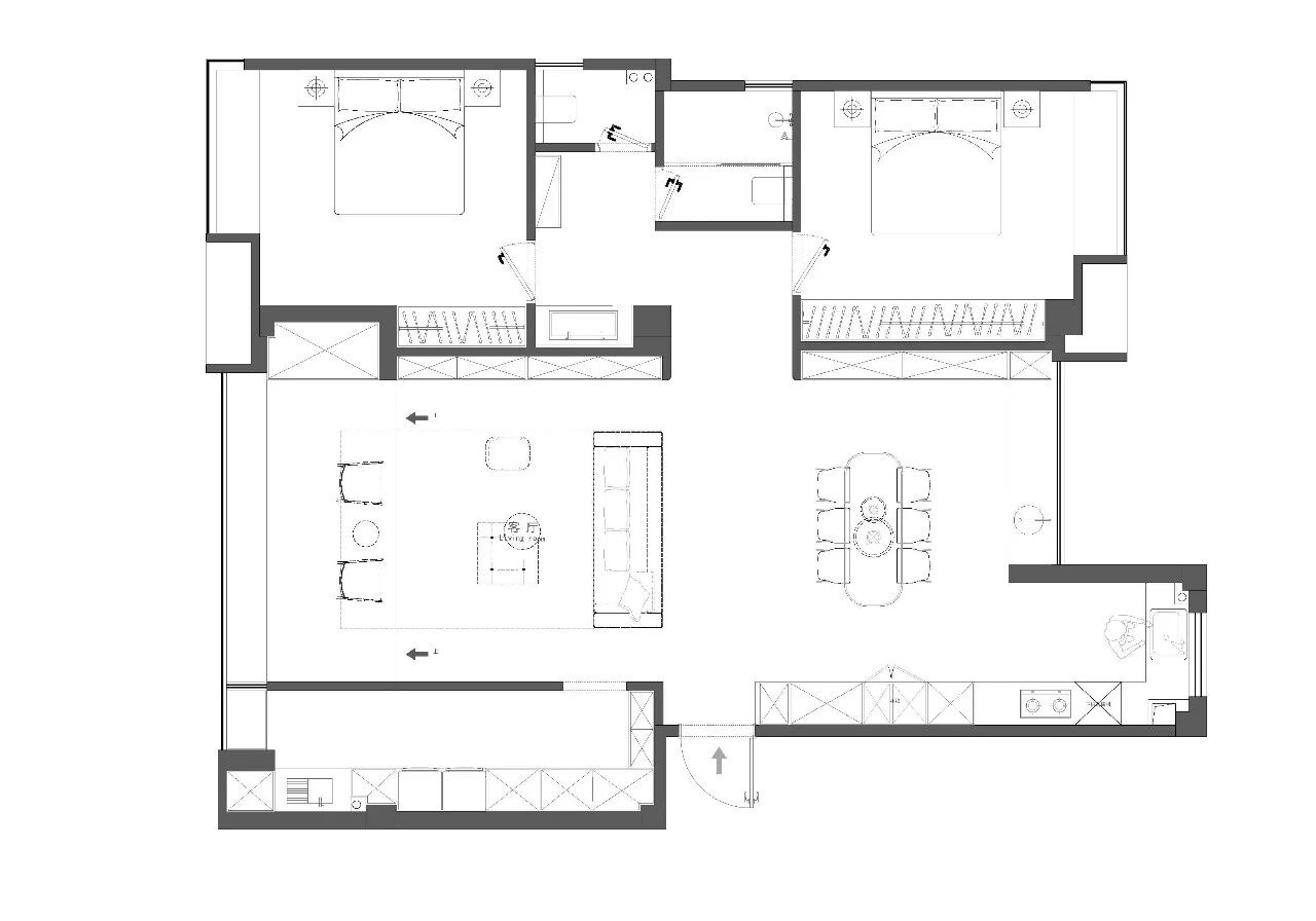
平面图 P. 33
INFO
- 项目名称 - 木息之间
- 设计机构 - 越设计
- 设计总监 - 张伟
- 参与设计 - 鲜鲜
- 微澜软装 - 文森 黄民钰
- 施工单位 - 越设计团队
- 项目面积 - 120m²
- 项目地址 - 福建三明
- 项目摄影 - 光弦摄像
DESIGNER
张伟 越设计创始人
越设计秉承“越设计,越懂设计”的设计理念,将理念想融入空间设计之中,不断超越、融合。公司坚持人文设计思想,注重细节表达,凭借超前的设计构思、合理的预算报价、精良的施工工艺、优质的全程服务,真诚的为每一位业主,量身定制全新、优雅、舒适的居家生活、文化空间。
MAGNUM OPUS
越设计 • 光与秩序
越设计 • 光隅栖心
越设计 • 栖 木
越设计 • 空间之语
越设计 • 建筑东方
越设计 • 中古雅居
越设计 • 延展的空间
越设计 • 空间的构造
越设计 • 宁静之所
越设计 • 书香小筑
越设计 • 淘金
客服
消息
收藏
下载
最近




























































