查看完整案例

收藏

下载
庐茶空间的设计初衷,是想让每一位走进来的人,都能感受到时间慢下来的宁静与温暖。我一直相信,空间不只是功能的容器,更是情绪与记忆的安放之处。感谢评委的青睐,也感谢团队和业主的信任,让这个小小的茶空间,能温柔地拥抱每一位驻足的人。喝茶去,一切都刚刚好。
在温州老城区72条古巷中,一座二层合院老宅重新诠释为雅致茶空间。保留原有建筑结构与历史韵味,运用黑色碳化木、铝合金格栅等现代材料,成功平衡古朴与时尚。设计不仅仅是形式的呈现,更是品茶过程中的一部分,将舒适、雅致与文化融合,将茶道与空间美学结合,呈现独特的茶文化体验。
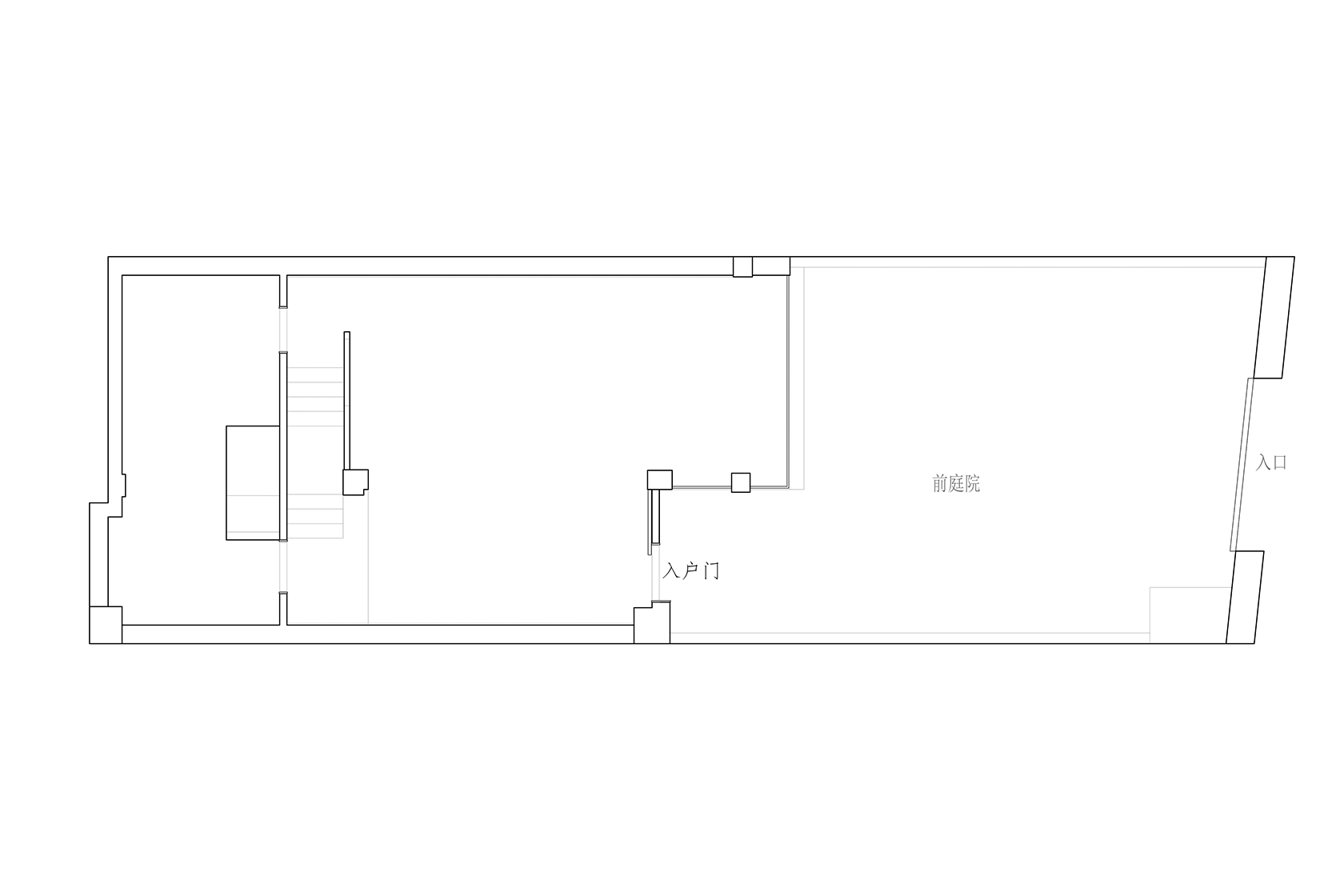
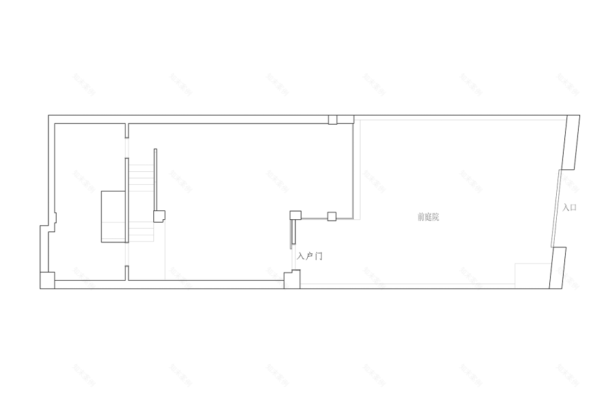
改造前
1. 原始为一字型格局,如同走廊般狭长单调、缺乏层次变化。
2. 空间单向採光,室内昏暗,氛围压抑不迎宾。
改造后
1. 调整入口位置採斜向步道引导,庭院地面适度抬高形成围合感,室内外使用相同地材延续,创造自然过渡与空间层次变化。
2. 打开採光路径配合大面积落地窗,运用浅木与艺术漆材质,提升室内空间明亮与轻盈感受。
3. 设计可变茶檯与多功能的座位区域,满足多元消费场景。
刻意保留老宅砖瓦与黑色木门,并以白漆、老木料与小灯光点缀出门头层次,制造欲遮还现的氛围。入口动线转向,打破原始直线型格局,以“曲径通幽”的节奏打造心理缓衝,让来客有“走进小世界”的感受。
空间主轴围绕“板前茶檯”展开,融合冲泡演示、互动饮用、商品导览与活动展示等多元功能。茶檯桌面採用了水泥材质搭配木作,兼具耐热与视觉温润氛围;设计上结合隐藏收纳与可变桌面,提供茶艺师灵活操作空间,也让客人能更自在参与冲泡互动。
空间以“黑色、木材和水泥”为主基调。户外运用碳化木、老木桩与砂石突显原始粗犷气质;室内採浅色木作配艺术涂料形塑明亮度,临窗包厢设置整片落地窗引入自然光景。
入口以白漆翻新门头,搭配黑色木门与深色玻璃隔断,点缀氛围灯光,吸引路人目光。
动线避开直冲,木栅栏与砂石庭院形成曲径通幽的迎宾路径。
碳化木与绿植的层次设计,营造老巷深处的隐秘与自然气息,让顾客一入门即感受到温暖与探索的乐趣。
吧檯区以一字型茶檯为核心,採用水泥与老木桌面,搭配轮式中岛,灵活应对不同人数需求。
靠牆室座位区以低矮座椅与浅色木作打造休閒氛围。
地台抬高的小包间则以帷幔分隔,提供私密体验。座位分佈平衡翻桌率与互动性,营造开放社交场景。
环形动线以吧檯为中心,方便茶艺师与顾客互动,后厨和杂物间则隐藏在公共空间外,规划做旧不鏽钢为轮廓突出牆体立面,让后厨和杂物间的入口显得与众不同和立体,维持视觉清爽与动线效率。
收纳隐藏于茶檯与中岛下方,格子展示牆兼具产品陈列与装饰功能,浅色木作弱化存在感,保持空间开阔。
靠牆座位区配置便携檯灯营造温馨光感,承重柱与牆面木条内藏灯带向上照射,透过光线折射提升整体亮度,同时满足夜间活动照明需求。
缪茹/缪茹空间设计工作室主理人
客服
消息
收藏
下载
最近





















