查看完整案例

收藏

下载
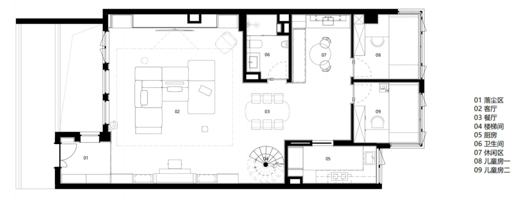
J I C H E N - D E S I G N 一楼布局图
二楼布局图
三楼布局图
墙面采用大面积的浅色,奠定了空间柔和、治愈的基调,弱化了入户的边界感,同时让狭小的空间在视觉上更大更宽广。 右侧白色木门隔断既划分了空间,又保证了空气与光线的流通,营造出“隔而不断”的通透感。
The walls are covered with a large area of light colors, establishing a soft and soothing tone for the space. This reduces the sense of boundary at the entrance and makes the small space appear larger and more spacious visually. The white wooden partition on the right side not only divides the space but also ensures the circulation of air and light, creating a transparent feeling of "separation without cutting off connection".
左侧钢琴区与右侧起居区自然衔接,通过地毯与家具摆放形成功能分区,既满足了演奏、阅读的需求,又保证了空间的流动性。
The piano area on the left seamlessly connects with the living area on the right. Through the use of carpets and the arrangement of furniture, a functional division is achieved, which not only meets the needs of playing and reading but also ensures the fluidity of the space.
模块沙发的组合,形成了围合式的社交核心区,既满足多人互动,又能提供独处的放松角落,动线流畅,功能分区清晰。
The combination of modular sofas creates a closed social core area, which not only accommodates multiple interactions but also provides a secluded relaxation spot. The flow of movement is smooth and the functional zones are clearly defined.
以钢琴为视觉中心,两侧对称布局的书柜与隐形门,形成了严谨的秩序感;前方的大尺寸沙发则围合出松弛的社交区,动静分区清晰,兼顾了仪式感与实用性。
With the piano as the visual center, the bookcases and concealed doors arranged symmetrically on both sides create a strict sense of order; the large-sized sofa in the front forms a relaxed social area, clearly dividing the space into quiet and active zones, while balancing both formality and practicality.
柔软的织物与复古提花图案,既平衡了木作的厚重,又增添了空间的层次与故事感。
The soft fabric and the retro jacquard pattern not only balance the heaviness of the woodwork but also add depth and a sense of story to the space.
以螺旋楼梯为空间的视觉锚点,将餐厅与上层空间自然衔接,形成垂直方向的层次延伸。餐桌居中摆放,既保证了用餐区的独立性,又让空间动线流畅,兼顾了仪式感与实用性。
Using the spiral staircase as the visual anchor point of the space, the restaurant is naturally connected to the upper level, creating a vertical extension of layers. The dining table is placed in the center, which not only ensures the independence of the dining area but also makes the space flow smoothly, balancing both the sense of ceremony and practicality.
酒红色丝绒卡座搭配圆形木桌与造型独特的木椅,形成一个围合式的休闲角落,既适合独处阅读,也能满足小范围社交。右侧的整面木作橱柜与开放式搁板,既提供了充足的收纳空间,又自然地界定了区域边界。
The wine-red velvet seating area is complemented by a round wooden table and a uniquely styled wooden chair, creating a closed-off leisure corner. It is suitable for solitary reading as well as small-scale social gatherings. The entire wooden cabinet on the right and the open shelves provide ample storage space while naturally defining the boundaries of the area.
儿童房用温柔的色彩与克制的美学,为孩子打造了一个兼具功能性与治愈感的成长空间,让他们在其中既能安心学习,又能自由探索与做梦。
The children’s room uses gentle colors and restrained aesthetics to create a growth space that is both functional and soothing for children. Here, they can study with peace of mind while also freely exploring and dreaming.
起居室整体以米白、浅杏、原木色为基调,营造出柔和、通透的视觉感受,弱化空间边界感。同时将自然元素融入现代生活,唤起对传统生活方式的诗意联想。天窗引入自然光,让空间在不同时段呈现出明暗变化的动态美感。
The living room is mainly decorated with beige, light apricot and natural wood tones, creating a soft and transparent visual effect that reduces the sense of spatial boundaries. At the same time, natural elements are integrated into modern life, evoking poetic associations with traditional lifestyles. The skylight introduces natural light, allowing the space to present dynamic aesthetic beauty with varying brightness and darkness at different times.
主卧大面积的浅木饰面传递出温暖质朴的触感,弱化了古典元素的厚重感。右侧的罗马柱与左侧的大窗形成视觉平衡,既划分了空间,又保持了通透感,避免了对称带来的刻板。
The large area of light wood finish in the master bedroom conveys a warm and simple touch, reducing the heaviness of the classical elements. The Roman columns on the right and the large window on the left create a visual balance, which not only divides the space but also maintains transparency, avoiding the rigidity brought by symmetry.
透明的挂衣区与封闭式储物区的结合,兼顾了展示与收纳的功能,让衣物成为空间的一部分。
The combination of the transparent hanging area and the enclosed storage area not only integrates display and storage functions but also makes the clothes an integral part of the space.
以开放式布局实现功能分区,从高效办公到沉浸阅读,再到艺术演奏,场景切换自如。
The open layout enables functional zoning, allowing for seamless transitions from efficient office work to immersive reading and even artistic performances.
空间被巧妙地分为洗漱区与沐浴区,通过弧形墙体与玻璃隔断实现了干湿分离,既保证了功能独立,又通过流畅的曲线弱化了空间棱角,让整体更具包裹感与安全感。
The space is ingeniously divided into a washing area and a bathing area. The dry and wet zones are separated by curved walls and glass partitions, ensuring functional independence while also softening the sharp edges of the space through smooth curves, making the overall space more enveloping and secure.
Project Name 项目名称 | 督院府邸
Project Design 项目设计 | 曹瑜 CYAN
Location 项目地址 | 中国 成都
Design Drawing 设计制图 | 叶韬 Watson
Main Material Design | 柏东Henry
Design Agency 设计机构| JICHEN DESIGN
Effect of Rendering 效果呈现 | B.STUDIO
Editor 文案编辑 | 赵璐Audrey
Area 项目面积 | 306㎡
Project Time 设计时间 | 2025.11
Mailbox
E-mail: 地址:四川省成都市锦江区捌楼八号设计社区
客服
消息
收藏
下载
最近













































