查看完整案例

收藏

下载
地块位于昆山高新区城郊,周围规划为工业园区,初到现场时,周围还是空地,西侧的小河连通南侧不远的吴淞江,它的下游就是苏州河,在上海外滩汇入黄浦江。
The site is located on the suburban edge of Kunshan High-Tech Zone, within an area planned as an industrial park. When we first visited, the area was still largely vacant land. A small canal along the western edge connects to the Wusong River a short distance to the south; downstream it becomes Suzhou Creek, which flows through Shanghai and joins the Huangpu River at the Bund.
▼位于吴淞江畔工业园区旁的昆山元丰路消防站,Kunshan Yuanfeng Road Fire Station, beside the Wusong River and adjacent to an industrial park ©陈颢
项目一开始并没有一份完整的任务书,我们先去了解了消防员的日常。消防员需要全天候驻留在消防站,出警只是工作的一部分。值班、等待、训练、吃饭、娱乐、休息……大部分时间是在站内度过。消防站通常只被当作一个高效的装置,但其实效率并不是唯一的问题,我们认为这个设计还有一个主题:作为一个容纳日常生活的地方,空间应该怎么组织,才不会让时间太难熬。讨论过程中,有一个硬性要求始终非常明确:从接到指令到到达消防车库,必须控制在两分钟之内。刚性的需求能让设计展开变得明确,设计的很多决定,都首先围绕着这个核心。
▼总平面图,Site plan ©亘建筑
At the beginning of the project, there was no complete brief. We started by observing the firefighters’ daily routine. Firefighters live on site around the clock; responding to emergencies is only part of their work. Duty shifts, waiting, training, meals, recreation and rest—most of their time is spent within the station. A fire station is often designed purely as an efficient machine, but efficiency alone did not seem sufficient here. We saw another question behind the program: as a place that accommodates everyday life, how should space be organized so that time does not become unbearable. Throughout the discussions, one non-negotiable requirement remained clear: from receiving an alarm to reaching the fire engine bay must be within two minutes. This rigid constraint became the anchor of the design, and many decisions were made directly in response to it.
▼庭院是建筑的另一个中心,The courtyard is the building’s second center ©陈颢
▼作为整个消防站建筑核心的车库,The fire engine bay as the core of the building ©陈颢
我们把消防车库当作整个建筑的核心,它既是出警的起点,也是整个建筑秩序的中心。它被设计成一个类似厂房的空间,柱、梁、板,一层一层往上叠加,构成一个结构逻辑清晰的体系。我们希望这个空间像一个儿童装玩具车的箱子,或者一个工具箱,每一件东西都有自己的位置,一切都清晰明了的摆在那里。▼剖透视图,Sectional perspective ©亘建筑
We treated the fire engine bay as the core of the building. It is both the starting point for emergency response and the center of spatial order. The bay is designed as a workshop-like space, where columns, beams and slabs are stacked layer by layer in a legible structural logic. We imagined it as a child’s box for toy cars, or a toolbox: everything with its own place, and everything is laid out plainly and directly.
▼柱、梁、板层层叠加的车库是整个建筑的核心,The fire engine bay, where columns, beams and slabs are stacked layer by layer, is the core of the building ©陈颢
与传统的封闭式车库不同,车库顶部设置了通长的高窗和拔风的缝隙,以利用日光照明和自然通风。这也为这个空间赋予了一种与外界环境连通的氛围。白天,站在明亮的车库里,可以看到上方的天空,也可以透过健身空间看到南侧的庭院,车库不再只是一个储存用的盒子,而是成为日常生活可以经过的场地。电动折叠门平常是完全关闭的,在人视高的位置有一排视窗。出警时,门可以完全打开。
Unlike conventional enclosed garages, the bay is topped with continuous high windows and narrow exhaust slots to bring in daylight and enable natural ventilation. This gives the space a direct connection to the outside. In daylight, standing inside the bright garage, one can see the sky above and, through the fitness space, the south courtyard is visible. The fire engine bay is no longer only a container for vehicles, but a space within daily routine. The electric folding doors remain closed in normal conditions, with a row of viewing windows at eye level; during an emergency, they can open completely.
▼从车库透过健身空间看到南侧的庭院,From the engine bay, the south courtyard is visible through the fitness space ©陈颢
▼两侧的天窗让车库变得明亮,Skylights on both sides brighten the fire engine bay ©陈颢
▼高敞的车库和压低的健身空间,The lofty engine bay and the compressed fitness space ©陈颢
▼车库的电动折叠门平常完全关闭,在人视高度有一排视窗,The electric folding doors of the fire engine bay remain fully closed in normal conditions, with a row of viewing windows at eye level ©陈颢
▼车库电动折叠门的开启,The opening of the fire engine bay’s electric folding doors ©陈颢
消防员的宿舍被安排在紧邻车库的南侧,朝向庭院,可以通过北侧的走廊快速出警。健身,办公,会议,娱乐也都围绕庭院组织。庭院是这个建筑的另一个中心——等候与日常生活的中心。▼空间示意图,Spatial diagram ©亘建筑
The firefighters’ dormitories are placed immediately south of the garage, facing the courtyard, with a north-side corridor that provides a fast route to dispatch. Fitness, offices, meeting rooms and recreational spaces are also organized around the courtyard. The courtyard becomes the second center of the building—a center for waiting and for everyday life.
▼朝向庭院的宿舍,Dormitories facing the courtyard ©陈颢
▼被宿舍、健身房、餐厅围绕的庭院是日常生活的中心,The courtyard, enclosed by the dormitories, fitness space and canteen, is the center of everyday life ©陈颢
▼从庭院看上一层的健身空间和二层的宿舍,From the courtyard, looking towards the first-floor fitness space and the second-floor dormitories ©亘建筑
▼每间宿舍都有朝向庭院的阳台,Each dormitory has a balcony facing the courtyard ©亘建筑
通长的天窗放置在几个关键位置,让车库、宿舍走廊、卫生间、楼梯间白天都有自然采光。车库天窗的形式很简单,从室内看去,就是一个朝北开口的洞。天窗和屋顶都是钢结构体系,表面涂漆,放置在清水混凝土框架之上,分别扮演了覆盖与承重的角色。
▼主楼结构关系示意图,Structural diagram of the main building ©亘建筑
A series of continuous skylights is placed at several key positions so that the garage, dormitory corridors, bathrooms, and staircases all receive natural light during the day. The skylights above the fire engine bay is extremely simple. From inside, they appear as north-facing openings cut into the roof. Both the skylights and the roof are steel structures, painted and placed on top of the exposed concrete frame, each playing distinct roles of covering and load-bearing.
▼车库上方的天窗,Skylights above the fire engine bay ©陈颢
▼宿舍走廊的采光天窗,Skylight bringing daylight into the dormitory corridor ©陈颢
▼由高侧窗带来自然采光的东侧楼梯间,The west staircase links the ground-floor lobby to the second-floor dormitory corridor ©亘建筑
▼西侧楼梯间一层,West staircase, ground floor ©亘建筑
▼西侧楼梯间二层,West staircase, second floor ©亘建筑
项目进行到后期时遇到疫情。消防员长时间无法外出活动,大队长希望增加一个下雨天也能打球的篮球场。这个需求并不在最初的设想中,但却很合理。最终,我们在场地南端搭建了一个半室外的篮球场。为了尽量减少结构总量,采用了膜结构,并利用了原来的建筑屋顶和训练塔为结构,辅以几根立柱,完成了这个覆盖。
▼篮球场顶棚结构关系示意图,Structural diagram of the basketball court canopy ©亘建筑
In the later phase of the project, the pandemic occurred. Firefighters were unable to leave the station for extended periods, and the station commander requested a basketball court usable even on rainy days. This was not part of the initial programme, but it was a rational addition. Eventually, a semi-outdoor basketball court was built at the southern end of the site. To minimize structural mass, we adopted a tensile membrane canopy, supported by the existing roof and the training tower, together with a few additional columns.
▼篮球场的膜结构顶棚挡雨,侧面半透膜遮挡南向的直射光,The tensile membrane canopy of the basketball court provides rain cover, while a semi-translucent side membrane screens direct southern sunlight ©陈颢
▼主楼南侧的风雨篮球场是消防员们在紧张备勤之余的放松场所,The covered basketball court on the south side of the main building provides a place for firefighters to relax between periods of duty ©陈颢
▼消防站的主楼、训练塔,以及由主楼和训练塔共同支撑起的篮球场顶棚,The main building, training tower, and the basketball court canopy jointly supported by them ©陈颢
在方案的推进过程中,车库与出警动线始终是核心,其余功能围绕它逐步展开。不同功能与车库的亲疏远近,人的行动路线,采光方向,通风方式,用餐和健身的感受,都围绕着这个中心逐步生长。这个建筑的确是高度功能化的,但围绕着这个坚硬的内核,我们也希望空间不要过度紧张,让人在重复和等待之中,也能感受到一点放松和舒适。
Throughout the development of the project, the engine bay and dispatch route remained the core of the scheme, with other functions unfolding around it. The distance of each space from the garage, movement patterns, orientations for light, ventilation strategies, and the experience of eating or training were all shaped in relation to this center. The building is undeniably highly functional, yet around this hard core, we aimed to keep the spaces from becoming overly tense—so that within repetition and waiting, a measure of ease and comfort can still be felt.
▼从健身空间看向车库,Looking from the fitness space into the fire engine bay ©陈颢
▼金属折叠门和混凝土框架构成的车库外立面,The fire engine bay façade formed by metal folding doors and the concrete frame ©陈颢
▼透过车库和健身空间看向庭院,Looking towards the courtyard through the fire engine bay and the fitness space ©陈颢
▼夕阳下的消防站,The fire station at sunset ©陈颢
▼由主楼、训练塔和篮球场组成的消防站,The fire station composed of the main building, training tower and basketball court ©亘建筑
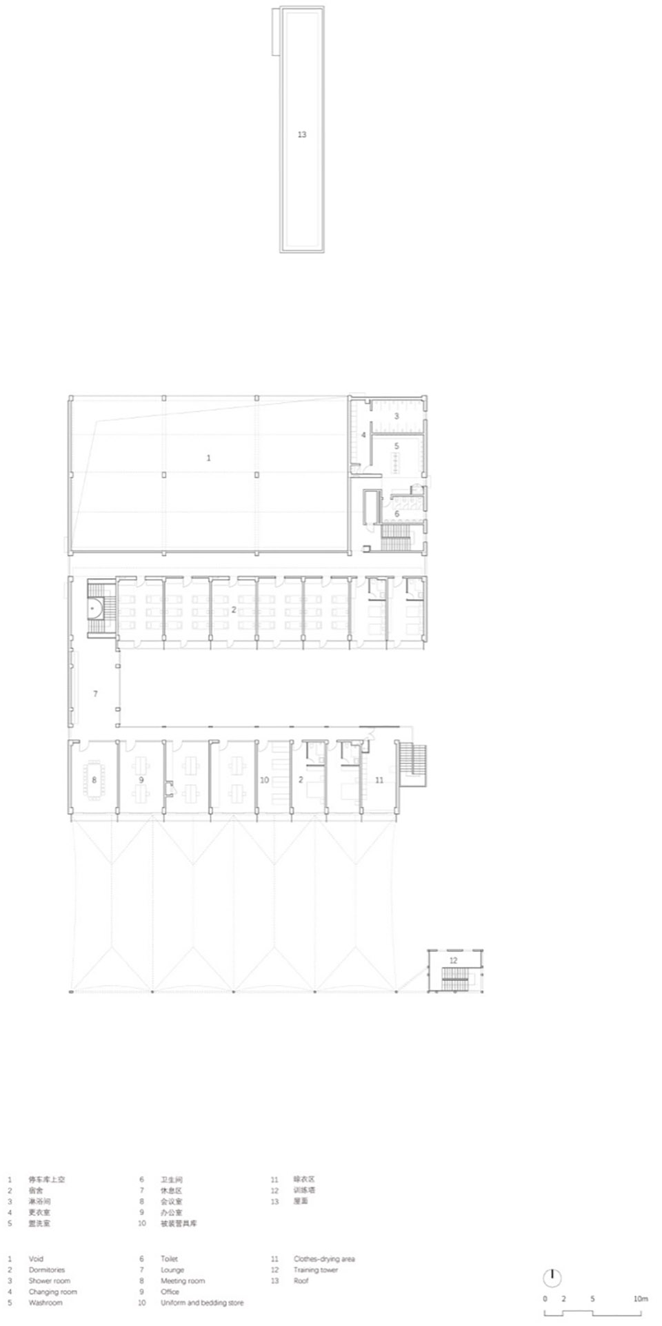
▼一层平面图,Ground floor plan ©亘建筑
▼二层平面图,Second floor plan ©亘建筑
▼屋顶平面图,Roof plan ©亘建筑
▼南立面图,South elevation ©亘建筑
▼北立面图,North elevation ©亘建筑
▼西立面图,West elevation ©亘建筑
▼东立面图,East elevation ©亘建筑
▼剖面图,Longitudinal section ©亘建筑
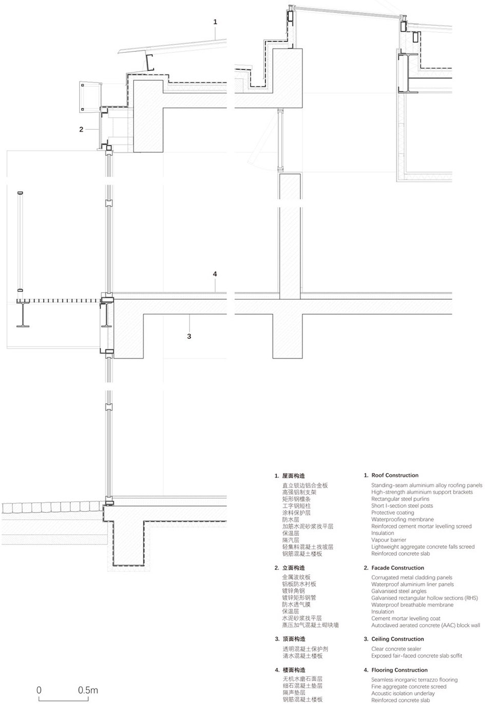
▼详图一,Detail 1 ©亘建筑
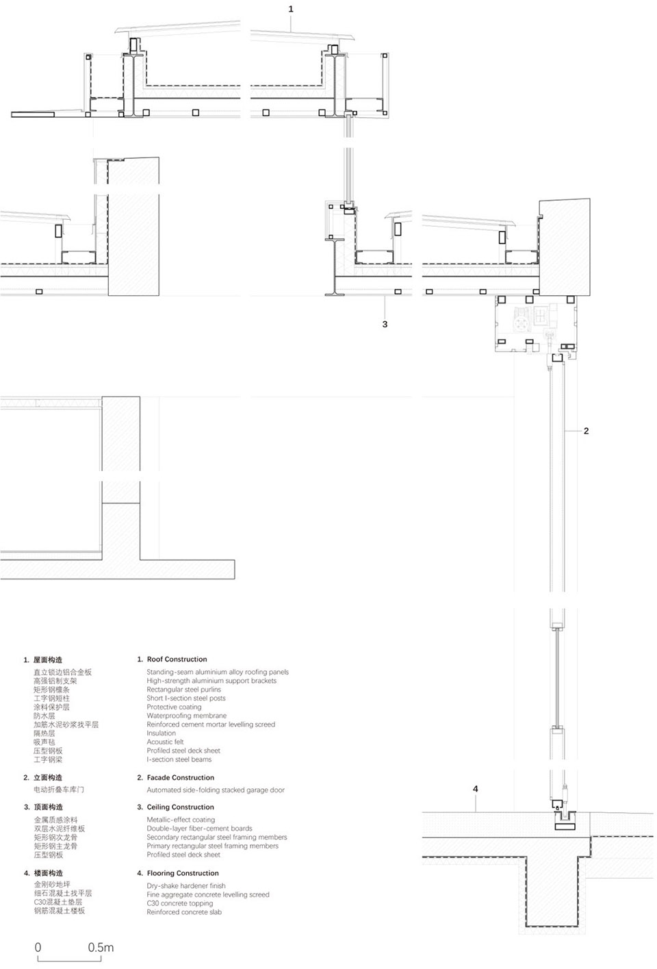
▼详图二,Detail 2 ©亘建筑
▼详图三,Detail 3 ©亘建筑
项目名称:昆山元丰路消防站
项目地点:江苏昆山
建筑、室内、景观设计:亘建筑事务所
主持建筑师:范蓓蕾、薛喆、孔锐
方案阶段负责人:张怡羚
深化阶段负责人:薛君
施工阶段负责人:宋崇芳
设计团队: 邱圣禄、王诗羽、陈希、钱佳、余晨埜、庞寅雷、张佳馨、李涵之
结构设计:张准、胡晓劼、蔡研明 / 和作结构建筑研究所
机电设计:梁明、潘珅、万华军、刘剑平 / 上海勘察设计研究院(集团)有限公司
金属立面顾问:来实Lysaght
膜结构顾问:法拉利Serge Ferrari
车库折叠门顾问:诺沃芬Novoferm
合作设计院:苏州中海建筑设计有限公司
业主:昆山市玉山镇人民政府
施工总包:天合建设集团有限公司
膜结构专项施工:上海迈博张拉膜结构工程技术有限公司
车库折叠门施工:三和诺沃芬门业(常熟)有限公司
类型:新建
功能:公共服务设施
占地面积:6996㎡
建筑面积:3216㎡
设计时间:2020年7月至2023年8月
施工时间:2022年6月至2024年10月
建成时间:2024年10月
项目状态:建成
结构类型:混凝土结构、钢结构、膜结构
主要材料:混凝土、钢、金属波纹板、PVDF 聚酯基布膜材
摄影:陈颢、亘建筑
Project: Kunshan Yuanfeng Road Fire Station
Location: Kunshan, Jiangsu, China
Architecture, Interior & Landscape Design: genarchitects
Principals in Charge: Fan Beilei, Xue Zhe, Kong Rui
Project Lead (Design): Zhang Yiling
Project Lead (Design Development): Xue Jun
Project Lead (Delivery): Song Chongfang
Project Team: Qiu Shenglu; Wang Shiyu; Chen Xi; Qian Jia; Yu Chenye; Pang Yinlei; Zhang Jiaxin; Li Hanzhi
Structural Engineer: Zhang Zhun; Hu Xiaojie; Cai Yanming / Hezuo Structural Architecture Research Institute
MEP Engineer: Liang Ming; Pan Shen; Wan Huajun; Liu Jianping / Shanghai Investigation, Design & Research Institute (Group) Co., Ltd.
Metal Façade Consultant: Lysaght
Membrane Structure Consultant: Serge Ferrari
Folding Door Consultant (Garage): Novoferm
Local Design Institute: Suzhou Zhonghai Architectural Design Co., Ltd.
Client: Yushan Town People’s Government, Kunshan
Main Contractor (GC): Tianhe Construction Group
Specialist Contractor (Membrane Structure): Shanghai Maibo Tensioned Membrane Engineering Technology Co., Ltd.
Specialist Contractor (Folding Door): Sanhe Novoferm Door Industry (Changshu) Co., Ltd.
Project Type: New Construction
Function: Public Service Facility
Site Area: 6,996 m²
GFA: 3,216 m²
Design Period: July 2020 – August 2023
Construction Period: June 2022 – October 2024
Completion: October 2024
Project Status: Completed
Structure: Reinforced concrete; Steel; Membrane structure
Primary Materials: Concrete; Steel; Corrugated metal sheeting; PVDF-coated polyester membrane fabric
Photography: Chen Hao, genarchitects
客服
消息
收藏
下载
最近











































