查看完整案例

收藏

下载

翻译
Architects:ARC Architects
Area:1200m²
Year:2025
Photographs:Denis Komarov
Lead Architect:Bobir Klichev
Lightning Design:aledo
Category:Workshop,Museum,Gallery
Team:Bekzod Muhammadboev, Mirzoalisher Mirazizov, Mirkamol Shukurov, Zilola Dusthodjaeva
Interior Designers:Farrukh Shadmanov, Mardon Radjabiy, Muhammadbilol Khaitboev, Temurmalik Azizizov
MEP & HVAC:Mazza project
City:Tashkent
Country:Uzbekistan
Text description provided by the architects. Suzani by Madina Kasimbaeva is located in the historic part of Tashkent and forms part of the Suzuk Ota ensemble, which includes a mosque, a mausoleum, landscaped parkland, and traditional residential workshop houses. The complex occupies the front line of the ensemble and opens onto the main street, establishing a strong urban presence.
The project was conceived as a space for the production and exhibition of traditional suzani embroidery — a craft with a rich history and an important element of the cultural heritage of Central Asian peoples. The building's owner researches various regional embroidery techniques and is actively engaged in their production and popularisation.
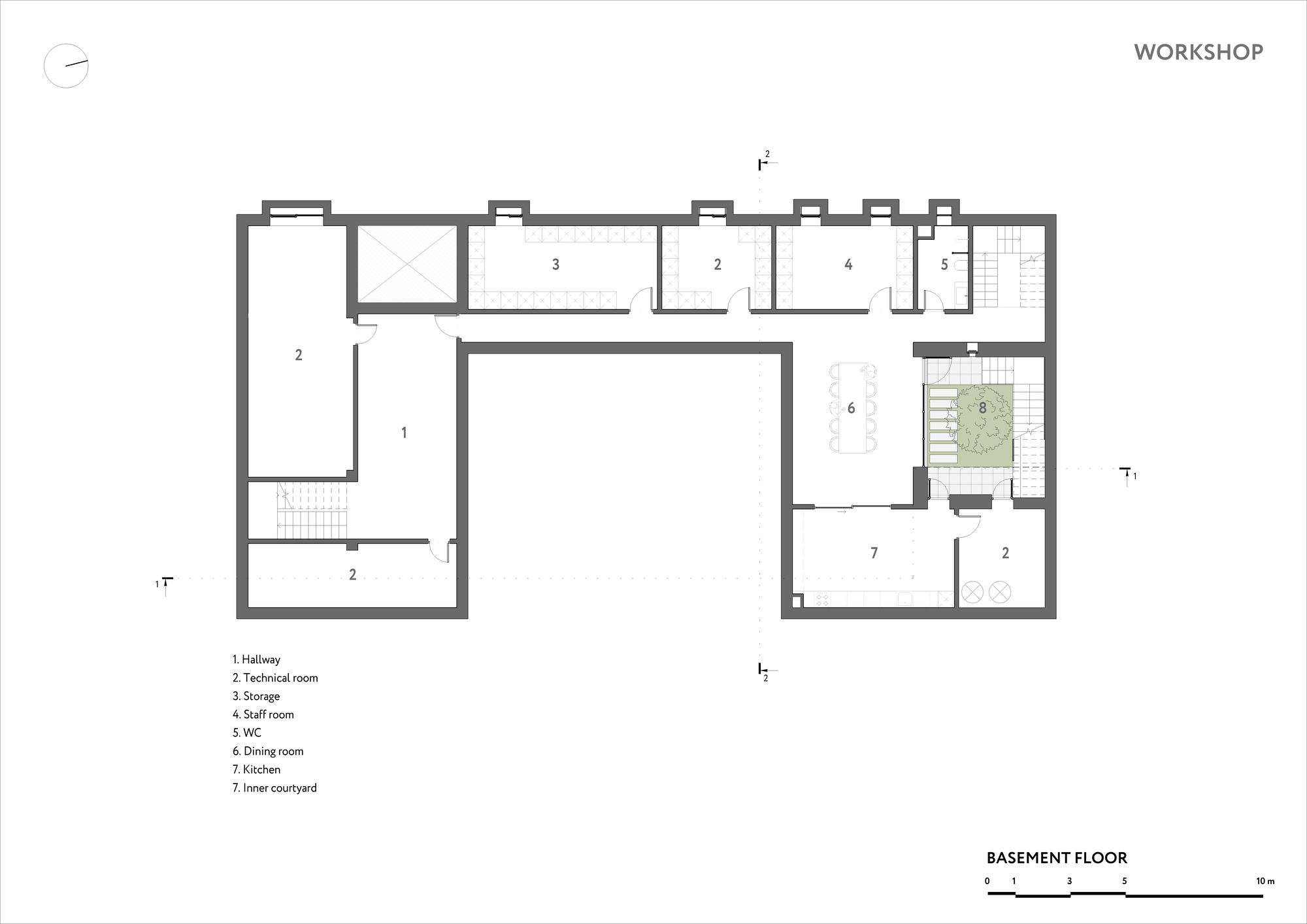
The complex consists of two buildings: the gallery-museum (eastern building) and the workshop (western building). Each structure is designed in reference to traditional Central Asian residential houses and craft workshops. The buildings follow a perimeter layout composed of several courtyards arranged on different levels. The central courtyards feature ayvans — traditional windcatchers oriented toward the prevailing wind.
Gallery-Museum. This building has a visitor-oriented programme and includes a ground floor and a basement level. A mulberry tree stands in the central courtyard, symbolising the birth of silk. The ground floor follows a circular layout and contains the entrance museum area, the main hall displaying the largest suzani piece, a gallery space, and a shop. The basement level houses an event hall, a café, and technical facilities. The roof terrace offers panoramic views of the Suzuk Ota complex.
Workshop. The ground floor accommodates production spaces, including areas for thread dyeing, embroidery, and educational activities. The second floor contains studios for artists and designers, a sewing area, offices, and a meeting room. The basement level includes a staff dining area, storage rooms, and technical facilities.
The façades are constructed from traditional "g'ishti obi" brick. The finishing materials also include natural, locally sourced materials such as ceramic tiles, limestone, and earthen plaster. The total site area is 950 m², while the total built-up area is 1,200 m².
Project gallery
客服
消息
收藏
下载
最近























































