查看完整案例

收藏

下载
引言
Introduction
“那美丽的天,总是一望无边 有粒种子埋在云下面 营养来自这满地污泥 生根发芽,仍然顺从天意 无数个雨点,在我面前洒满大地 站在这里,只有一个问题 向阳花,如果你生长在黑暗下 向阳花,你会不会害怕。”
—谢天笑《向阳花》歌词
在平顶山新华区福泉路旁,一个载有新生希望的地方。它在那里默默地等待,等待着关于一个明天的故事,那是一间略显陈旧且空旷的场地,墙皮还散发着新鲜的味道,如同婴儿爽嫩的皮肤,即将到来的轰鸣声像是啼哭般,诉说着一段未来的篇章。
▲PLAN丨项目俯视图
#新生与破局
来的时候在土建阶段,现场的过道与房间基本已经成型,粗犷的水泥墙面和地面,带着一种未雕琢的质朴,却也隐隐透露出未来空间的轮廓。那些横平竖直的梁柱,像是空间的骨骼,坚实而有力,支撑起了整个建筑的框架。我们能做的就是“查缺补漏”,完善更多关于设计的可能性,让这个即将诞生的空间,成为妈妈和宝宝们心中的理想居所。
▲现场格局多半已成型
▲相接区域场地高差1.2米。这是有着高差的拼接空间,如何将这1.2米与坡道充分结合,将是我们这次设计的重点,电梯井是已确定的位置,绿萝母婴充分考虑到产后妈妈身体虚弱、依赖轮椅通行的实际需求,打造了这条长达9米的舒缓坡道,让每一次通行都平稳从容。
▲动线与电梯井的关系
#向阳花
向阳花,一个带有力量、重生、活力的象征。
在时光的长河中,每一位宝妈都是勇敢的摆渡人,承载着这个小生命。
空间以“自然生长力·年轻新生代”为设计理念,融入当代美学与年轻化生活态度,打造一个既疗愈身心又充满活力的新生空间。针对孕妈的审美偏好与需求,以 “灵动、轻盈、互动、成长” 为关键词,构建一个充满喜悦与共鸣的疗愈场所。
正中央的向阳花宛如一颗璀璨的星辰,镶嵌在天花板上,以线条勾勒出太阳花的轮廓,花瓣向外舒展,仿佛在尽情拥抱整个世界。在灯光的照耀下闪烁着耀眼的光芒,仿佛蕴含着无尽的能量,就像太阳每天都会升起,带来新的希望和活力。
打破传统月子会所的封闭感,公共区域设置环形沙发社交区+模块化活动桌,可灵活切换为亲子课堂、妈妈分享会或下午茶场景。
延续绿色与原木色主调,局部融入低饱和度色系,搭配柔光照明系统,营造安心而不沉闷的疗愈氛围,色调选择与符合当下空间的呈现,传递积极生活态度。
环形沙发区与活动空间,充满低语交谈声、轻柔笑声,构建温暖、有生命力的社交场景。
靠墙设置的书格,是给每一位新手爸妈特供的“使用手册”,那些被翻得卷边的育儿书、贴满便签的成长记录、甚至夹在其中的产检单,都是这本手册里最真实的章节,见证着新手爸妈从生涩到从容的蜕变。
柑橘香提振精神,休息区的薰衣草促进放松,“有事没事,来杯美式”也在告诉每一位新手爸爸,你也同样重要。
颂钵疗愈位于会所相对静谧的角落,通过布帘营造氛围感受,既保证隐私,又引入自然光线。里面设置过渡区,提供柔软拖鞋与香氛喷雾,调整身心状态。
进入到有“男士止步”的内厅后,这里便成了宝妈们的专属天地,一个充满温度与力量的港湾。这里不仅是身体的休憩之所,更是心灵的栖息地,宝妈们在这里分享为人母的喜悦,交流育儿经验,彼此鼓励,共同成长。
从夜奶的疲惫到见证成长的惊喜,这个空间默默记录着每一个细微的蜕变瞬间。它像一位温柔的守护者,包容着脆弱,也见证着坚韧。
带有水磨石元素的地面,及自然的木纹如同岁月的诗行,每一道纹路都仿佛在讲述着森林里的故事。木纹的色调温暖而质朴,夹杂着深浅不一的层次感。一幅幅充满童趣的挂画,就像是一个小小的窗口,每一笔色彩都藏着对未来的期许,每一处细节都满溢着新生的喜悦。
洗澡游泳的地方将洁净与安全的画面呈现在家人面前,柔和的灯光既避免了强光对宝宝稚嫩双眼的刺激,又营造出温暖而梦幻的氛围。尽头的位置,特意为宝爸们开辟了一方静谧的休憩场地,这里多了几分沉稳与从容。
通往VIP房间的路径,悄然延伸向一片静谧天地,私密性与尊贵感交织,让每一位入住的妈妈和宝宝,都能在这片独立的天地中,感受如家般温暖,却又超越家的细致服务。
墙面上的“Tiger”装饰画,宛如一个倔强不屈的灵魂剪影。它不张扬,却自带锋芒,那姿态,像极了生命之初那份最原始的、不向任何未知低头的勇气。
房间里面,仿佛走进了一个被温柔包裹的居家空间。奶油色作为主色调,大面积铺陈在墙面、天花板,带来柔和、细腻的视觉感受,就像冬日里那一抹温暖的阳光,轻柔地洒在身上,让人瞬间放松下来,所有的疲惫与压力都随之消散。木头的天然纹理,带来一种回归自然的亲切感,让整个空间既有奶油风的浪漫甜美,又不失木质的沉稳大气,二者相得益彰,营造出一种温馨、舒适且极具包容性的居住氛围。
项目过程
Project process
▲PROCESS丨过程中
项目分析
Project analysis
▲POSITION丨项目区位
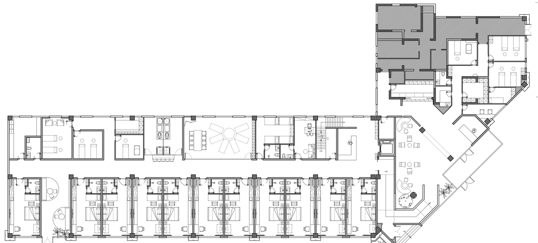
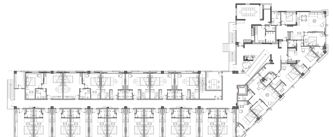
▲1F PLAN丨平面规划
▲2F PLAN丨平面规划
▲PROJECT丨轴测图
项目信息
Project information
项目名称丨绿萝母婴月子会所
项目位置丨河南平顶山
设计机构丨XZID室内设计
项目类型丨月子会所
项目面积丨2500㎡
设计时间丨2025.05
竣工时间丨2025.12
摄影拍摄丨张扬
主要材料丨地胶、木饰面、艺术涂料、不锈钢、石材
XZID室内设计主创许臻(左)、路盼
关于我们
About us
XZID室内设计是一个年轻有活力的90后团队,专注于提供室内空间整体解决方案,注重以现代主义设计改变居住审美,寻求空间情绪与体验及丰富与克制的平衡,为空间创造无限可能。
客服
消息
收藏
下载
最近

























































