查看完整案例

收藏

下载
近日,全国专用设备制造的领军者临工重机,正式启用位于济南高新区前沿科创基地的全球总部。这不仅是一家企业的发展里程碑,更是一次关于现代产业园区如何通过“精准设计”赋能“龙头链主”的生动实践。华建集团华东建筑设计研究院有限公司作为本项目的原创设计单位,深度参与从概念规划到建成交付的全过程,以建筑设计的专业语言,回应了新型产业用地(M0)政策下的复合需求,为企业量身打造了一个集“总部、研发、生产”于一体的全链条运营载体。
港西路项目街景
项目整体鸟瞰
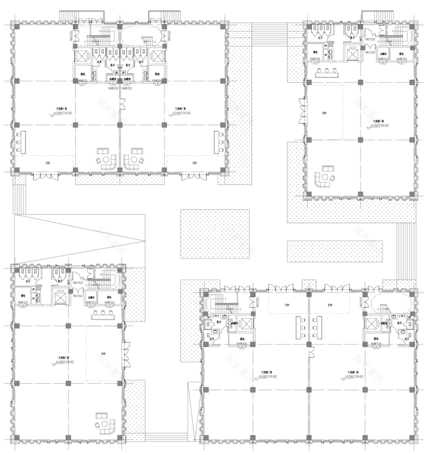
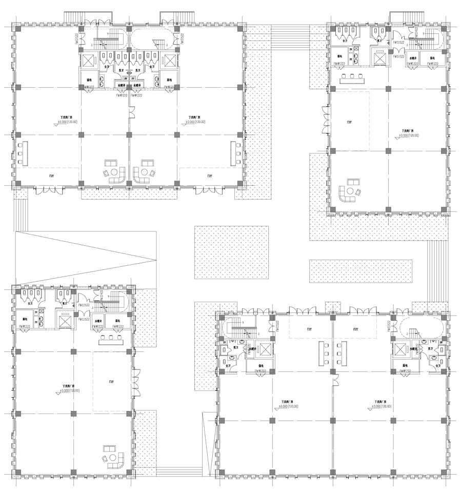
本案的核心设计理念在于打破传统工业园区功能割裂的桎梏,设计以绿色矩阵为理念,总体通过风车状的组团布局,巧妙利用建筑空隙塑造出特色庭院空间,这些场所摆脱了厂房的功能属性,转化为承载休闲、社交与学术沙龙等多元活动的户外客厅。在城市主干道设置企业总部研发楼形成80米高的双塔城市天际线,与组团共同构成城市友好,具有温度的产业空间。设计团队致力将新型产业用地(M0)的“生产+研发”复合属性发挥到极致,创造一个能激发创新、提升效率、促进协作的产业聚集区。
风车状的独栋厂房布局
风车状的庭院空间
在项目启动时,入驻企业及具体需求尚未完全明确。应对业主拿地即销售的节奏,设计团队提出“弹性规划+模块定制”的双轨设计策略,以“可生长的建筑”理念应对产业发展的不确定性,集约化布置芯筒,预留生产改造条件,使得厂房空间保持最大化灵活。同时与业主营销部门紧密配合,确保产品的市场适应性。
厂房组团内部空间
M0空间创新细节体现在三个方面。垂直复合生态系统:研发楼与生产车间采用“垂直叠合”布局,首层设置6米挑高重型实验区,上部为4.5米层高研发空间,实现“上楼研发、下楼测试”的无缝衔接;结构预留体系:研发楼预埋重型设备吊装孔及专用管井,支持大型部件测试;柔性空间模块:采用生产适应性更高的柱网,搭配可移动隔墙系统,实现从独立实验室到开放式研发区的快速转换。
前沿科创基地打造一体化产业生态,实现研发制造、智慧物流与产业链协同的全方位升级。研发制造实现 “零距离” 融合,形成 “概念 - 测试 - 改进” 全流程闭环,缩短技术迭代周期;智慧物流完成 “立体化” 突破,定制车间与机械停车楼经地下通道形成 “三角形物流核心”,搭配地面临轻、地下走重的多维交通体系,实现人货分离、轻重分流,提升转运与生产效率。
研发楼街景
同时基地为临工重机配套入驻企业提供精准空间支持,在产业配套区设数据服务中心,依托园区 5G 专网开发设备租赁智能管理系统,推动产业链生态化协同发展。
主楼幕墙细部
研发楼大堂
通过系统性的空间创新,将原本未被充分利用的屋面与露台转化为功能复合的 “景观平台”。项目在用地高度集约的条件下,不仅打造了供研发人员休憩交流的景观平台与屋顶运动休闲空间,更以此为载体,深度践行 “绿色办公研发” 核心理念,有效缓解了地面空间压力,并鼓励人员在办公间隙进行垂直流动与自然互动。
研发楼电梯厅
园区周边的运动空间
项目融入产业社区理念,研发楼中庭设技术交流空间,生产区周边配建健身步道与休闲花园,为跨企业创新交流搭建平台;打造智慧通勤体验,机械停车楼经地下车库进出,减少车行对地面的干扰,优化园区步行与交流氛围。产业配套实现集约化布局,双塔连接处打造灵活可变的集约配套大空间,可满足展销、会议、宴会等多元需求,成为园区交流联动的重要载体。
厂房沿街城市形象
港西路项目街景
研发制造一体化布局使入驻企业研发周期缩短,产研效率得到显著提升。园区企业间构成技术协同,形成从核心部件到智能服务的完整产业生态。项目以2.0容积率实现66亩用地14.6万平方米的建筑面积,成为济南M0用地开发的标杆案例,25个月的建设周期创下高新速度。济南前沿科创基地项目超越了传统产业园的空间范畴,成为催化创新的反应器。华东院通过方案设计,将政策资源、企业需求、技术趋势转化为空间语言的精密过程,最终实现建筑赋能产业、空间催化创新的深层价值。
客服
消息
收藏
下载
最近





















