查看完整案例

收藏

下载

翻译
Architects:Masakazu Tsujibayashi Architects
Area:105m²
Year:2025
Photographs:Yosuke Ohtake
Lead Architects:Masakazu Tsujibayashi
Category:Houses
Lead Team:Masakazu Tsujibayashi
Design Team:Masakazu Tsujibayashi, Marina Baba
Construction:Hideaki Kosaka
Engineering & Consulting > Structural:Toshimitsu Miyake
City:Osaka
Country:Japan
Text description provided by the architects. A residence shaped by human sensibility, negotiating its surroundings through ongoing dialogue across scales—from city and architecture to materials and daily movements.
The site sits within a fine-grained urban fabric where streets and paths intersect. Despite its proximity to the city center, it retains an old downtown atmosphere. Houses stand tight to the street edge, allowing everyday interactions to occur through these paths. Highland demand drives frequent rebuilding, creating a townscape where row houses, new homes, small shops, and historic structures coexist. Sensing this neighborhood's atmosphere, I vaguely felt the urge to create a house that would fit naturally.
"Blending in" is neither logical nor stable; it changes with time and person, and grows more complex in the city, where openness can invert into closure. I therefore aimed for a home that continually adjusts the conditions linking architecture, the city, and its inhabitants.
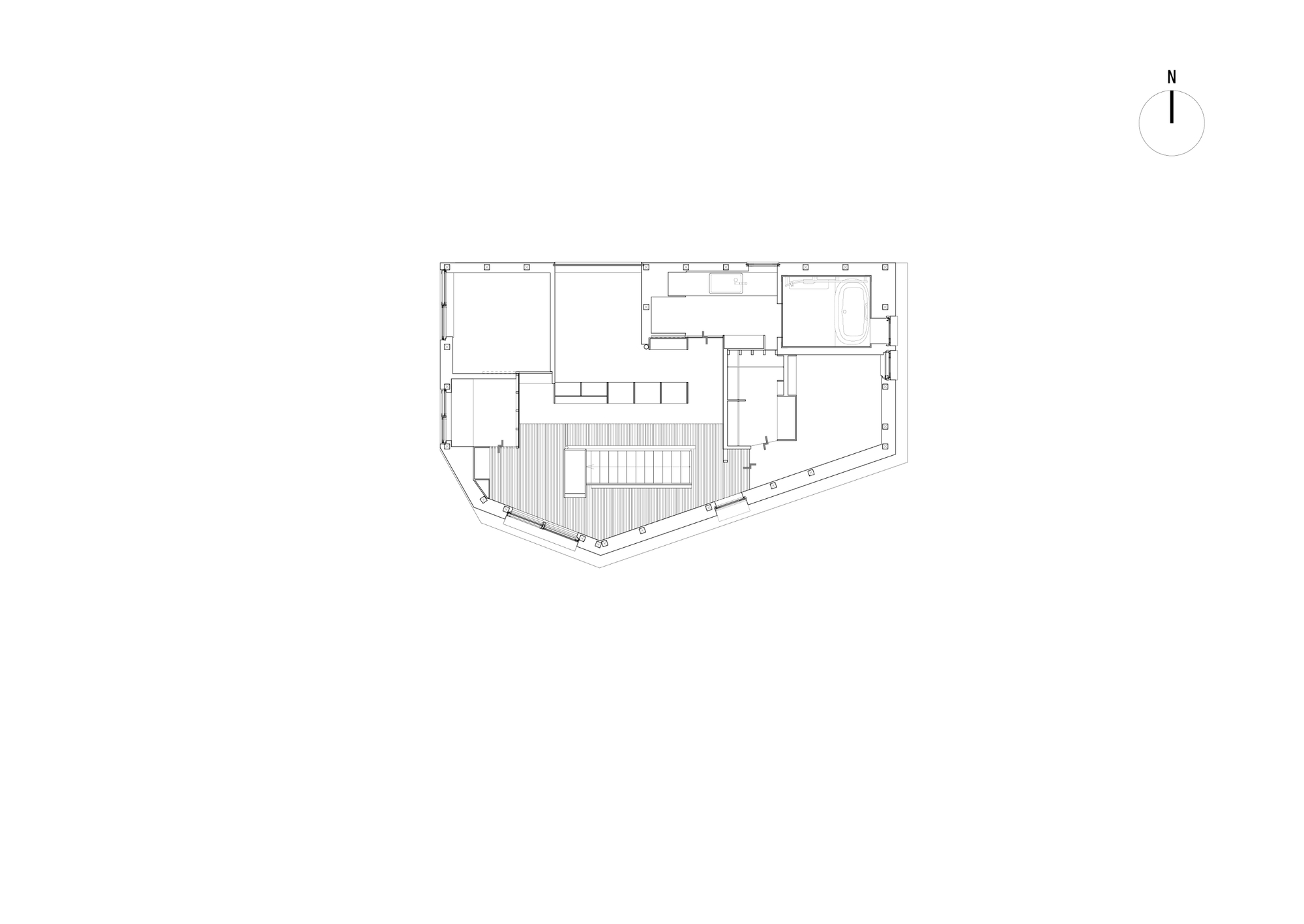
The project begins by shaping the building along an irregular site bordered by three roads, dividing the first and second floors to avoid imposing on the front street. The second-floor volume, clad in the same material as the roof, slopes gently to open views to the sky and forms an eave that aligns with the scale of the living spaces and the small shrine at the front. While responding to urban conditions and regulations, the design seeks continuity with surrounding street atmospheres, allowing daily life inside to intersect with life outside.
Building on this foundation, elements were placed intuitively, as if in ongoing dialogue with the environment and its inhabitants. This intuitive process allowed the design to evolve day by day; rather than restarting, each adjustment was made while keeping the history of earlier revisions visible. Over time, a spatial field emerged in which contrasting elements recur and negotiate equilibrium—windows and the overhanging walls that conceal them, openings and the surfaces that block them, robust concrete walls and inhabitable benches, transparent and opaque railings, apertures and mirrored extensions—interacting across interior and exterior to hold one another in balance.
This relational structure also appears in the interior. Though essentially continuous, the space unfolds through areas with different ceiling heights, floor levels, and scales, each maintaining its own relationship to the others. Attentive to the environment, the design embraces ambivalent sensations—wanting connection yet resisting it—and weaves them into the spatial composition. Carefully considered materials and details traverse these spaces, offering points of grounding while introducing a gentle tension.
The design keeps materials, details, and spatial composition from becoming dominant, allowing inherent qualities to emerge. Their interplay forms a lively environment in which components remain in disciplined dialogue.
Traditional materials—earthen walls and wood—were chosen for their climatic suitability and inherent depth. Skilled craftsmanship, from hand‑cut joinery to plastering, gives form to the complex spatial and material composition. A place becomes familiar only through engagement. Guided by daily intuition in choosing how to relate to its elements, and within a dialogue shaped by architecture, city, materials, and people, I hope to settle naturally into this place.
Project gallery
客服
消息
收藏
下载
最近




























