查看完整案例

收藏

下载
Alex Shoots Buildings
Červený Kostelec城市建筑师Lukáš Ehl评述:“布热季斯拉夫·卡夫卡图书馆在 Červený Kostelec 已承担了超过一个世纪的重要社会职能。当更新过时设备成为必要时,图书馆决定对其空间进行一次更为全面的翻修,目标是将其打造为一个充满活力的文化与创意中心。经过审慎遴选,图书馆邀请了 Papundekl 工作室的建筑师团队,他们以富有创造性的方式打通并整合了图书馆各个空间,使之成为一个紧凑而统一的整体。
PAPUNDEKL ARCHITECTS
2022年,Červený Kostelec镇政府委托对布热季斯拉夫·卡夫卡图书馆(Břetislav Kafka Library)进行重新设计,该馆原有家具已达到使用年限。在设计过程中逐渐发现,建筑本身也需要更为全面的干预,最终促成了一次包含建筑保温在内的整体翻修工程。
项目概览
© Alex Shoots Buildings
街景 © Alex Shoots Buildings
立面 © Alex Shoots Buildings
入口
Alex Shoots Buildings
图书馆所在建筑为一座历史悠久的旧旅馆,其既有平面布局对空间使用形成了限制。项目并未对建筑结构进行改动,而是直接回应既有建筑条件,在满足当代公共图书馆需求的前提下,塑造出契合原建筑特质的室内空间。整体设计重点在于提升空间的清晰度、自然采光与视觉连贯性,同时保留地方图书馆所特有的熟悉氛围。
金属门
© Alex Shoots Buildings
入口区域在设计中获得了特别关注,以便从街道一侧更清晰地传达建筑的公共属性,并改善通往庭院花园的可达性。主入口通过一条设有全新大尺度门扇的通道进入:面向街道的金属门作为视觉标识,而面向花园的半透明门扇则使自然光得以进入通道。在街道入口之后设置的一扇大尺寸窗户,使人们能够直接看到图书馆内部空间。通道内部经过清理,原有壁柱被重新显露,并在其间嵌入公告板,形成一处小型展览空间。
入口剖面 © PAPUNDEKL ARCHITECTS
大尺寸窗户 © Alex Shoots Buildings
走廊
© Alex Shoots Buildings
项目还包括一套完整的家具系统设计。中性的灰色嵌入式家具沿周边墙体布置,而空间中央则通过可移动的红色多功能家具单元进行界定,这些家具整合了储物、座椅与内置照明功能,并配有滚轮,可根据需要移动,为公共活动腾出空间。在底层的成人阅览区,家具呈规则排布;而在上层的儿童区域,书架则以更具趣味性的形式与不同高度呈现,以适应不同年龄段的使用需求。儿童空间还设置了一件由艺术家Linda Retterová与当地儿童在工作坊中共同完成的织物顶篷,在改善声学效果的同时,也让柔和的漫射光线得以穿透。
家具轴测图 © PAPUNDEKL ARCHITECTS
室内概览
© Alex Shoots Buildings
儿童空间
© Alex Shoots Buildings
鲜明的色彩系统将室内新增干预统一起来。粉色与红色被运用于入口通道、地面及家具之中,不仅强化了图书馆的亲和氛围,也呼应了城镇名称及其标志性的红色教堂。与之形成对比的是不锈钢元素的引入,为空间增添了一种克制的优雅感,同时强调了图书馆作为重要市政公共机构的角色。
红色家具 © Alex Shoots Buildings
不锈钢元素
© Alex Shoots Buildings
材料细部
© Alex Shoots Buildings
Červený Kostelec
城市建筑师
Lukáš Ehl
评述:“布热季斯拉夫·卡夫卡图书馆在Červený Kostelec已承担了超过一个世纪的重要社会职能。当更新过时设备成为必要时,图书馆决定对其空间进行一次更为全面的翻修,目标是将其打造为一个充满活力的文化与创意中心。经过审慎遴选,图书馆邀请了Papundekl工作室的建筑师团队,他们以富有创造性的方式打通并整合了图书馆各个空间,使之成为一个紧凑而统一的整体。空间及其家具的材料策略亦体现了这一理念。由此,图书馆成为一个能够回应使用者不断变化需求的‘有机体’,同时也体现了Červený Kostelec小镇开放包容的发展态度。”
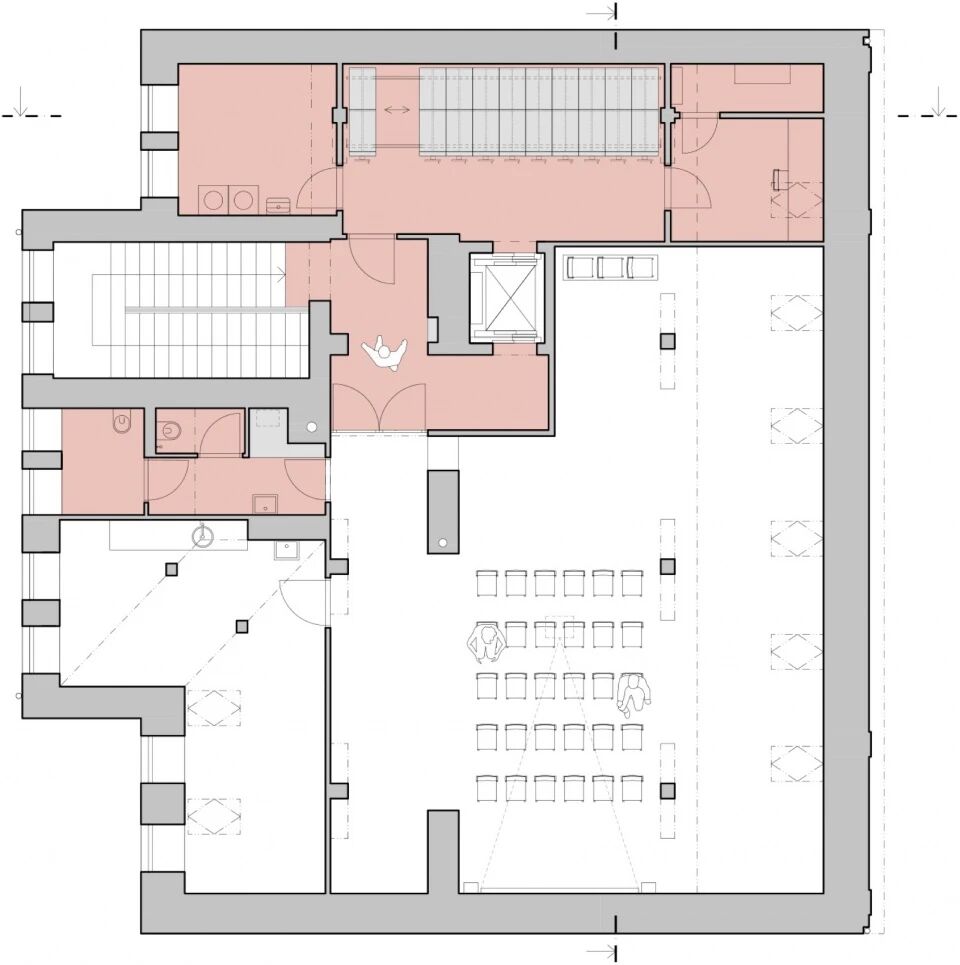
项目图纸
场地平面 © PAPUNDEKL ARCHITECTS
二层平面 © PAPUNDEKL ARCHITECTS
三层平面 © PAPUNDEKL ARCHITECTS
四层平面 © PAPUNDEKL ARCHITECTS
剖面 © PAPUNDEKL ARCHITECTS
Investor: Town of Červený Kostelec
Location: Sokolská 293, 549 41 Červený Kostelec, Czechia
Project Year: 2023
Completion Year: 2025
Built-up area: 285 m²
Usable Area: 649 m²
Enclosed Space: 3,650 m³
Investment Costs: CZK 35,000,000 (~EUR 1,400,000)
Architects: PAPUNDEKL ARCHITEKTI
Architects’ Instagram: @papundeklarchitekti
Design Team: Jan Bárta, Šimon Bierhanzl, Marek Fischer
Collaboration: Elif Avci, Lucia Čierna, Pavla Kejdanová, Kateřina Kollárová
Graphic Design: David Babka, Ilja Bažanov
Artistic Collaboration (Textile Ceiling): Linda Retterová (ROE) children from ZUŠ Červený Kostelec
Photographer: Alex Shoots Buildings
Photographer’s Instagram: @alex.shoots.buildings
客服
消息
收藏
下载
最近





































