查看完整案例

收藏

下载
- - 放空自己 感知生活
本 空 B K O N S
本项目:德清 绿城凤栖云庐 精装修改造项目
户型面积:上叠220㎡
居住者:这是一家四口,夫妻俩特别极简时尚风,就想家里能保持那种不会过时的时尚感和品质感。
实景视频 —
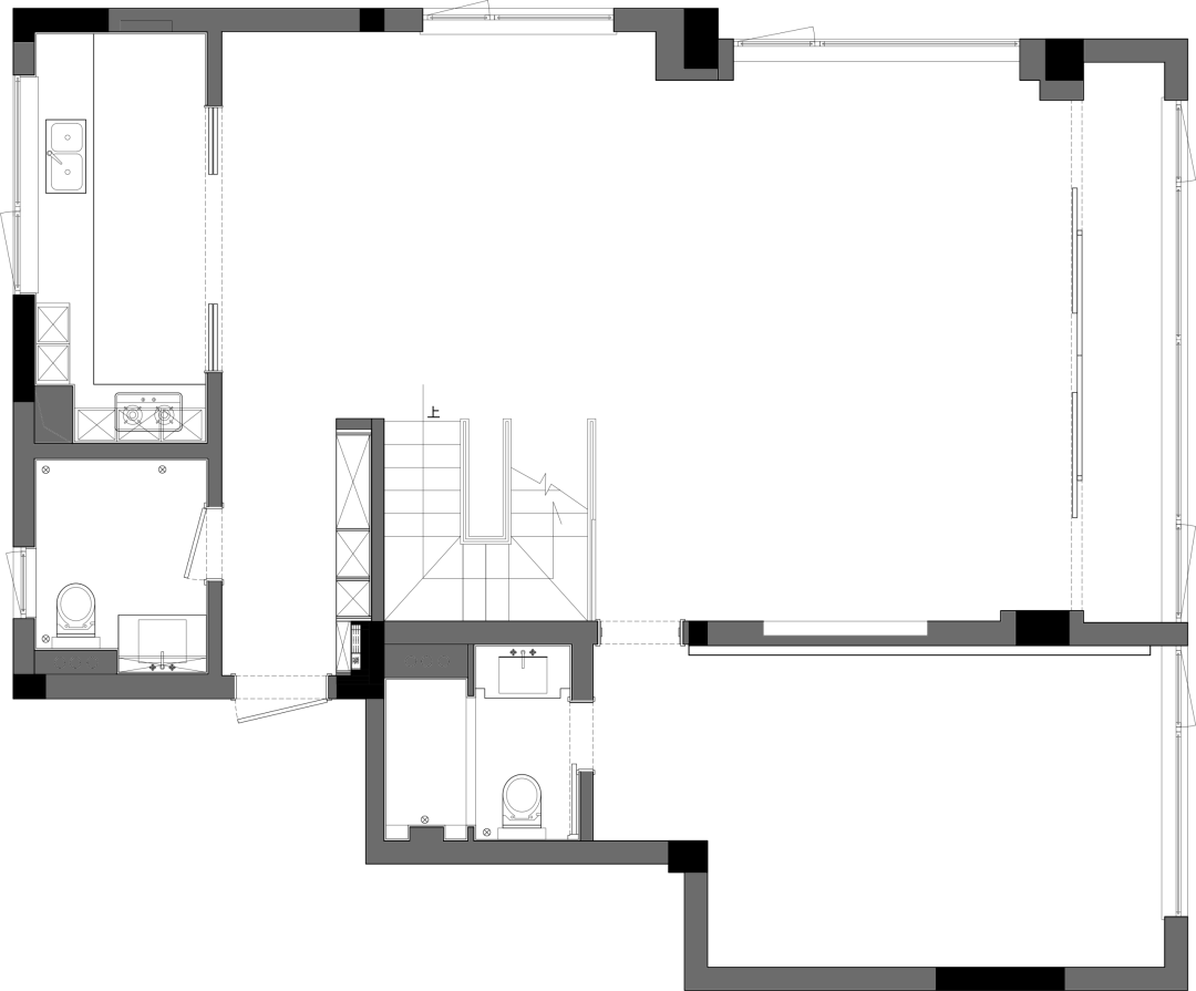
原始户型图 —
设计后平面图 —
楼梯 —
楼梯,不仅仅是连接上下层的通道,更是复式空间跳动的脉搏。我们不愿它只是冰冷的构件,而是将其视为伫立于家中的艺术雕塑。让材质与地面浑然一体,仿若从大地自然生长而出,带着生命的温度向云端延伸。拾级而上,每一步攀登,都是一场通往幸福生活的仪式。
客厅 —
真正的客厅,应该懂得包容家人的每一刻。
双面向沙发的设计,让空间不再单一。
向光而坐,许自己一段独处时光;转身之间,便能与爱人孩子亲密对话。
我们不需要刻意“去客厅化”,只想留住那份流动的亲密感。
因为一个让人身心健康的家,从来不是形式的堆砌,而是那个让你愿意停下来、不想走的地方。
餐厅—
餐厅,是一家人情感交汇的磁场。中国人的深情,往往都藏在饭桌之上。大人们推杯换盏间的谈笑风生,是孩子耳濡目染最好的教养课堂。我们偏爱圆桌,不仅因为它契合中餐热气腾腾的分享方式,更因为它消融了棱角,让家人彼此靠得更近。一桌烟火,围坐闲谈,这才是家最动人的模样。
书房 —
在这里,时光可以慢下来,也可以生动起来。
书房不再只是孤独的角落,而是精神生长的土壤。
低饱和度的配色,给予双眼最温柔的抚慰;多向书桌的布局,让空间拥有了“对话”的可能。
一人独处时,是与自我的深度交谈;亲子共处时,是两代人心灵的亲密触碰。动静相宜,才是书房最动人的韵律。
卧室—
依墙而眠,给孩子最坚实的臂膀。
黄绿相间,予空间最灵动的呼吸。
安稳的布局消融了黑夜的恐惧,活力的色彩唤醒了成长的朝气。
这便是属于少年的天地——心安处,梦飞扬。
卫生间 —
一个家的精致程度,往往藏在最不起眼的客卫里。它是主人的“第二张名片”。打破常规的布局,独立柱盆勾勒出利落的线条,水滴式龙头赋予水流生命的律动。在这个有限的私密空间里,我们用极致的细节回应生活。让每一次短暂的驻足,都成为访客心中关于这个家,最精致的记忆注脚。原有空间图 —
拍摄花絮图 —
About
Design Company丨设计机构:本空设计工作室
Main case designer丨主案设计:思蒙
Executive designer丨撰稿:本空君
本空设计事务所 本 空 B K O N S
客服
消息
收藏
下载
最近




































