查看完整案例

收藏

下载
守望者 The Catcher
夜幕下的东立面 East Elevation at Night
总平面图 Site Plan
椿鲤民宿项目位于上海市郊新场古镇附近。初次到达基地,周边大片连绵的水稻田令人心旷神怡。稻田的辽阔与自然气息便成为设计的灵感来源,奠定了项目与自然共生的基调。
The Chunli Guesthouse project is located near the ancient town of Xinchang in the suburbs of Shanghai. Upon first arriving at the site, the vast expanse of rice fields was refreshing and delightful. The boundless scenery and natural ambiance of the fields became the inspiration for the design, setting the tone for the project’s symbiotic relationship with nature.
有别于品牌民宿的诸多既定限制,椿鲤民宿的业主更希望将自由度给到设计师。初次沟通时,业主仅口述了他的基本诉求:在满足房间数量和公共区域功能的同时,充分利用户外及屋顶露台的空间。
Unlike the many predetermined constraints of branded guesthouses, the owner of Chunli Guesthouse preferred to grant greater freedom to the designers. During the initial discussion, the owner only verbally outlined basic requirements: meeting the number of rooms and functional needs of public areas while making full use of outdoor and rooftop terrace spaces.
建筑的南侧和东侧视野非常开阔 Open Views to the South and East
原建筑为两栋独立的农民自建房,其形态与内部空间均无法满足现代民宿的功能需求。我们希望在保留原有结构的基础上,尽量避免大刀阔斧的改动,而是就势而为去打造一个包含11间客房及宴会厅、棋牌室等复合功能的民宿。同时,正是这样一个自然而然、“不强求”的稻田民宿,相应的方案也需具备充分的灵活性,以应对旧改项目中常见的报建及施工不确定因素,力求在现实条件与理想愿景之间取得平衡。
The original structures consisted of two independent self-built rural houses, whose forms and interior spaces could not meet the functional demands of a modern guesthouse. While preserving the original structures, we aimed to avoid extensive modifications, instead adapting to the existing conditions to create a guesthouse with 11 guest rooms and composite functions such as a banquet hall and mahjong room. Moreover, as a natural, “unforced” rice field guesthouse, the corresponding design needed to be flexible enough to accommodate the uncertainties often encountered in renovation projects, such as approval processes and construction challenges, striving to balance practical conditions with ideal aspirations.
稻田中的民宿 The Guesthouse Amidst Rice Fields
夜晚的民宿与内庭院 Guesthouse and Inner Courtyard at Night
守望者,与自然串联 Catcher, Connected with Nature
设计以“守望”为精神内核,强调建筑与周边稻田景观的关系。在成本可控的前提下,设计尽可能多地保留了原建筑结构,包括入口处的木结构双坡屋顶平房。同时,通过串联、对景以及室内外空间的交错,使建筑成为自然环境中的一部分,让这栋建筑像稻田中的“守望者”一样,独具一格却又让人安心。
The design takes “Catching” as its spiritual core, emphasizing the relationship between the architecture and the surrounding rice field landscape. Under the premise of controllable costs, the design retained as much of the original structure as possible, including the gable-roofed bungalow with a wooden structure at the entrance. At the same time, through connections, framed views, and the interplay of indoor and outdoor spaces, the building becomes an integral part of the natural environment. Like a “Catcher in the field,” it stands unique yet reassuring.
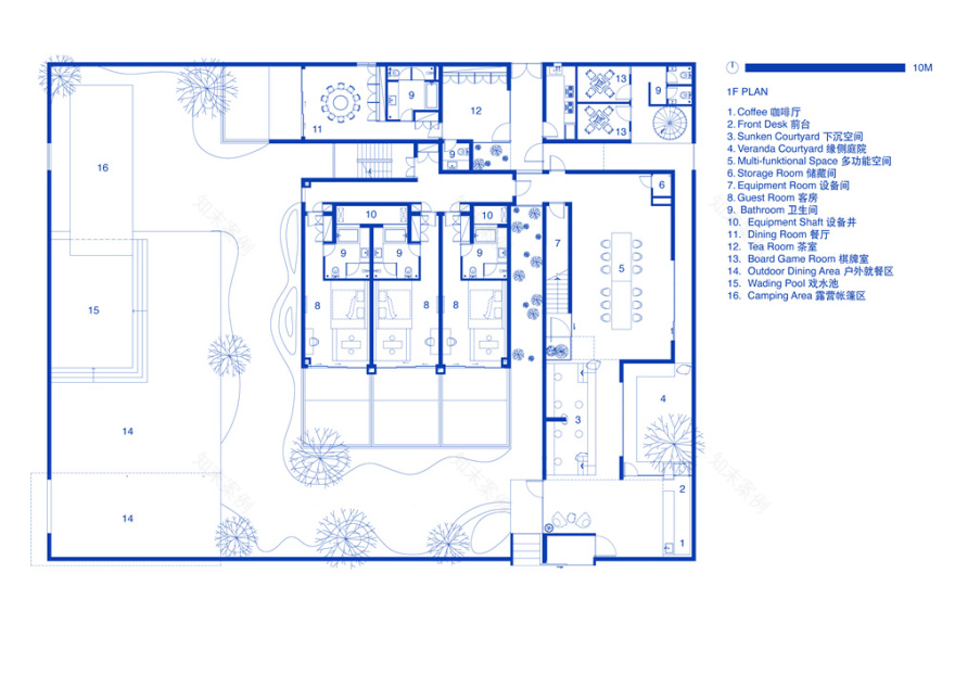
设计以动线作为组织各空间的核心,让游走于其中本身变成一件有趣的事。首先,利用围墙将两栋建筑及院落整合为统一的场域;继而,在长方形场地的三个角落植入了三个建筑体量作为“连接件”,分别承载大堂、凉亭、宴会厅等公共功能。这一策略不仅梳理了公共与私密区域的逻辑关系,也有效的串联起了室内与室外的空间。
The design uses circulation as the core organizing principle for the spaces, making movement through the building an engaging experience in itself. First, a perimeter wall integrates the two buildings and courtyards into a unified site. Then, three architectural volumes are inserted into three corners of the rectangular site as “connectors,” housing public functions such as the lobby, pavilion, and banquet hall. This strategy not only clarifies the logical relationship between public and private areas but also effectively links indoor and outdoor spaces.
同时,顺应原有地势,在大堂中设置了下沉卡座区,既与小院形成了独特的视线对景,也为室内引入了自然光与庭院景观,从而丰富了半户外空间的层次。
Additionally, following the original terrain, a sunken seating area was created in the lobby, forming a unique visual dialogue with the small courtyard while introducing natural light and garden views into the interior, thereby enriching the layers of the semi-outdoor space.
建筑与道路的关系 Building’s Relation to the Road
天窗将自然光引入室内沐浴空间 Skylight Flooding the Shower Area with Natural Light
内院中的木栈道供住客游走与休憩 Wooden Deck for Strolling and Relaxation
东侧立面 East Elevation
新与旧,保留与介入的平衡
Old and New, Balancing Preservation and Intervention
在改造中,设计师审慎处理新旧关系。例如入口处的双坡老屋,尽管在风格上与其他新建体量略有差异,但最终未做过多的改动,仅出于安全考虑将原有屋面更换为铝镁锰板。
In the renovation, the designers carefully handled the relationship between old and new. For example, the old gable-roofed house at the entrance, though slightly different in style from the other new volumes, was largely left unchanged, with only the original roof replaced with aluminum-magnesium-manganese panels for safety reasons.
新增部分亦秉持“每一处介入皆有缘由”的原则。如客房泡池区窗外的造景,它并非仅为营造意境的装饰,更是为了巧妙包裹沿墙布置且不甚美观的管线,体现了设计对真实性与整体性的追求。
New interventions also adhered to the principle that “every intervention has a reason.” For instance, the landscaped view outside the window of the guest room soaking area was not merely decorative but also served to cleverly conceal unsightly pipes running along the wall, reflecting the design’s pursuit of authenticity and integrity.
户外动线亦可到达各个区域 Pathways Connecting All Areas
与大多数旧建筑改造项目一样,椿鲤民宿也面临严控成本与适配当地施工水平的挑战。通过采用固定家具系统,整合解决了客房内的多种功能需求,同时有效降低了总体成本。同时,在设计过程中,充分考虑了在地施工工艺水平,尽量简化施工节点,选用易于实施且耐久的材料与构造方式,确保设计理念的高完成度落地。
Like most old building renovation projects, Chunli Guesthouse faced challenges such as tight budgets and the need to adapt to local construction standards. By adopting a fixed furniture system, multiple functional needs in the guest rooms were integrated and addressed, effectively reducing overall costs. At the same time, the design process fully considered local construction techniques, simplifying construction details as much as possible and selecting materials and methods that are easy to implement and durable, ensuring a high level of completion for the design concept.
与庭院结合的户外动线 Courtyard-integrated circulation path
一层平面图 1F Plan
利用原本两栋建筑间的间隙做了半户外庭院 Semi-Outdoor Courtyard in the Interstitial Space
一层客房均设置了独立院落 Private Courtyards (Ground-Floor Rooms)
每间客房的开窗都结合了户外景观 Windows Framing the Views
座位高度与室内庭院形成对视关系 Seating height engages courtyard view
东立面图 E. ELEV.
北立面图 N. ELEV.
每个房间的泡池均有开窗取景 Soaking Tub by the Window in Every Room
结语
“稻田守望者”是间筑设计对自然、记忆与场所精神的一次回应。我们期望这栋建筑在满足功能需求之外,更能成为连接人与土地、过去与未来的媒介,守护水土与时光。
“Catcher in the Field” is TEAM_BLDG’s response to nature, memory, and the spirit of place. We hope that, beyond meeting functional needs, this building can become a medium connecting people with the land, the past with the future, watching over both the soil and time itself.
项目信息:
项目名称:守望者——上海新场古镇民宿
功能:民宿、咖啡厅
设计时间:2023.05– 2024.04
施工时间:2024.02 – 2024.08
地点:上海市浦东区
建筑面积:897平方米
景观面积:773平方米
团队:肖磊,邓兆静、邓彩仪、滋埜悠司、沈瑞杰
类型:建筑、室内及景观
状态:建成
摄影师:胡斯远
Project Name:The Catcher
Function: Guesthouse,Café
Design Period: 2023.05– 2024.04
Construction Period: 2024.02 – 2024.08
Location: Pudong, Shanghai,China
Building Area: 897SQM
Landscape Area: 773SQM
Architects: XiaoLei, DengZhaojing, DengCaiyi, ShigenoYuji, ShenRuijie
Type: Architecture, Interior and Landscape
Status: Completed
Photographs: Hu Siyuan
客服
消息
收藏
下载
最近





















