查看完整案例

收藏

下载
11h45 – Florent Michel
建筑整体结构完全由木材构成,包括主体结构、木框架墙体、窗框以及室内饰面。主要梁跨越建筑的整个宽度,使空间在无中间支撑结构的情况下获得高度的灵活性,便于未来功能调整与多样化使用,宛如一座木构皇冠大厅。
AL PEPE architects
施拉赫贝尔海姆新市政厅坐落于一座阿尔萨斯小村庄之中,其设计以水平延展与通透性为核心,力图融入这片壮丽的林地环境。木结构外部规则而清晰的框架强化了建筑的公共属性,同时确保了一种超越流行的、恒久的美学表达。松焦油形成的深色、丝绒般的防护涂层,以及比例精致而优雅的木柱尺度,既呼应了村庄传统的木构半木结构,也回应了场地中的树木意象。耐候钢拉伸网状立面赋予建筑立面近似织物般的质感,其色调则呼应了当地历史村落中大量存在的石材(孚日砂岩)的自然色泽。整体建筑既当代又扎根于地域,既严谨又温和,仿佛自始便存在于此。
建筑与周边环境
© 11h45 – Florent Michel
建筑鸟瞰
© 11h45 – Florent Michel
市政厅沿街视角 © 11h45 – Florent Michel
建筑整体外观 © 11h45 – Florent Michel
入口前的小广场 © 11h45 – Florent Michel
建筑中央,一处拔地而起的体量为接待大厅提供了宽敞而充盈的室内空间,这里是新市政厅的核心。同时,这一体量更承担着面向整个村庄的标志性角色,象征着未来市政厅应当构建的全新公共中心性。体量顶部设置了一枚铜制风向标,融合了村庄的两枚纹章,在延续传统建筑语言的同时,也重新唤起人们对符号与象征所蕴含的、近乎童真的愉悦与惊奇。这一中央体量同时在建筑的自然过度通风中起着关键作用,为夏季热舒适性作出积极贡献。建筑采用生物基保温材料,具备显著的热相位延迟性能,并与混凝土楼板的热惰性相结合,使建筑在四季中都能保持舒适,仅需极少的供暖能耗(达到被动房标准),且无需任何主动制冷系统。室内隔墙采用夯土砖(adobe)砌筑,部分裸露,部分覆以白色土质饰面。这些砖块由距施工现场约20公里的兰特(Lanter)手工砖厂制作,使用黄土与稻草砂浆砌筑,工艺与阿尔萨斯传统的泥草填充建造技法(torchis)一脉相承。
爆炸图
© AL PEPE architects
建筑主立面 © 11h45 – Florent Michel
建筑侧立面
© 11h45 – Florent Michel
主立面近景 © 11h45 – Florent Michel
侧立面近景 © 11h45 – Florent Michel
檐下空间 © 11h45 – Florent Michel
屋顶与风向标
© 11h45 – Florent Michel
立面细节
© 11h45 – Florent Michel
建筑整体结构完全由木材构成,包括主体结构、木框架墙体、窗框以及室内饰面。主要梁跨越建筑的整个宽度,使空间在无中间支撑结构的情况下获得高度的灵活性,便于未来功能调整与多样化使用,宛如一座木构皇冠大厅。本地木构架在整个建筑中保持外露状态。在议会与婚礼大厅内,结构通过优雅的形变塑造出一座木质拱顶,为这一象征性空间赋予庄重与充盈的仪式感。弧形梁由实木直接切割成型,延续了祖传的建造技艺,无需胶合、弯折或其他复杂工艺。数字化技术的介入,使梁的截面形式得以多样化,从而在双向上形成变化的结构惯性拱顶。
木结构弯梁分析图 © AL PEPE architectes
接待大厅空间 © 11h45 – Florent Michel
大厅顶部 © 11h45 – Florent Michel
室内空间概览
© 11h45 – Florent Michel
办公空间
© 11h45 – Florent Michel
办公空间内部 © 11h45 – Florent Michel
茶水间内部 © 11h45 – Florent Michel
生土砖内墙 © 11h45 – Florent Michel
木结构室内细节
© 11h45 – Florent Michel
议会与婚礼大厅通过两扇大型推拉门向室外敞开。这种室内外的连续性赋予空间多样化的使用方式,并将建筑与这一全新的公共交流与聚会场所直接连接,使其真正服务于所有人的日常生活。
议事与婚礼大厅
© 11h45 – Florent Michel
议事与婚礼大厅看向室外 © 11h45 – Florent Michel
建筑立面夜景 © 11h45 – Florent Michel
夜晚立面近景
© 11h45 – Florent Michel
项目图纸
总平面图 © AL PEPE architects
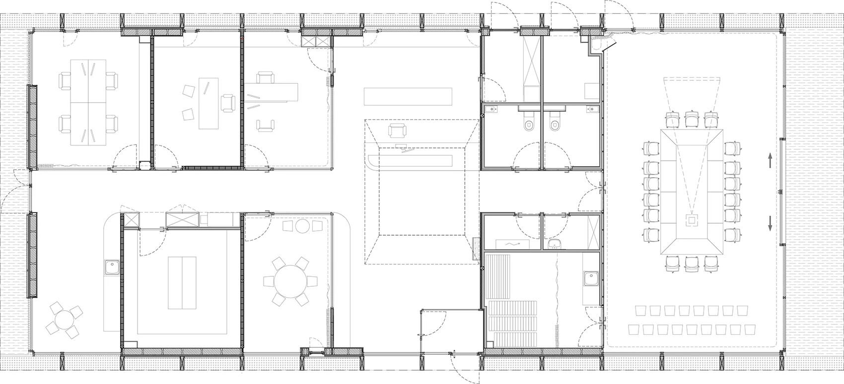
平面图 © AL PEPE architects
剖面图
© AL PEPE architects
Client : Commune of Scharrachbergheim-Irmstett
Architects : AL PEPE architectes – Aude LECINSKI - Pascal PHILBERT
Project team : CAPEM (Structure) / SOLARES BAUEN (Fluides / Thermique) / C2BI (Economiste) / Françoise MAIRE (Paysagiste) / SCENE ACOUSTIQUE (Acousticien)
Place : Scharrachbergheim – Irmstett
Surface : 300 m²
Cost : 900 000€ HT
Timeline : Competition september 2021 – Completion november 2024
Thermical performance : RE2020 – Passivhaus
Materials : Wood / Raw earth / Concrete
客服
消息
收藏
下载
最近










































