查看完整案例

收藏

下载

翻译
Architects:NextOffice–Alireza Taghaboni
Area:910m²
Year:2021
Photographs:Parham Taghioff
Lead Architects:Alireza Taghaboni
Category:Houses
Lead Team:Alireza Taghaboni
Design Team:Majid Jahangiri, Farideh Agha Mohammadi, Mehran Motamedi, Meysam Feizi, Atefe Lotfollahi, Masoud Soufiani, Mohammad Reza Gholami, Elaheh Babaei, Asal Karami, Saba Salehi, Ehsan Ahani
Engineering & Consulting > Electrical:Energy Arta Eurasia
Engineering & Consulting > Structural:Afshin Masoudi
Project Management:Faraz Beygi
City:Tehran
Country:Iran
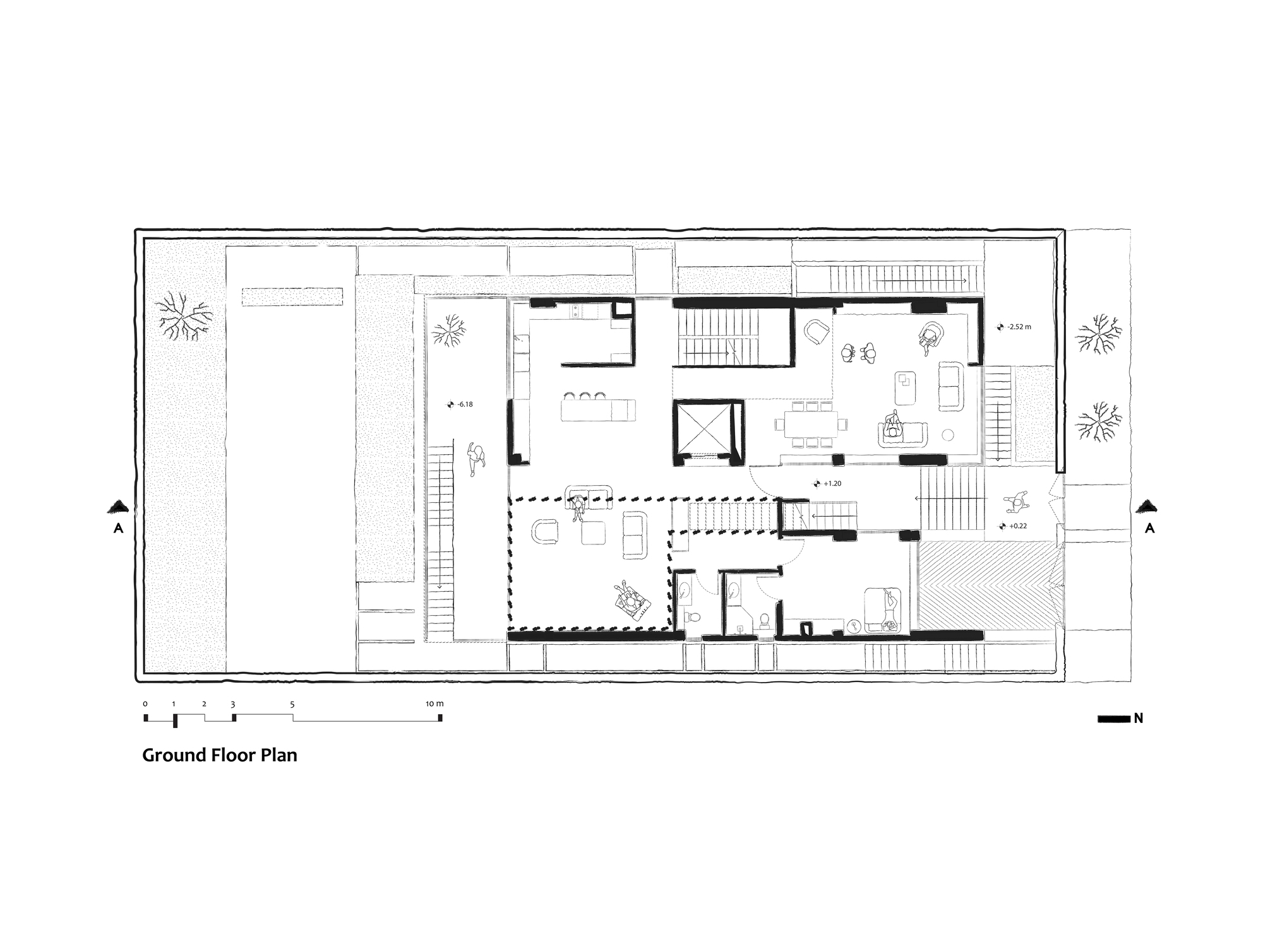
Text description provided by the architects. At first glance, the residential villa presents itself in continuity with the familiar typology of pitched-roof villas, aligning its overall silhouette with a well-known and recognizable architectural language. This deliberate choice allows the building to remain visually and conceptually connected to its surrounding context and to the conventional expectations associated with this type of dwelling. However, the project does not settle for mere repetition of an established model; instead, it seeks to extract new spatial possibilities from within this familiar framework. The approach is not based on rejecting the typology, but rather on reinterpreting and transforming it to generate a renewed architectural reading.
The key element of this reinterpretation is a fissure carved into the building mass, establishing an active relationship between the two sides of the site. This fissure functions not simply as a formal incision but as a spatial mediator that organizes movement, visual connections, and the lived experience of the house. Through this opening, a variety of spatial sequences are formed, gradually guiding the user from exterior to interior and from more public zones toward increasingly private ones. At the same time, the fissure enables the penetration of natural light and ventilation, while reinforcing a dynamic connection between the building and the natural ground on which it sits.
As a result, the project maintains the familiar overall figure of a pitched-roof villa, yet this figure is subjected to multiple acts of subtraction and carving. These intentional removals generate a range of negative spaces across different exterior zones, manifesting as semi-enclosed courtyards, terraces, and intermediate spaces for pause and transition. The same logic extends to the organization of the interior, where spaces are defined not solely by solid partitions, but through their relationship to these voids and openings. Consequently, the villa becomes a sequence of interconnected yet diverse spaces, offering a layered and fluid experience of inhabitation.
Project gallery
客服
消息
收藏
下载
最近


















