查看完整案例

收藏

下载

翻译
Architects:one-aftr
Area:12m²
Year:2024
Category:Installations & Structures,Pavilion
Design Team:Minjong Kim, Minju Kim, Seongeun Kim, Jihong Park, Jiyun Song, Wooin Yum, Seunghyun Wang, Joohyun Lee, Hojoon Yi, Gaeul Jeon, Minsik Cho, Huiyeong Choi, Ryu Ahn
Structural Engineer:Prof. Changsoon Rha
City:Seoul
Country:South Korea
Text description provided by the architects. Today, people are constantly exposed to strong stimuli in their daily lives, which has led our brains to become 'popcorn brains', seeking stronger and more immediate experiences. Pavilion TEUM explores how changes in the living room space within residential typology can address this dulling of our sense of reality.
In the past, 'Daecheong' (traditional Korean living room) was a space where one could feel the outside environment, such as the changing seasons and weather. However, with advancements in technology, insulation and airtightness have strengthened, leading to a clearer disconnection between the interior and exterior.
In response to this, the project aims to create a 'gap' (Teum) within the enclosed living space to reintroduce the outside environment. This reimagined living room is a space with the potential to expand, seeking to awaken new senses by incorporating various external stimuli, offering a fresh perspective and experience for those who have become reliant on high stimuli from the internal, digital environment.
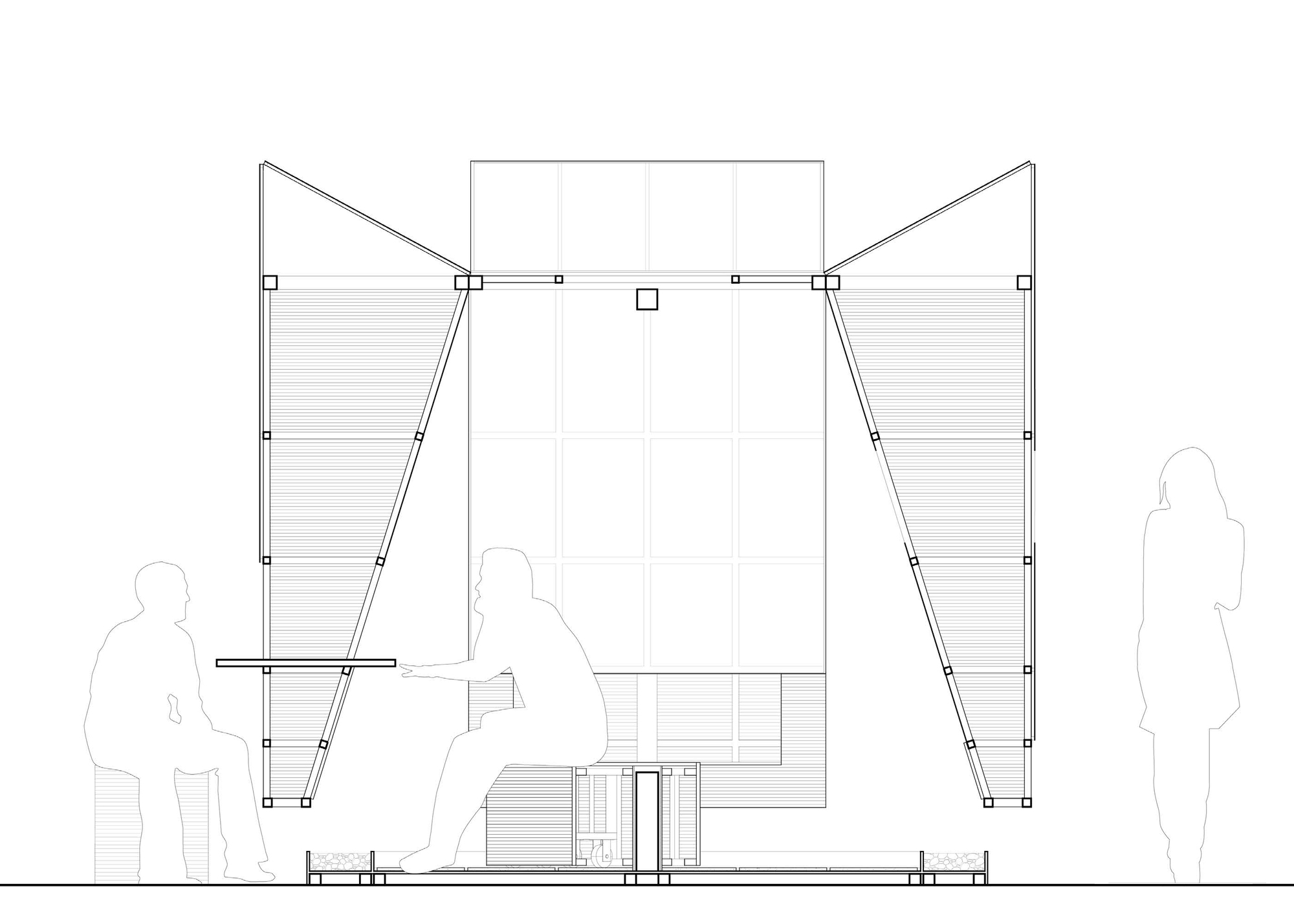
The gap serves as a key element in bringing elements of nature inside. The breeze that seeps through the ceiling and walls flows through the room, enhancing the warm atmosphere, while the changing flow of light over time adds visual variety to the living room. External sounds filtered through the gaps make the space feel more vibrant, and the cork floor's natural texture offers a warm and soft sensation when walking barefoot. Additionally, the crushed stone and moss revealed through the gaps in the walls and floor create a flow that connects nature to the interior. The natural scent entering through the gaps infuses the space with a non-artificial, organic sensation. This multisensory experience transforms the living room from a mere space to stay in into an active place to feel and experience.
Upon entering the pavilion, a visitor encounters a window on the south wall that captures the light into the space. The north wall offers a space where visitors can sit at the table and communicate with people outside. The east wall provides a space to enjoy books while seated on the floor, and the west wall creates a space where visitors can step into the wall and experience the gap between the ceiling and the wall. The long chair in the center can rotate 360 degrees, allowing users to freely turn and experience various sensory stimuli through the gaps, rethinking and redefining the conventional living room environment.
Project gallery
客服
消息
收藏
下载
最近
























