查看完整案例

收藏

下载

翻译
Architects:DualSpace Studio
Area:19000ft²
Year:2024
Photographs:TWJPTO
Lead Architects:YongWei Lew, Eliz Wong
Category:Offices Interiors
City:Kuala Lumpur
Country:Malaysia
Text description provided by the architects. The entity, with each zone expressing its function while remaining visually connected through recurring wood details and rhythmic patterns. One of the primary challenges was balancing flexibility with clarity of spatial identity. The space needed to accommodate a wide range of functions — from focused work and meetings to large-scale gatherings and events — without becoming visually fragmented or programmatically confusing.
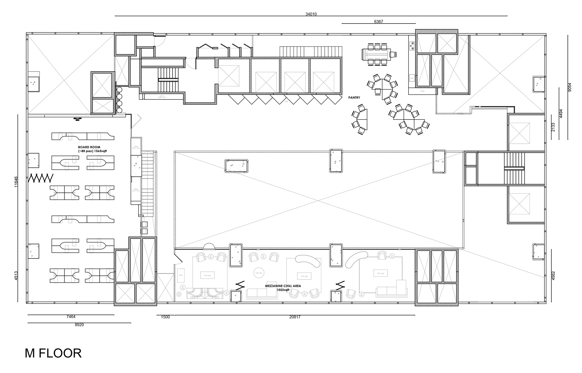
Structural constraints across two floors and mezzanine levels also required careful coordination to maintain spatial continuity. Achieving adaptability while preserving a strong architectural narrative demanded an integrated approach to furniture design, circulation planning, and detailing. Custom elements were developed to enable transformation without compromising the integrity of the design language.
Construction emphasized precision craftsmanship and layered material expression. The project integrates printed tiles, stained timber, stainless steel, glass, resin grid ceilings, and custom-designed lighting and furniture systems. Materials were selected not only for durability but for their ability to articulate different atmospheres across programs. Techniques included custom fabrication of flexible furniture, integration of sculptural hardware such as carpet-wrapped handles and bespoke knobs, and the use of modular components that support reconfiguration. 3D-printed elements were introduced to achieve complex forms and bespoke detailing while maintaining production efficiency.
Spatially, the office is organized as a vertically layered environment designed to support both community and individuality. The configuration distributes key programs — dual pantries, library, training hall, photo studio, meditation room, meeting suites, and open work zones — across interconnected levels to encourage movement and interaction. Circulation operates as a connective spine, while transitional zones such as lounges and shared hubs function as social catalysts. Repetition of material motifs and wood detailing establishes visual continuity across diverse functions, ensuring coherence despite programmatic variety. This approach enables the workplace to shift seamlessly between everyday operations and event-based use.
Ultimately, the project positions the workplace as an adaptive environment shaped by experience rather than static function — a spatial system designed to unlock interaction, transformation, and collective identity.
Project gallery
客服
消息
收藏
下载
最近


































