查看完整案例

收藏

下载
在有情绪的空间容器里,品味着光线与自然,以设计唤醒感官,体验结构与艺术交融的意趣。
大理石茶几承托起闲趣与日常,柔软沙发是归心的落点,在这里,电视不再是视觉的中心,而是生活剧场的背景。
浅灰与暖棕的色调交织,如午后阳光般温柔包裹,让空间成为情绪的缓冲地带。
空间以流畅的动线,将中岛、餐桌与天光串联成日常的叙事。大理石的冷冽与木色的温润对话,弧形门洞柔化了线条的锐利,让功能与美学在此共生。
在自然的晕染下,用餐的仪式感愈发浓厚,让家人相聚的时光温馨四溢。
当光线在大理石地面上流淌,空间的叙事便从这一方玄关悄然展开。
穹顶如一轮温柔的月,将光线与思绪轻轻收拢,圆弧形的天花线条,与地面的圆形地毯遥相呼应,让整个空间成为一个被温柔包裹的场域。
身心与设计同频共振,让居者于此安放身心,拥抱生活的温柔回响。
晨花清浅,午后影长,轻风穿庭而过,拂过明净的书房墙面,思绪悄然生长。翻阅、静听,我们静坐不语,时光已然温柔。
穹顶之上,一方天井,是天空写给人间的情书。阳光与云影在此低语缠绵,归家的人,不妨在长椅上稍作停留,静享这份温柔。
黑色楼梯,慵懒、随性,又自带神秘。材质的厚重与线条的轻盈共生,每一次转身,都像是从日常走向诗意的过渡。
蓝与白的交织,如晴空与云朵的私语,为童年铺就一片澄澈天地,柔软床品包裹着每一夜的安心梦境。
在这里,收纳与秩序悄然融入设计,让成长的每一步都自在从容。
少年的书桌上没有虚度的光阴,悠悠拨动梦想启航的琴弦,伴他在人生的漫漫征途上,绽放出属于自己的璀璨光芒。
斜顶之下,光的轨迹被温柔勾勒,木色与浅白交织出松弛的底色。软包床头如云朵般包裹身心,让每一次归卧都成为与自我的温柔相拥。
不规则的镜边如自然的笔触,将光线温柔包裹,一圈暖光漫过石面,把清晨的洗漱,都酿成一场与自我的温柔对话。
无需刻意营造,办公与休憩的边界在此自然消融。指尖划过书页,目光远眺城景,在光影流转的静谧里,将城市天际线,框成流动的风景。
归家的仪式,从这一方天地开始,圆形穹顶如一轮皓月,将柔和光晕倾泻而下,包裹着每一次归来与启程。
△-2F平面图
△-1F平面图
△1F平面图
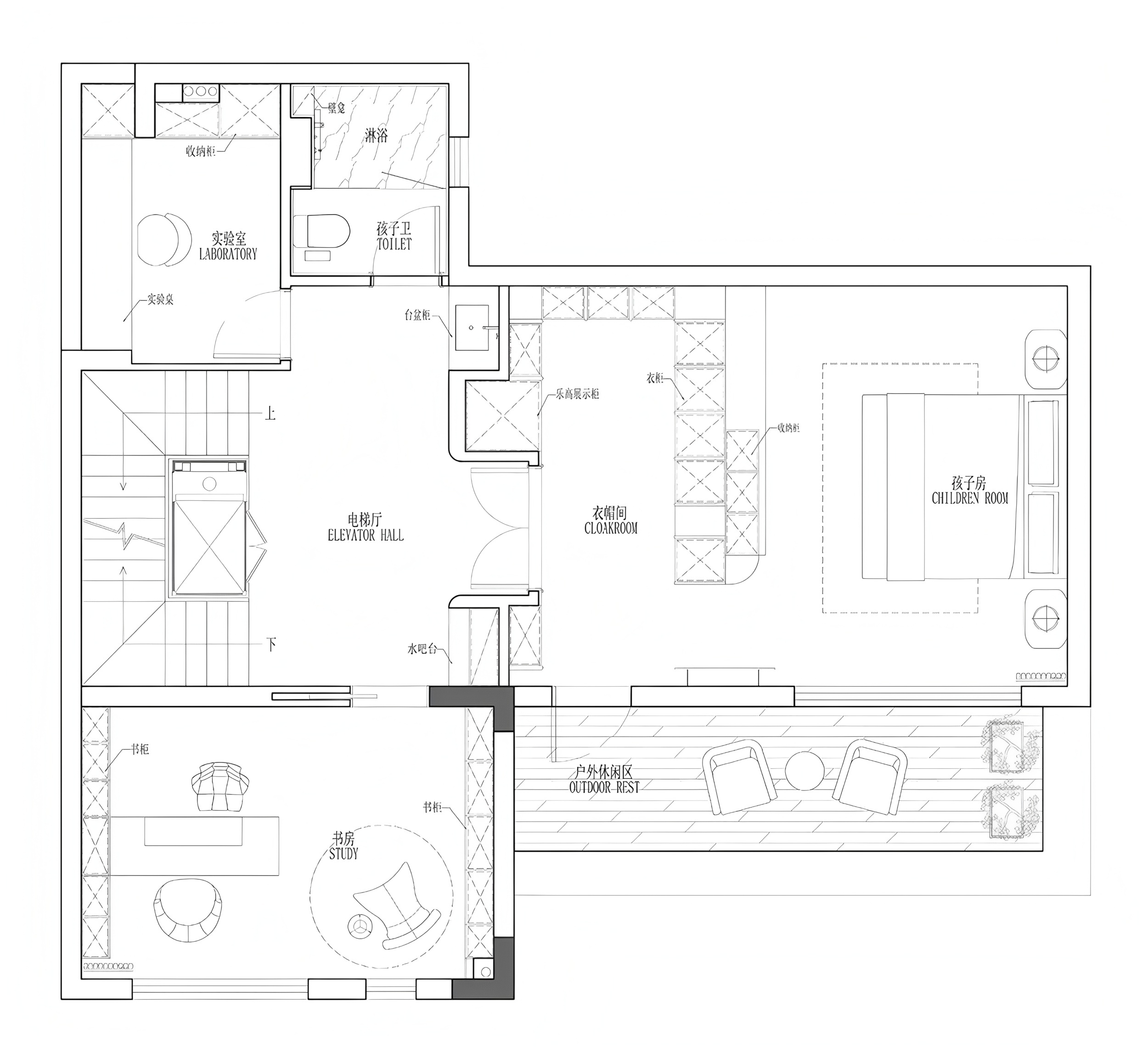
△2F平面图
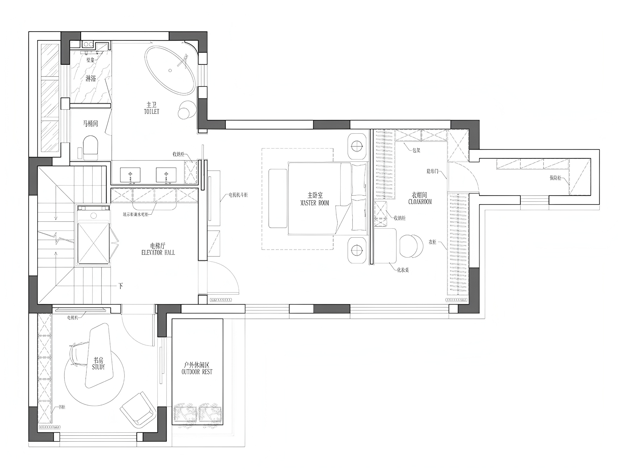
△3F平面图
项目地点:江苏 南京
室内面积:536㎡
项目设计:观享际SKH室内设计
项目施工:观享际SKH室内设计
项目软装:观享际SKH室内设计
空间摄影:丛林
沈烤华
南京观享际SKH室内设计创始人/设计总监
南京观享际·SKH室内设计深耕高端私宅设计 24 载,以时间沉淀专业,用模式兑现承诺——为全国 20 余座城市,近千套豪宅别墅提供全案定制设计与落地服务。
作品屡获国内外权威设计奖项,以「定制高阶生活美学,构筑专属私享府邸」为核心服务理念,推动私宅室内设计行业从单一装饰向全维度生活解决方案进化,树立中国私宅全程整体托管模式服务标杆。
客服
消息
收藏
下载
最近




































































