查看完整案例

收藏

下载
宁波慕尚集团是一家总部设于中国的领先时尚男装公司,其品牌倡导“有爱、年轻、创新、信任、活力”。2018年起,经过5年的设计和建造,位于宁波的慕尚集团总部新大楼即将建成并投入使用。
MULSANNE GROUP is a leading fashion company focuses on menswear in China. Its brand advocates “Love, Young, Innovation, Trust, Vitality”. Since 2018, after 5 years of design and construction, the new headquarters building of MULSANNE GROUP located in Ningbo is about to be completed and put into use.
▼办公总部鸟瞰,Aerial view © 存在建筑
为一个服装企业设计集团总部大楼,犹如服装设计师为客人量身定制衣服。建筑师和业主对设计的敏感和直觉相互交融,用空间、材料、光影编织出建筑与时装的邂逅。建筑与城市关系的处理、内部空间氛围的设计、整个项目精益控制的过程,通过层层递进的深化和雕刻,建筑师手执剪刀和针线,逐步塑造出鲜明的企业形象。
Designing a headquarters building for a fashion industry group is similar to cut customized clothes for a customer. Architects and clients are both sensitive and have so strong intuition towards design that hey weave the encounter between architecture and fashion with space, materials, and shadow. Architects work as tailors, they deal with the relationship between the building and the city, design internal space with different atmosphere, and control the extended preliminary design into details, gradually shape a distinct corporate image through progressive steps.
▼办公总部西南侧入口,Southwest entrance © 存在建筑
空间秩序:向上生长的企业总部
Spatial sequence: an upward growing headquarters building
慕尚集团总部大楼的设计理念兼顾品牌主张和城市的公共性。在由下而上的建筑空间序列中,从公共性最强的品牌门店,经由展示发布中心、员工办公及活动空间,逐步向上过渡到私密性最强的总部办公,最终形成了从大地延向天空的空间层次。建筑的表皮和材质通过体量反差、虚实对比、色彩冲突和材质变化营造出不同的空间质感,让建筑在张显品牌自身文化表达的同时创造出积极的城市公共空间。
▼从地面向上延续的设计理念与体量分析,Design concept and volume analysis of the continuation from ground level upwards © 上海秉仁建筑师事务所
The design concept of the MULSANNE GROUP headquarters building takes into account both brand claims and the publicity of the city. The spatial sequence from bottom to top involves a transition from urban public space (brand stores), then to architectural public space (display center, activity space, offices), and finally to the most private space (headquarter office). The design of facade and the choice of materials create different spatial atmospheres through volumes combination, contrast between mass and space, color conflicts, and material changes. In this way the headquarters building creates an active urban public space while highlighting the brand’s own cultural expression.
▼虚实、冲突而多变的立面体量,Conflicting and dynamic facade © 存在建筑
塑造氛围:性格迥然的主题空间
Shaping atmosphere: spaces with distinct personalities
建筑底部为品牌门店、商业、餐厅等公共空间,凹凸的体块营造出人性化的尺度和多样的空间感受,层叠的黑色盒子勾勒出时尚跃动的建筑轮廓。临近城市道路的建筑界面向外打开,将建筑内部的公共空间延展向外,吸引人群的流动与汇集。
Public spaces such as brand stores, commercial areas, and restaurants locate at the bottom of the building. These spaces are placed in black boxes overlapping with each other, outlining a fashionable and vibrant architectural outline. The interface near the city road opens outward, extending interior public space to exterior, working as a node as well as a place.
▼向城市打开的入口,Entrance to the city© 存在建筑
▼向城市打开的入口,Entrance to the city © 存在建筑
▼黄昏时分的入口广场,Entrance Plaza at Dusk © Heimu Studio 黑水
▼黑色盒子向内部大堂空间的界面延伸,Interface Extension of the Black Box Toward the Interior Lobby ©Heimu Studio 黑水
建筑上部为不同属性的办公空间,内部不同尺度、不同标高的内庭结合景观绿化成为办公部分的共享界面,引导各办公组团间的渗透与互动,塑造复合的办公场所。插入中庭的螺旋楼梯成为强烈的空间焦点,吸引来到这里的人们认识慕尚、探知慕尚。
▼多维度空间设计,Multi-dimensional space design © 上海秉仁建筑师事务所
The office spaces of different departments locate at the upper part of the building share several inner courtyards with different scales and elevations. These inner courtyards with landscape are shared interfaces in the building, leading interaction between different departments, and making an integrated office space. The spiral staircase in the atrium addresses attentions of visitors to understand and explore MULSANNE GROUP.
▼围绕螺旋楼梯组织的共享中庭空间,Shared Atrium Space Organized Around the Spiral Staircase © Heimu Studio 黑水
▼多层界面围合下的共享中庭 Shared Atrium Framed by Layered Interfaces © Heimu Studio 黑水
顶部的总部办公引入宁波传统水乡意象,将古典园林融入办公空间设计,形成“大园套小园,园中有园”的空间格局,丰富了整体空间的层次,于繁华闹市之中,创造一片清净之地。
The traditional water town image of Ningbo is introduced into the headquarters office on the top. This integration of classical gardens into the office space forms a spatial pattern of “big garden with small garden inside”, enriching the overall spatial layout and creating a clean land in the bustling city.
▼屋顶庭院中的园林办公意象 Garden-Inspired Office Scene in the Rooftop Courtyard © Heimu Studio 黑水
建筑表情:如织物般的极致轻盈
Architectural expression: a fabric-like facade system
立面体系的设计试图探索将时装文化融入建筑的可能性,建筑的体量对比同织物间的不同质感产生对话。建筑上部是个巨大轻盈漂浮的白色盒子,通过三层粗细不同的金属杆件错落编织而成,1.4米的幕墙空腔深度有助于实现表皮的空气感。立面朦胧的纤维质感柔和地消隐了上层体块的重量感。室内无柱悬挑结构的设计,内层幕墙玻璃结构自立的视觉感强化了空间轻盈的极致体验。
▼“漂浮的盒子”概念手绘,Conceptual hand-drawing of a floating box © 上海秉仁建筑师事务所
The facade system attempts to explore the possibility of integrating fashion culture into architecture, where the contrast of building volume interacts with the different fabric textures. The upper part of the building is a huge floating white box, and its skin is a woven complexity of three layers of metal rods with different thicknesses. A 1.4 m depth of curtain wall cavity helps to achieve airy. The hazy fiber texture of the facade gently obscures the weight of the upper block. The indoor space adopts a columnless cantilever structure, and the self-supporting glass structure of the external curtain wall enhances the ultimate lightness experience of the space.
▼竹林幕墙肌理效果,Bamboo curtain wall texture effect © 存在建筑
建筑底部错落的黑盒子表皮汲取宣纸的纤维肌理,运用黑色玻璃幕墙与彩釉纹理交织,折射出城市活动的奇妙影像,在界定其公共属性的同时,实现了建筑外观的“重”与室内的“透”。杆件支撑的沉头式抓点设计呈现了建筑一丝不苟的精致度。▼黑色彩釉纹理研究,Black colored glaze texture study © 上海秉仁建筑师事务所
The overlapped black boxes at the bottom of the building apply the fiber texture of rice paper, and the black glass curtain walls interweave with colored glaze, reflecting wonderful images of urban activities. The combined texture achieves a public attribute, the “weight” of the exterior appearance and the “transparency” of the interior space simultaneously. The countersunk grip supported by the rod stress presents the delicate detail.
▼与彩釉纹理交织的黑色玻璃幕墙,Black glass curtain walls interweave with colored glaze © 存在建筑
设计从时装与建筑的共同本源出发,探讨空间、尺度与表皮的逻辑生成,并层层递进到与园林、与艺术、与文化关系的思考,将对自然、织物、光影的感知渗透到建筑设计的各个细节层面,塑造了鲜明的企业品牌形象。对幕墙设计的精细化考量,保证了方案深化的有序进行以及项目的完成度,让慕尚集团总部大楼成为当代建筑精益设计的范本。
Starting from the common origin of fashion and architecture, the design of MULSANNE GROUP headquarters building explores the logic of space, scale, and facade, and gradually deep into the relationship between gardens, art, and culture. It permeates the perception of nature, fabrics, and shadow into various details of architectural design, shaping a distinct corporate brand image. The consideration of facade design ensures the orderly deepening of the design and the completion of the project, making the MULSANNE GROUP headquarters building a model for contemporary architectural design.
▼落日余晖下的慕尚集团总部,MULSANNE GROUP headquarters in the sunset © 存在建筑
▼内庭院看向慕尚集团总部,MULSANNE GROUP headquarters in the sunset © 存在建筑
▼夜幕下的慕尚集团总部,MULSANNE GROUP headquarters at night © 存在建筑
▼总平面图,Master Plan © 上海秉仁建筑师事务所
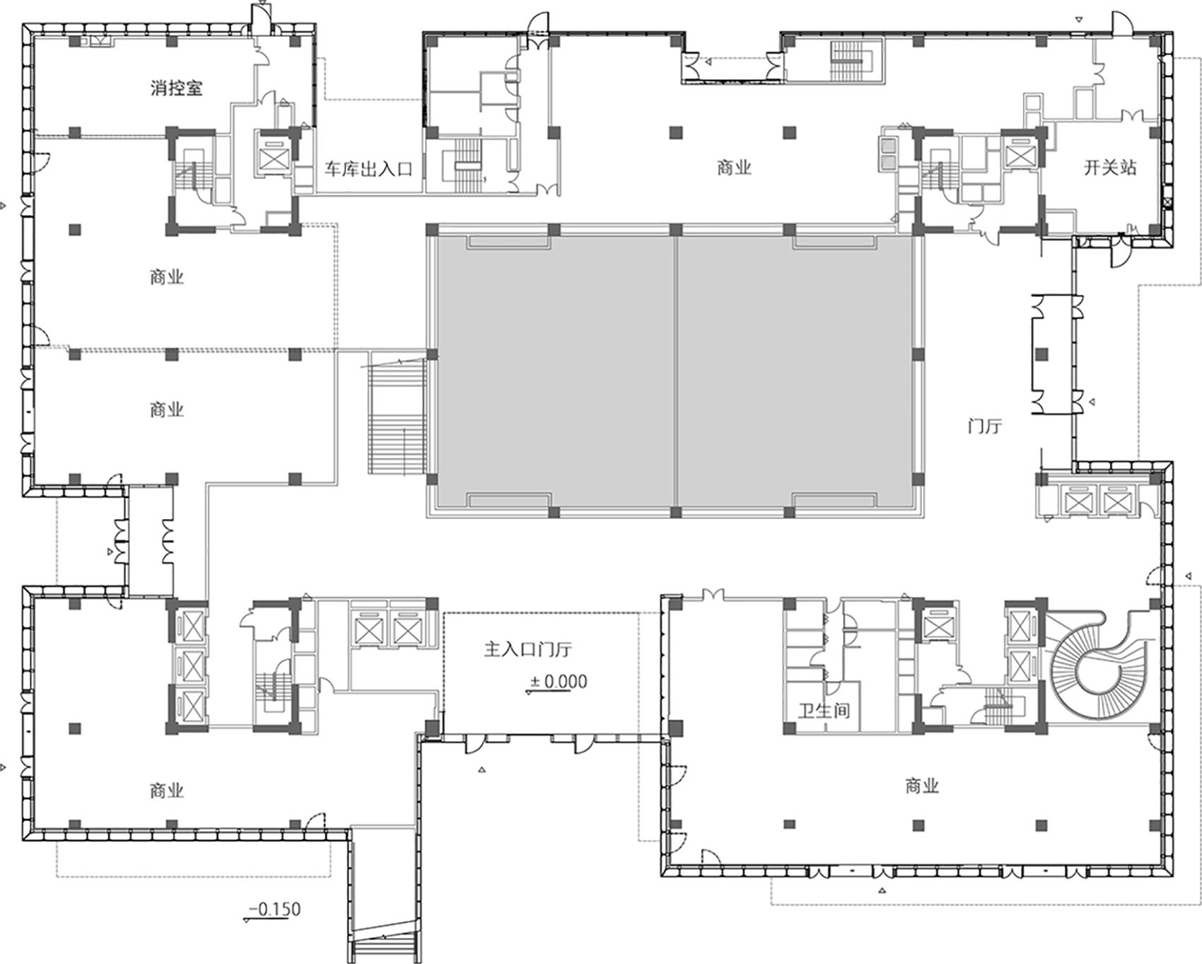
▼一层平面图,1F Plan © 上海秉仁建筑师事务所
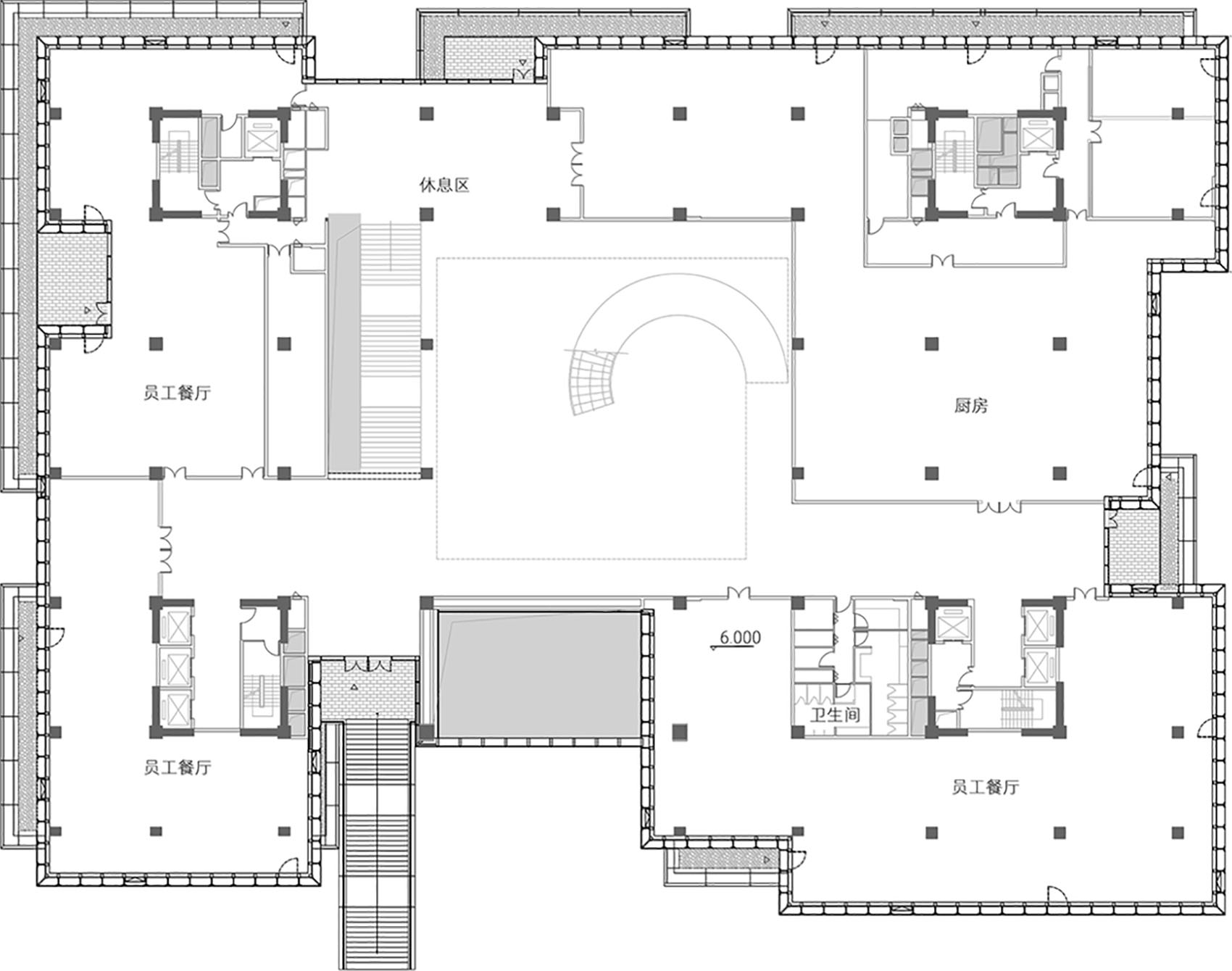
▼二层平面图,2F Plan © 上海秉仁建筑师事务所
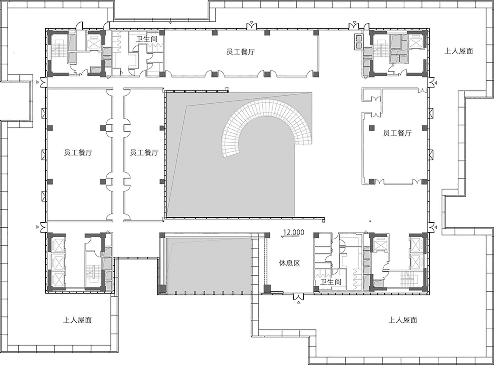
▼三层平面图,3F Plan © 上海秉仁建筑师事务所
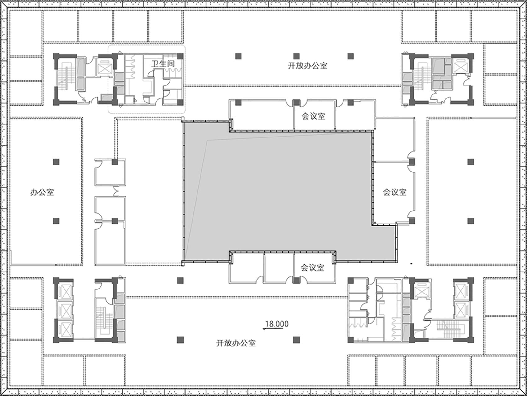
▼四层平面图,4F Plan © 上海秉仁建筑师事务所
▼五层平面图,5F Plan © 上海秉仁建筑师事务所
▼六层平面图,6F Plan © 上海秉仁建筑师事务所
▼七层平面图,7F Plan © 上海秉仁建筑师事务所
▼八层平面图,8F Plan © 上海秉仁建筑师事务所
▼北立面图,North Elevation © 上海秉仁建筑师事务所
▼东立面图,East Elevation © 上海秉仁建筑师事务所
▼南立面图,South Elevation © 上海秉仁建筑师事务所
▼西立面图,West Elevation © 上海秉仁建筑师事务所
▼剖面图,Sections © 上海秉仁建筑师事务所
项目名称:宁波慕尚集团总部大楼
项目类型:商办、总部办公
设计方:上海秉仁建筑师事务所(普通合伙)
项目设计:2018
完成年份:2025
设计团队:主创建筑师: 马庆禕,设计团队: 颜莺 杨远 李唯 赵建霞 陈溟澈 吴承宇 陈德辉 钱泓多 孟泽源 徐天琛
项目地址:浙江省宁波市鄞州区启明路
建筑面积:51404.09㎡
摄影版权:存在建筑,黑目摄影
合作方:
建筑施工图:宁波市城建设计研究院有限公司
幕墙施工图:上海熙玛工程顾问有限公司
景观施工图:浙江金峨生态建设有限公司
结构设计: 宁波市城建设计研究院有限公司
景观设计: 上海秉仁建筑师事务所(普通合伙)
室内设计: AIR Architects室内设计公司
泛光设计:上海倘思照明设计有限公司
土建施工: 浙江万华建设有限公司
幕墙施工:浙江中天方圆幕墙有限公司
客户:慕尚控股集团有限公司
材料:黑色彩釉玻璃/白色彩釉玻璃/深灰色铝板/浅灰色铝板
品牌:黑色彩釉玻璃/白色彩釉玻璃-吴江南玻华东工程玻璃有限公司;深灰色铝板/浅灰色铝板-扬州昌祥铝业
Project name: MULSANNE GROUP Headquarters building
Project type: Offices & Headquarters
Design: DDB Architects Shanghai
Design year: 2018
Completion Year: 2025
Leader designer & Team: Lead Architects: Qingyi Ma;Design Team: Ying Yan, Yuan Yang, Wei Li, Jianxia Zhao, Mingche Chen, Chengyu Wu, Dehui Chen, Hongduo Qiang, Zeyuan Meng, Tiancheng Xu
Project location: Qiming Road, Yinzhou District, Ningbo, Zhejiang
Gross built area: 51404.09㎡
Photo credit: arch-exist, heimu
Partner:
Architectural Construction Drawings: Ningbo Architectural Design & Research Institute Co., Ltd.
Curtain Wall Shop Drawings: Shanghai CIMA Engineering Consulting Co. Ltd.
Landscape Construction Drawings: Zhejiang Jin E Ecology Construction
Interior Design: AIR Architects
Structural Engineering: Ningbo Architectural Design & Research Institute Co., Ltd.
Landscape: DDB Architects Shanghai
Building Construction Works: WANHUA Construction
Curtain Wall Installation: ZHONG TIAN FANG YUAN Curtain Wall
Architectural Lighting Design: Tungsten Studio
Clients: MULSANNE GROUP
Materials: Black Glazed Glass / White Glazed Glass/Dark Gray Aluminum Sheet/Light Gray Aluminum Sheet
Brands: Black Glazed Glass / White Glazed Glass:Wujiang CSG East China Architectural Glass Co., Ltd.
Dark Gray Aluminum Sheet/Light Gray Aluminum Sheet:Yangzhou Changxiang New Material Co., Ltd.
客服
消息
收藏
下载
最近









































