查看完整案例

收藏

下载
明日之城
给岁月以文明,而不是给文明以岁月
概念阐述:在风格样式装饰主义盛行的时代背景下,室内设计的发展不能仅仅依赖于回看历史案例而带来的视觉狂欢,探索空间未来形态的可能,则是一个更加有挑战的命题。所谓“未来感”并非泛泛,它应该是根据每个具体场地通过梳理结构关系,空间组织和构成要素来进行的特定决策,并加以艺术性的概念诠释。在这里空间不是贴满风格装饰的财富游戏,而是赋予崇高且灵动的特殊场域。“科幻”并不遥远,这是一个具有创造性和未来感知的空间,生产出的必然结果。
项目概述:本案位于北京·亦庄经济开发区的一座300㎡叠拼别墅,分别为地下两层和地上两层的上叠户型,地上部分和地下部分通过电梯直连。男业主从事高科技制造行业,喜欢未来科技感的东西;女业曾经从事媒体行业,并育有两个孩子,男孩大学生,女孩高中生;同时未来考虑老人居住生活等问题。
Part1 地下之城
▼ 场地概况
B2层原始户型图
B1层原始户型图
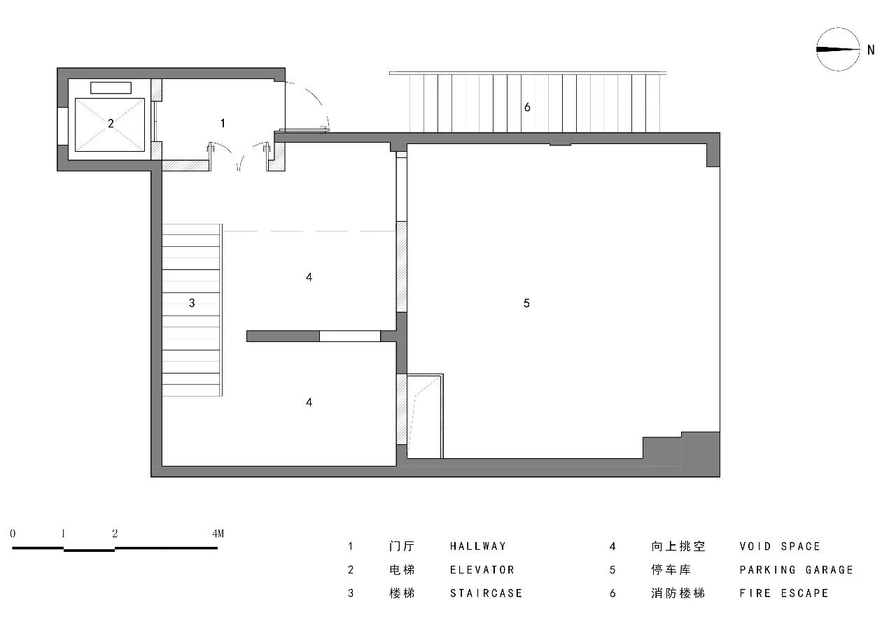
原始户型是地下两层中间挑空结构,通过楼梯相连,采光天井部分由墙体隔开,所以地下室区域采光本非常有限。B1有一个房间层高为2.3米,与楼梯相连的挑空区域层高为6.7米;B2为地下车库,入户后内部层高为2.85米。这是一个较为常见的叠拼地下空间,但从利用率来讲并不高效,面积浪费较多。所以整体设计策略是拆除楼梯和一切非承重墙体,并尽可能利用挑空区域,以达到最大效率的使用同时考虑采光和空间关系。
▼ 空间分析图
▼ 叙事轴测图
地表之下的内部城市
原本建筑从B1到B2可通过电梯与消防楼梯直接到达,所以我们认为内部挑空区域的的楼梯是非必要构筑物,拆除楼梯后让B1与B2形成一种相对独立的层级关系,并得到了一个较为完整的挑空。
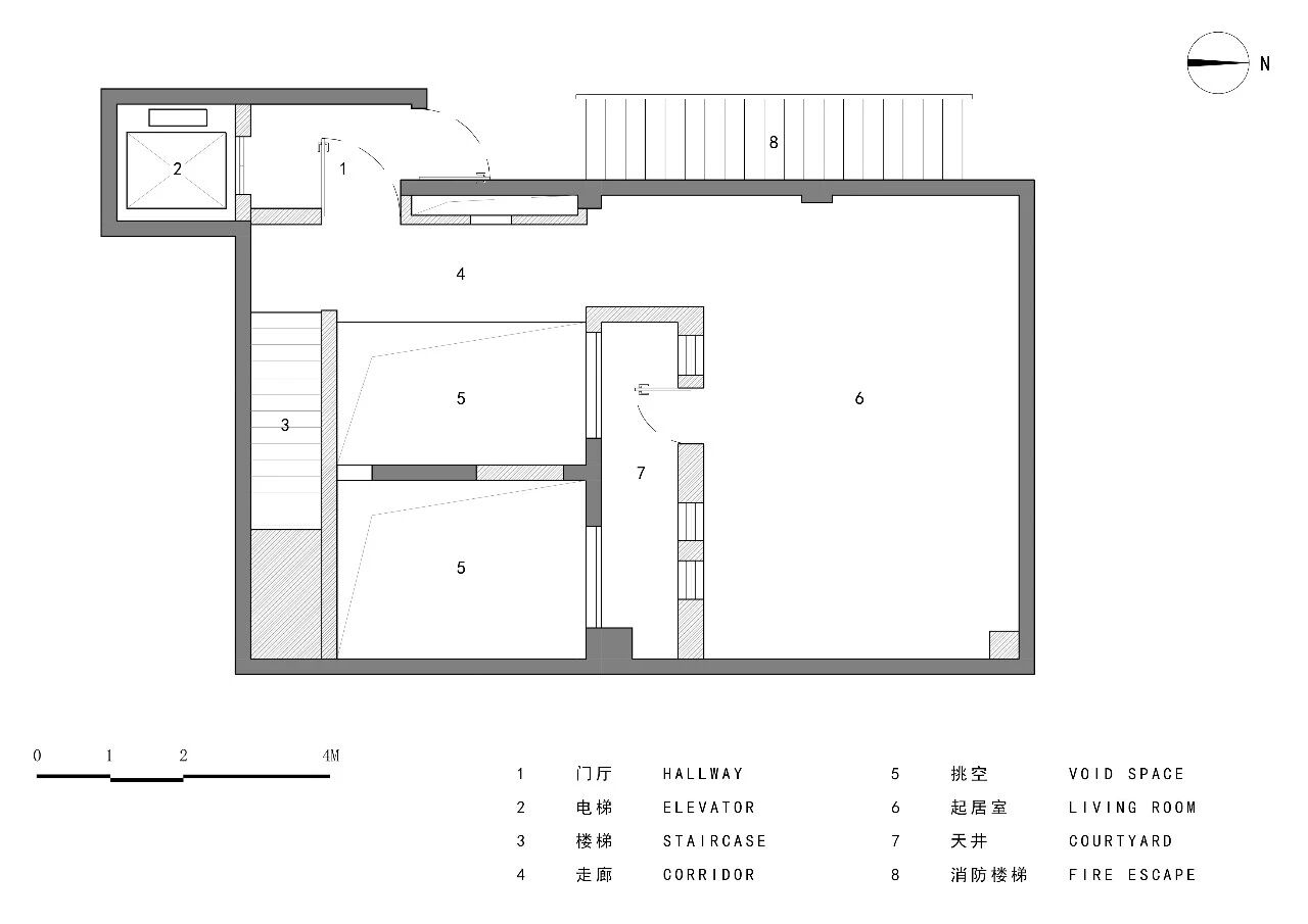
在6.7米的挑空高度之中,植入三个不同高度的夹层平台,形成多层次的空间结构,丰富的动线体验犹如在楼宇之中穿梭。将采光天井打开后,内部建筑拔地而起,木质的窗口与光井遥相呼应,仿佛中打开了城市之窗,天光从顶部落下,人置身于楼宇之中,营造出通向未来的地下之城。
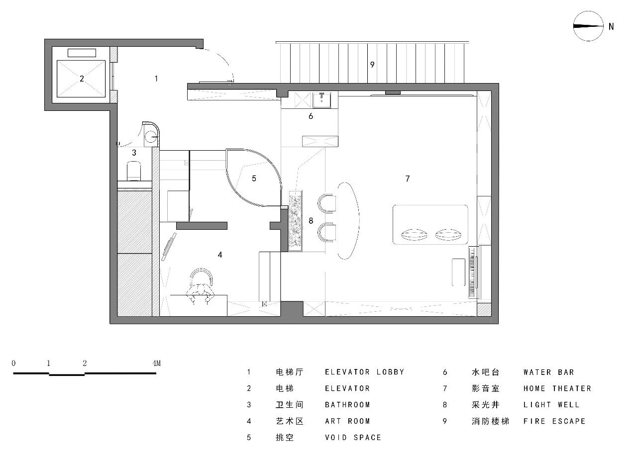
天井区域的设计如同城市中的景观节点,有绿植、有展陈、有桌台,通过窗口连接建筑内部与外部的世界,赋予更多开放与互动的关系。在天井的一侧通过模型展陈柜将原始结构梁与覆土层形式整合,如同另一座建筑拔地而起,并在后方设置了水吧服务区。天井的另一侧造型是梳理管道走向后的形式结果,同时为了更好的采光,吊顶局部开口,并通过水纹玻璃形成光影斑斓的效果,有一种沉落水下的神秘感。
影音房犹如城市中的广场,形成人们的生活聚合节点,在这里通过钢琴、壁炉、沙发、书桌等组合成为了一家人娱乐、休闲、会客甚至举办活动的最佳场地。当灯光调暗后,这里集合了由索尼4k投影仪、135寸幕布和JBL7.1组成的杜比全景声家庭影院,描绘出面向未来的崭新世界。
楼宇中的阁楼
在挑空区域距离顶面约2.05米处设立了上半部分的阁楼夹层,内部通过柚木饰面完整覆盖,成为了一个秘密的小木屋,其窗口和挑空区的设立得以实现更多可能的家庭互动关系,同时它也可以定义为地下城市中的房中房,当客人来访临时居住时,这里也可成为一个具有居住功能的小卧室。
下沉的第三平台
在阁楼夹层以下2.1米处设立了第三个层级平台,通过三步楼梯进入下沉区,这里定义为艺术夹层,是业主女儿在这里画画写书法的区域,同时与顶部阁楼之间形成挑空结构,实现了三个不同高度平台之间的交互。
向下渗透的光井
在下沉艺术平台与B1原始层交汇处,通过双曲线组成了渗透到B2区域的挑空井,在增加空间纵向交互的同时也有B1给B2向下借光的作用。从下往上看犹如逐渐旋转上升的空间站,让人对方向产生迷失,形成一种对于空间总体的仰望与凝视,从而得以升华的“崇高”。
城中的地下入口
B2为车库入户层,作为主要入口使用,入户后设有玄关柜、净手区、换鞋座椅等门厅必要功能。所有的家具都展现出一种轻盈与上升感,往里走同时也是业主的兴趣活动区,并设有手工桌、健身器以及麻将桌供日常娱乐锻炼使用的场所。通过一小段弧型墙体作为影壁作用将入户区域与娱乐区域的动线相互分离。
Part2 星宇之城
当一个文明不再仰望星空,不再教导孩子探索未知,而是将一切伟大的尝试视为谎言和浪费,那才是真正的末日前兆。
▼ 原始户型
L4顶层原始户型图
L3层原始户型图
通过电梯相连可抵达三层和四层,这是较为常见的四室一厅三卫的顶层复式户型,作为业主日常起居休息的空间。楼梯挑空区域是混凝土浇筑楼梯,通常与楼板梁和剪力墙结构相互作用,故此完整的保留了整体楼梯区域,作为串联三四层的交通节点。
▼ 空间分析图
▼ 叙事轴测图
星球陨落的空间站
三层主要用于业主日常起居和休息的空间站,这里包括客厅、餐厅、厨房和卧室。客餐厅是较为常见且开敞的横厅,在餐桌的上方嵌入了一个像星球陨落的光源,这也是一个具有装置性且独一无二的空间部件,星球光源可根据场景需要变换冷暖,分别代表着地球与月亮,而关灯后就如同一颗漂浮在空中的恒星一般,被引力深深牵引,从而带有一种超脱自然的奇幻之感。
餐岛台作为家庭最频繁使用的场所,也可定义为一种日常的仪式活动。在餐岛设计中更加关注材料工艺与细部考究,通过自然山纹柚木拼色定制而成的2.6米餐桌,可容纳一家6-8口人的共同用餐。岛台使用千层岩岩板,发光玻璃嵌入其中,桌子犹如在石材表面漂浮起的构筑物,在科技与自然之间相互碰撞交融。
横厅西立面集合了电梯口、楼梯口、卫生间、老人房、电视墙等多种功能叠加,它作为通向其他空间的重要交通枢纽,也是纵向空间的延伸。所以在立面设计中释放了更多开口,通过一段弧形墙体将原本的较为扁平化的立面赋予体积感,同时弧形墙带有很强的空间指向性,暗示了楼梯方向入口。漂浮的电视柜与叠级楼梯在立面中又均保持着比例和谐与悬浮轻盈。
客厅方向通过木材质将其包裹,并选用一些黑色皮质家具让整体氛围更加安定。由RIVIER弧形沙发、伊姆斯休闲椅、飞碟茶几、钓鱼灯组成的经典与未来更共存的家居场景,散发着松弛自然的氛围。电视柜悬浮其中,将电视、音响、机顶盒等通过黑色金属材质集合嵌入,现代工艺感拉满。
时光与星海之间
四层为居住区也是整栋别墅建筑的顶楼,在卧室中间公共区域置入了一些家政和水吧服务区,为了更好的采光,通过半段弧形墙将靠近顶部的条形窗口更多引入。局部吊顶区域赋予深蓝色漆膜结合北斗七星排列的小射灯,形成星空般的效果,寓意着当走出房间时,人们仰望星空,呈现出一种人类特有的终极浪漫。
卧室的门口嵌入小壁龛,可作为神龛也可作为展柜使用,这里放置了化石陈列,带有很强烈的时间性维度,再叠加星空,便赋予了空间崇高且诗意的感受。
空中的木屋
卧室的设计延承了建筑坡屋顶形制延伸至屋内,不同的房间分别做了不同的变形,如同居住在顶部的木屋。通过橡木饰面板、乳胶漆、水泥艺术漆等材质构成卧室空间,木屋形制的卧室与公共区域的星空相互形成对照,寓意星空下的小房子,让每个家庭成员各得其所。
项目图纸▼ L4平面布置图
▼ L3平面布置图
▼ L3L4剖面图
▼B1平面布置图
▼B1夹层平面布置图
▼B2平面布置图
▼ B1B2剖面图
项目信息
项目名称:明日之城
项目类型:叠拼别墅·上叠户型
项目地址:北京市大兴区亦庄·中铁和园
项目面积:300㎡
造价花费:硬装160万、软装25万、家庭影院7.1万
设计机构:戏构建筑空间设计
方案设计:刘阳
深化设计:王丹
空间摄影:立明
视频短片:朱凯旋、李娅楠
设计时间:2024年1月
竣工时间:2025年12月
主要材料:瓷砖、柚木、柚/橡木饰面板、橡木地板、岩板、石皮板、爱格板、乳胶漆、水泥艺术漆。
主创简介
刘阳 戏构建筑空间设计 创始人/主持设计师
毕业于中央美术学院,进修于米兰理工大学,中国建筑装饰协会 高级室内建筑师;擅长结构性空间改造设计,专注于人居类建筑与空间实践,其独特的设计语言更加强调设计的形式逻辑与概念创新;2024年被评为《AD100YUONG》中国最具影响力建筑和室内设计师;2025年《家居廊》A - List中国室内建筑设计榜单“年度新星”。
客服
消息
收藏
下载
最近






































































