查看完整案例

收藏

下载
荷兰中央银行(De Nederlandsche Bank,1968年)位于阿姆斯特丹运河带附近历史悠久的“Utrechtse Poort”旧址。直到1929年,该地原为由萨尔法蒂(Samuel Sarphati)设计的“人民工业宫”(Paleis voor Volksvlijt),但同年被火灾摧毁。萨尔法蒂的构想——将文化、经济、企业精神与科学汇聚于一地,面向大众——在当时堪称革命性。荷兰中央银行(DNB)作为独立的中央银行,致力于金融稳定、支付系统安全畅通,并监管金融机构。DNB原建筑由建筑师Marius Duintjer设计,呈现代功能主义风格,但未能赢得阿姆斯特丹市民的喜爱,人们认为其疏离、与历史建筑风貌不符。建筑由一座低层方形建筑(110×120米)和一座73米高的办公塔楼组成,其设计灵感来自美国的密斯·凡·德·罗(Mies van der Rohe)和SOM中期现代主义建筑。设计在当时以简洁线条、克制材料和透明感而开创性,但由于安全需求,这种透明感很快消失,建筑被围栏、大型岩石及武装警卫所包围。1991年,庭院中新增圆形塔楼,低层方形建筑增设第三层。随着金库与钞票运营迁往Zeist现金中心,旧建筑迎来改造契机,得以从高度戒备的封闭建筑转变为更开放、可接触公众的空间,而圆塔则可模块化拆除。
De Nederlandsche Bank (1968) is located on the historic ‘Utrechtse Poort’ site close to Amsterdam’s canal belt. Until 1929, this was the location of the Paleis voor Volksvlijt (Palace of Industry), designed by Samuel Sarphati, which was destroyed by fire that same year. Sarphati’s vision – uniting culture, economy, entrepreneurship, and science in one place for all people – was revolutionary at the time. De Nederlandsche Bank (DNB) is the independent central bank of the Netherlands, committed to financial stability, a smooth and secure payment system, and the supervision of financial institutions. The DNB building, designed by architect Marius Duintjer, was modern and functional. However, it was not embraced by the people of Amsterdam, who found that it was unapproachable and contrasted with the historic architecture of the city centre. For the complex – consisting of a low-rise, square-shaped building (110 x 120 metres) and a 73-metre-high office tower – Duintjer drew inspiration from the mid-century modern architecture of Mies van der Rohe and SOM found in the United States. At the time, the design was pioneering due to its minimalist lines, restrained use of materials, and transparency. However, that sense of transparency was soon lost due to security requirements; the building became a fortress with fences, large boulders, and armed military police. In 1991, a circular tower was added in the courtyard, and a third floor was placed atop the low-rise square. With the decision to relocate the gold reserves and banknote operations to the Cash Centre in Zeist, the opportunity arose to transform this heavily secured and overdue-for-renovation building and open it up to the greater public in a more engaging way. The circular tower was no longer needed and could be dismantled in a modular manner.
▼项目概览,overall of the project©De Nederlandsche Bank/Ossip Architectuurfotografie
外立面塔楼与城市色彩
Facade tower and the colours of the city
Duintjer原立面红瓦参考阿姆斯特丹运河带砖砌风格。Mecanoo通过深入研究色彩,将瓦片色差再现,并采用机械挂装方式,可未来循环拆解。所谓“kastenfenster”系统保证良好保温,并可开窗通风。
▼历史照片,historical state of the building©De Nederlandsche Bank
For Duintjer, the red tiles on the facade referenced the brickwork of the Amsterdam canal belt. The colour nuances at the time were created through the manufacturing process. Today, ceramics are produced with precise colour specifications. After an extensive colour study, Mecanoo has reintroduced these nuances in the renovated facade. By opting for a mechanical suspension, the facade can be disassembled in the future in a circular manner. The so-called ‘kastenfenster’ system ensures that the building is well insulated and provides the option to open the windows for ventilation.
▼城市鸟瞰,aerial view of the city©De Nederlandsche Bank/Ossip Architectuurfotografie
▼河岸视角,viewing the building from the river©De Nederlandsche Bank/Ossip Architectuurfotografie
功能
Programme
荷兰中央银行原建筑(1968年)改造面积67,000㎡,新建约1,500㎡,包括重新设计的入口与金库展览空间、大堂与咖啡吧、正式/非正式礼堂、办公区、会议中心、健身房、中庭楼梯及座位、员工餐厅、物流庭院、自行车及停车场,并涵盖庭院及屋顶花园景观。项目获得BREEAM杰出与WELL铂金认证。
Renovation of the national bank building (1968) covering 67,000 m², of which approximately 1,500 m² is new construction, including a redesigned entrance area with exhibition spaces in and around the former gold vault, a lobby with reception and coffee bar, formal and informal auditoriums, office workspaces, meeting centre, gym, atrium with stairs and seating, staff restaurant, logistics courtyard, bicycle storage, and car park. The project also includes landscaping for the courtyards and rooftop gardens. It is certified with BREEAM Outstanding and WELL Platinum.
▼入口,entrance©De Nederlandsche Bank/Ossip Architectuurfotografie
▼檐下空间,space under the eaves©De Nederlandsche Bank/Ossip Architectuurfotografie
新金库
The new treasury
在2018年获胜的设计方案中,Mecanoo将DNB入口迁至Frederiksplein(弗雷德里克广场),与Utrechtsestraat(乌特勒支街)轴线对齐,并在金库中打通通道。围绕金库的楼层被移除,向城市展示出一个61×18.5×11米的“黄金巨像”,配备六扇巨型金库门。金库内部设置展览与互动体验,讲述黄金、货币、经济及DNB核心业务的故事。银行最机密的部分如今成为最公开的空间——“新金库”。两端分别设置正式和非正式的礼堂,用于讲座、表演及学校团体活动。金库与新城市花园之间的区域形成一条“街道”,设有桌椅,可供等候、会议、学习、咖啡或参观展览。Francine Houben的设计灵感来源于代尔夫特理工大学建筑学院中央大厅生机勃勃的“街道”,原建筑曾因火灾被毁。接待台既作为面向社区与访客的咖啡吧,也作为进入下一安全区的登记点。
In the winning design proposal (2018), Mecanoo decided to relocate the entrance of DNB to Frederiksplein (Frederik’s Square), aligning it with the Utrechtsestraat (Utrecht Street) axis, and to cut through the vault. The floors surrounding the vault were removed, exposing to the city a golden colossus measuring 61×18.5×11 metres, complete with six imposing vault doors. Inside the vault, visitors can immerse themselves in exhibitions and interactive games that tell the story of gold, money, the economy, and DNB’s core activities. The most secretive part of the bank is now its most public: The New Treasury. At both ends, there are two auditoriums: a formal auditorium for lectures and performances, and an informal auditorium for hosting school groups. Between the vault and the new city garden, where the round tower once stood, lies the so-called ‘street’ with tables and seating areas for waiting, meeting, studying, having a coffee, or visiting the exhibitions. Francine Houben’s inspiration came from the vibrant ‘street’ of the central hall in the former Faculty of Architecture building at TU Delft, which was destroyed by fire. The reception desk functions as a welcoming coffee bar for the neighbourhood and visitors, but also as the check-in point for DNB guests entering the next security zones.
▼室内概览,overall of interior©De Nederlandsche Bank/Ossip Architectuurfotografie
▼通高空间,double-height spaces©De Nederlandsche Bank/Ossip Architectuurfotografie
中庭、餐厅与“Singelgracht”
Atrium, restaurant, and ‘Singelgracht’
半公共区域设有沿Utrechtsestraat轴线的五层中庭及楼梯,促进互动与流动。双层楼梯引入自然光至地下层,同时承办约2300名员工的“市政厅会议”。前外墙的网格状混凝土结构被转化为中庭内部的开放墙体。中庭通向餐厅,呈夹层位置,可俯瞰Singelgracht运河。员工及访客可在此小范围或集体用餐,也可在午餐外时段作为工作与会议空间。沿运河的码头改造成公共聚集区,行人可在水面上方木平台上休憩。
In the semi-public area, Mecanoo added a five-storey atrium with staircases along the Utrechtsestraat axis, encouraging movement and interaction. The atrium brings daylight to the basement levels through a double staircase, and serves as the venue for ‘Townhall Meetings’ for the approximately 2,300 employees. The grid-like, robust concrete structure of the former exterior wall now forms an open interior wall within the atrium. The atrium leads to the restaurant, which, positioned like a mezzanine, overlooks the Singelgracht. Here, DNB employees and their guests can dine, both formally and informally, in small groups or in a lunchroom setting. Outside lunch hours, it serves as a work and meeting space. The quay along the Singelgracht has been transformed into a public gathering place, where passers-by can sit in the sun on the wooden deck hovering just above the water.
▼餐厅/咖啡厅,restaurant / cafe©De Nederlandsche Bank/Ossip Architectuurfotografie
▼餐厅在午餐外时段作为工作与会议空间,the restaurant serves as a workspace and meeting area during the non-lunch hours©De Nederlandsche Bank/Ossip Architectuurfotografie
现金大厅变身论坛
Cash Hall becomes the Forum
原由Duintjer设计的双层现金大厅,以其特色柱廊闻名,曾为数钱场所,如今改造为“论坛”,中心设会议室。通过第二安全区后,访客可进入半公共区,设有桌椅、休闲座位及植物装饰。受纽约公共图书馆Rose Main Reading Room启发,120米长的阅览室面向Frederiksplein,周围环绕荷兰榆树树冠。Mecanoo设计了18张DNB专用桌,并配置照明,阅览室可日常办公,也适合会议及晚宴。中心保留Duintjer设计的螺旋楼梯,Mecanoo增设配套楼梯,以阴阳互补方式连接二、三层。
The double-height cash hall by Duintjer, characterised by its distinctive columns, was the place where money was counted. The hall has been transformed into the Forum, a meeting centre with meeting rooms at its heart. After passing the second security zone, guests are welcomed into this semi-public area, Intimate breakout zones with tables, seating areas, and numerous plants are located on the side of the city garden and the staff courtyard. Inspired by the Rose Main Reading Room of the New York Public Library, the monumental 120-metre-long reading room faces Frederiksplein and is surrounded by the crowns of Dutch elms. Mecanoo designed eighteen DNB tables for the reading room, complete with lighting. The room is used daily as a workspace, but it is also suitable for special conferences and dinners. In the centre stands the spiral staircase designed by Duintjer. Mecanoo added a complementary staircase, in a yin and yang fashion, connecting the 2nd and 3rd floors.
▼中庭,atrium©De Nederlandsche Bank/Ossip Architectuurfotografie
▼论坛,the forum©De Nederlandsche Bank/Ossip Architectuurfotografie
多样化工作环境
A diverse work environment
▼办公空间,office space©De Nederlandsche Bank/Ossip Architectuurfotografie
循环与生物基材料
Circular and biobased materials
Mecanoo在Duintjer原有的混凝土、玻璃、钢结构中引入温暖的圆形与生物基材料,改善声学效果。当地砍伐的老病杨木被用于混凝土下方的木格栅吊顶。墙面覆彩色PET毡与FSC认证木饰板,色彩灵感源自荷兰盾币的鲜艳色调。建筑内展示DNB艺术收藏。照明方面,1960年代荧光灯被节能、功能性、氛围性及舞台灯光组合取代。
Mecanoo added a palette of warm circular and/or biobased materials to Duintjer’s selection of robust concrete, glass, and steel, contributing to excellent acoustics. The wood from locally felled old and diseased poplars has been beautifully incorporated into a wooden slatted ceiling beneath the concrete structure. The walls are covered with coloured PET felt, interspersed with FSC-certified wooden panelling. The colour scheme is inspired by the vibrant paper currency from the last period of the Dutch guilder. DNB’s art collection is displayed thoughtfully throughout the building. Great attention has been given to the lighting: 1960s fluorescent tube lighting has been replaced with a combination of energy-efficient, functional, atmospheric, and theatrical lighting.
▼色彩灵感源自荷兰盾币的鲜艳色调,thecolour scheme is inspired by the vibrant paper currency from the last period of the Dutch guilder©De Nederlandsche Bank/Ossip Architectuurfotografie
循环与可持续示范项目
Circular and sustainable exemplar project
DNB设立循环标准,获得BREEAM杰出认证。圆塔模块化拆除后重新利用,建筑拆除废料加工为高质量原料用于新循环混凝土建造新码头。部分混凝土注入CO₂,实现碳中性。另一部分用于阿姆斯特丹社会住宅,周边鹅卵石改作东区体育公园攀爬设施。办公家具大部分再利用,现场设雨水收集系统。改造将能耗与碳排放减少80%以上。塔楼立面采用高保温“kastenfenster”系统,双层玻璃通风幕墙带遮阳。通风系统回收排气余热,屋顶光伏满足部分用电需求。尽可能安装冷热储存、太阳能及绿化屋顶,助力气候中性城市建设。
DNB sets a benchmark for circularity and has received the BREEAM Outstanding certification for its renovation. The round tower was modularly dismantled for repurposing. Demolition debris from the building has been processed into high-quality raw materials for the production of new, circular concrete. This circular concrete was used for the construction of the new quay. Additionally, CO₂ was injected into the concrete, resulting in CO₂-neutral concrete. Another portion of the concrete has been reused for social housing in Amsterdam. The cobblestones surrounding the building are being repurposed as climbing objects in a sports park on the east side of Amsterdam. Office furniture has been largely reused, and rainwater collection has been implemented on site. The renovation has reduced energy consumption and CO₂ emissions by more than 80%. The tower facades are highly insulated with the ‘kastenfenster’ system, a ventilated double-glazed facade with integrated sun shading. The ventilation system reuses the heat from outgoing air. Solar panels on the roof meet part of the electricity demand. All energy needed is sourced as sustainably as possible. There is a heat-cold storage system, and wherever possible, solar panels and green roofs have been installed. In this way, the building contributes to a climate-neutral city.
▼庭院,courtyard©De Nederlandsche Bank/Ossip Architectuurfotografie
▼庭院夜景,night view of the courtyard©De Nederlandsche Bank/Ossip Architectuurfotografie
▼庭院夜景,night view of the courtyard©De Nederlandsche Bank/Ossip Architectuurfotografie
生物多样性与热应激
Biodiversity and heat stress
Frederiksplein改造为Frederikspark,使银行坐落绿意之中。原圆塔停车场改建为开放城市花园。物流中心屋顶设室内草本蔬菜园供员工使用。屋顶增设绿化平台,木制平台让人亲近凉爽水域。所有措施提升生物多样性并缓解城市热应激。
The transformation of Frederiksplein into Frederikspark places the Bank amidst greenery. The former car park with the round tower has made way for a publicly accessible city garden. The logistics centre was given a roof with an indoor garden filled with herbs and vegetables for the staff. The rooftops now incorporate green terraces, and on the wooden deck, everyone can sit close to the cooling waters of the ‘Singelgracht’. All these elements contribute to enhancing biodiversity and reducing heat stress in the city.
▼沿河立面,facade along the river©De Nederlandsche Bank/Ossip Architectuurfotografie
▼总平面图,master plan© Mecanoo
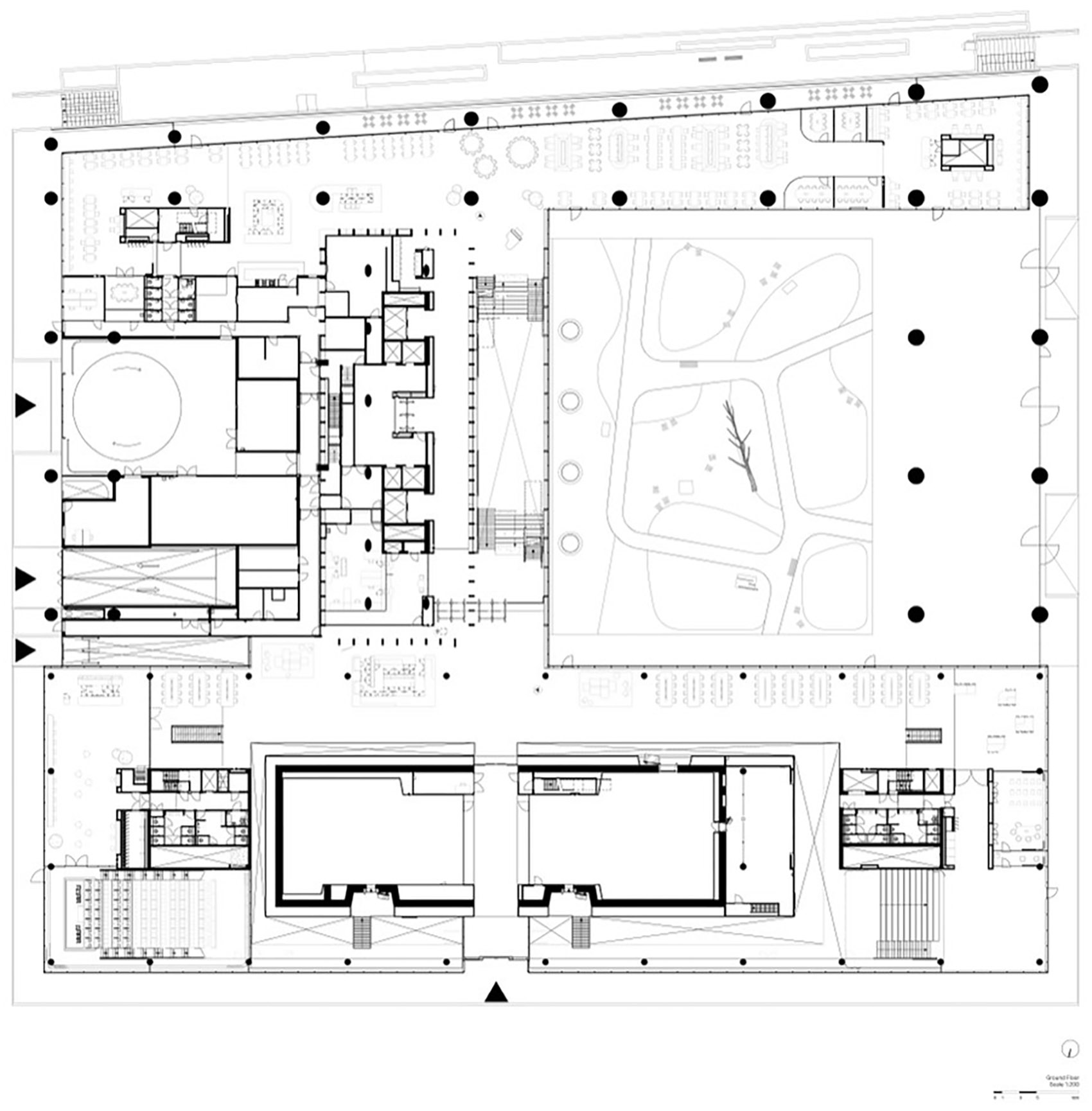
▼底层平面图,ground floor plan© Mecanoo
▼二层平面图,first floor plan© Mecanoo
▼三层平面图,second floor plan© Mecanoo
▼四层平面图,third floor plan© Mecanoo
▼立面图,elevations© Mecanoo
▼剖面图,sections© Mecanoo
Client: De Nederlandsche Bank
Design: 2018-2020
Realisation: 2020-2025
Architecture, restauration, interior and landscape: Mecanoo
Construction: Pieters Bouwtechniek
M&E engineer: Valstar Simonis
Building physics and fire safety: DGMR
Lighting design: Frans van Hooijdonk
Project management: Stevens Van Dijck Bouwmanagers en Adviseurs
Cost consultant: IGG Bouweconomie
Main contractor: SPIE
Exhibition design: Platvorm (design), Duinzand (concept), IJsfontein (interactive games), Redrum Bureau (3D experience)
Wayfinding: Mijksenaar
Photography: De Nederlandsche Bank/Ossip Architectuurfotografie
客服
消息
收藏
下载
最近










































