查看完整案例

收藏

下载
Atypique是一家手工艺工坊与精品咖啡馆,位于标志性的西博内大楼(Siboney building)底层。这座建筑是桑坦德20世纪建筑的重要代表作品之一,以大胆的表现主义与装饰艺术(Art Déco)语言著称,与周边历史主义风格建筑形成鲜明对比。其坐落于Puerto Chico最具代表性的城市立面之上,使其成为真正的视觉与精神地标。
Atypique is an artisan workshop and specialty coffee shop, located on the ground floor of the iconic Siboney building—an essential piece of 20th-century architecture in Santander. This property is distinguished by its bold expressionist and art déco language, standing in sharp contrast to the historicist constructions in the surrounding area. Its presence on the most representative urban façade of Puerto Chico makes it a true visual and symbolic landmark.
▼咖啡店入口,Coffee shop entrance ©David Zarzoso
▼入口空间,Entrance space ©David Zarzoso
本项目以这座建筑独特的建筑个性为出发点:圆柱体量、水平带状线条、舷窗式开窗、红砖以及灰色抹灰表面。这些元素均通过当代建筑语言被延续至室内空间之中。从最初的构想开始,设计目标便十分明确:在场地内部再现西博内大楼的“非典型”气质,在尊重其本质精神的前提下进行再诠释,以满足全新的使用需求。设计策略在于由内向外重释建筑的形式语言,将其形态与质感转译至室内空间之中。
The project takes as its starting point this unique architectural personality: cylindrical volumes, horizontal bands, porthole windows, red brick, and grey plasterwork. All of these elements were carried into the interior of the space through a contemporary architectural language. From the initial concept, the objective was clear: to replicate the atypical character of the Siboney building inside the premises, respecting its essence while reinterpreting it to meet the requirements of its new use. The design strategy consisted in reinterpreting the formal language of the building from the inside out, translating its forms and textures into the interior space.
▼一层客座空间,Guest seating space on the first floor ©David Zarzoso
因此,建筑体量所呈现的曲线形态、圆形元素以及分解式构成,启发了室内包裹而流动的空间氛围。几何语言不仅回应审美表达,也服务于功能理性的组织需求:工坊区、咖啡区与服务区清晰而精准地被整合与串联。
Thus, the curved forms, circular elements, and fragmented composition of the building’s volume inspire an enveloping and fluid atmosphere within the premises. Geometry responds not only to aesthetics, but also to the rationalist functionality of the program: workshop, coffee and service areas, all articulated with clarity and precision.
▼设备细节,Equipment details ©David Zarzoso
▼操作台细节,Operations area detail ©David Zarzoso
为强化项目的地方身份认同及其与地域之间的联系,设计选用了天然且本地采购的材料。作为这一身份表达的核心与主角,吧台被塑造为一块具有粗野主义气质的坎塔布里亚石材体量——具体为来自Val de San Vicente的劈裂石灰石。
To reinforce the local identity of the project and its connection to the territory, natural and locally sourced materials were chosen. As a major expression and protagonist of this identity, the counter is presented as a brutalist volume of Cantabrian stone—specifically, split limestone from Val de San Vicente.
▼圆桌,Round table ©David Zarzoso
▼圆形水池,Circular water tank ©David Zarzoso
为进一步强化空间个性,设计团队定制了家具与灯具。不锈钢被选为主要材料,象征坚韧与洁净。Atp28与Atp L400两款灯具将装饰艺术与理性主义设计的语汇相结合,并融入现代技术解决方案,为空间体验增添鲜明特质与独特性。光成为空间叙事的重要媒介:它揭示材质肌理,强化曲线形态,并引导访客的行进路径。
To further enhance the identity of the space, custom furniture and lighting were designed. Stainless steel was chosen as the main material, symbolizing resilience and cleanliness.
The Atp28 and Atp L400 luminaires combine references to art déco and rationalist design with modern technical solutions, adding character and uniqueness to the spatial experience. Light becomes a narrative tool: it reveals textures, accentuates curved forms, and guides the visitor’s journey.
▼通往二层楼梯,Stairs leading to the second floor ©David Zarzoso
▼灯具细节,Details of the lamps ©David Zarzoso
Atypique汲取北欧设计的影响,追求形式的纯粹、功能的清晰以及与自然的联系。“Naturally Different”的理念不仅体现在其餐饮内容之中(功能性饮品与精品咖啡),也体现在空间构成上:营造出克制、优雅,同时温暖且具有人性尺度的环境。它并不试图与周边环境融为一体,而是选择与之展开对话——既尊重语境,又立场坚定。正如西博内大楼在其时代所展现的姿态一样,这一场所亦期望成为当代的参照坐标,以“非典型”为其自觉立场。
Atypique draws influences from Nordic design, in its pursuit of formal purity, functionality, and connection with nature. The concept of “Naturally Different” is expressed not only in its gastronomic offering (functional drinks, specialty coffee), but also in its spatial configuration: a sober, elegant, yet welcoming and human environment. It does not seek to blend in with its surroundings, but to engage in dialogue with them—respectful yet firm. Like the Siboney building in its time, the venue aspires to be a contemporary reference point, atypical by conviction.
▼开灯后的一层空间,The first floor space after the lights turned on ©David Zarzoso
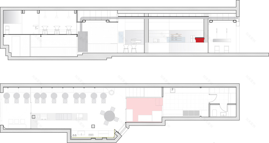
▼平面图和剖面图,Plan and section ©ZOOCO ESTUDIO
Proyecto:Atypique
Año:2024
Lugar:Santander
Equipo:Miguel Crespo Picot, Javier Guzmán Benito, Sixto Martín Martínez ZOOCO ESTUDIO ()
Colaboradores:Estefania Sanchez, Jorge Alonso
Fotográfo:David Zarzoso
Construcción :COBOMAN S.L
Iluminación:ZOOCO ESTUDIO ()
Mobiliario:ZOOCO ESTUDIO ()
客服
消息
收藏
下载
最近




























