查看完整案例

收藏

下载
科研建筑因学科差异而产生独特的空间定制需求,这与场地的气候条件及景观资源形成了多重约束。浙江大学(海南)先进技术与产业创新平台项目中,我们探讨科研建筑在湿热地区的在地设计策略,以“叠荫观澜”理念回应这一挑战。“叠荫”统领气候适应:通过形体扭转与架空形成自遮阳与通风体系;立面按需划分为“黑—白—灰”三类界面,结合算法优化的遮阳系统,平衡采光、隔热与能耗。“观澜”组织空间叙事:试验功能临海布置以亲近水体,产业办公及观测大厅置于远海高层,建筑通过框景与渗透,将海洋景观转化为连续的时空体验。最终,项目以“叠荫”构建生态基底,以“观澜”升华空间意境,为湿热地区科研建筑提供了在地性、科学性与人文性融合的设计范式。
崖州湾科技城位于海南省三亚市西侧的崖州区,规划面积26.1平方公里,以 “一港、三城、一基地” 为核心空间架构 —— 即南山港、南繁科技城、三亚深海科技城、三亚崖州湾大学城及全球动植物种质资源引进中转基地,旨在打造 “产学研城深度融合的创新聚集地”。浙江大学先进技术研究院择址于此,聚焦深海领域开展专项科研工作,形成区域科研创新体系的重要支撑,其中科研试验楼辅楼内的超静试验室,功能特殊,结构复杂,投入使用后将成为世界第三、亚洲第一大超静试验室。
区位图©UAD
场地紧邻崖州湾,西侧直临海域,东侧衔接公共教学区。场地虽然形态规整却与正南北呈42°的夹角,这一角度特征源于新城空间规划结构。基地长边近200米,靠近海岸的三分之二限高40米,剩余的东西向狭长场地限高60米。朝西景观面和限高区域划分,与热带地区南北朝向的偏好形成矛盾,成为主导建筑布局策略的关键限制因素。
限高约束下的布局策略©赵强
研究院以科研试验与产业孵化为核心功能,两者空间需求差异显著。科研功能包含两座高大试验空间及试验室,受试验工艺刚性约束,科研试验空间尺寸与层数需严格匹配工艺要求,量身定制设计;产业孵化功能空间灵活性更高,但需结合当地气候特征优化室内舒适性。
高大试验空间望向试验室©赵强
设计前期,项目组与科研团队深度协同,精准梳理各类试验的空间特性,同时融合规划要求与气候适应目标,最终确立“叠荫观澜”的设计理念。建筑布局以“叠荫”统领气候适应。在前期阶段,设计团队与科研使用方经多轮协同研讨,明确科研试验与产业孵化功能的空间配比及工艺流线要求。经多方案比选,最终确立“科研—孵化”东西分区的总体格局:科研试验区置于面海西侧,采用南北向条形布局,主楼与辅楼平行排列,以获取稳定朝向与海景视野;产业孵化区则集中于东侧高层区,为减少东西向受热面,建筑形体优化为“南北向点式塔楼+顶部联通体”的扭转形态。该布局既形成建筑群体间的自遮阳与通风廊道,亦使绝大多数功能空间实现南北向自然采光,从形体层面回应热带气候的遮阳与通风需求。空间组织以“观澜”形成叙事结构,辅楼高大的架空门厅,与主楼室外景观台阶及圆桌会议厅形成轴线对位关系,通过框景和对景的手法形成空间序列;综合研发楼通过形体扭转获得的架空空间,既是观澜院落的背景,又作为组团内富有活力的非正式交流空间,高层顶部设两座海洋观测大厅,实现“近可观院、远可望海”的视野与功能需求。
近可观院,远可望海©赵强
望向群山的视觉通廊©赵强
以水为题的内院景观©赵强
平面组织采用功能剥离策略,将共享门厅、展厅及会议厅等公共要素从科研单元中抽离,通过架空层与半室外连廊构成的立体交通网络进行串联。这种空间集约化模式既保障了科研功能的高效性,又释放出大量公共空间,满足科研人员和师生的交流需求。
架空门厅间的对景关系©赵强
抽离出建筑的会议厅©赵强
强封闭性需求的功能空间(试验车间),需直面大海的观测空间(观测大厅)以及对采光与景观均衡适配的日常使用空间(科研办公)构成了整个建筑立面“黑”“白”“灰”的秩序,也成为科研建筑的生态基底。科研试验辅楼内部整合两座高大试验空间,空间内部需满足严格的工艺标准,自然采光需求低,构成建筑群中最坚实的“黑色”体块。其外立面采用拉槽毛面芝麻白花岗岩材质,强化建筑体量的同时,赋予建筑肌理和细节。观测大厅、建筑门厅及会议厅等空间需要有较强的室内外视线交流需求,采用全玻璃幕墙的设计,它们如“白色”的虚空节点,策略性地散布于建筑组团核心及架空区域,将自然与景观最大限度地引入。
虚实层构的立面秩序©赵强
富于变化的形体©赵强
绝大部分的建筑立面是介于虚实之间的“灰”。作为建筑使用者长期停留的空间,如何平衡采光与室内热舒适性成为设计的重点。立面设计采用两套网格系统:内侧墙面根据各个房间尺寸均匀开窗,外侧水平线条与竖向遮阳板形成独立于房间以外的第二套网格系统,这样的设计使内部房间可以满足自由划分的同时,赋予建筑规整统一的外立面形象。
虚实分明的建筑体块©赵强
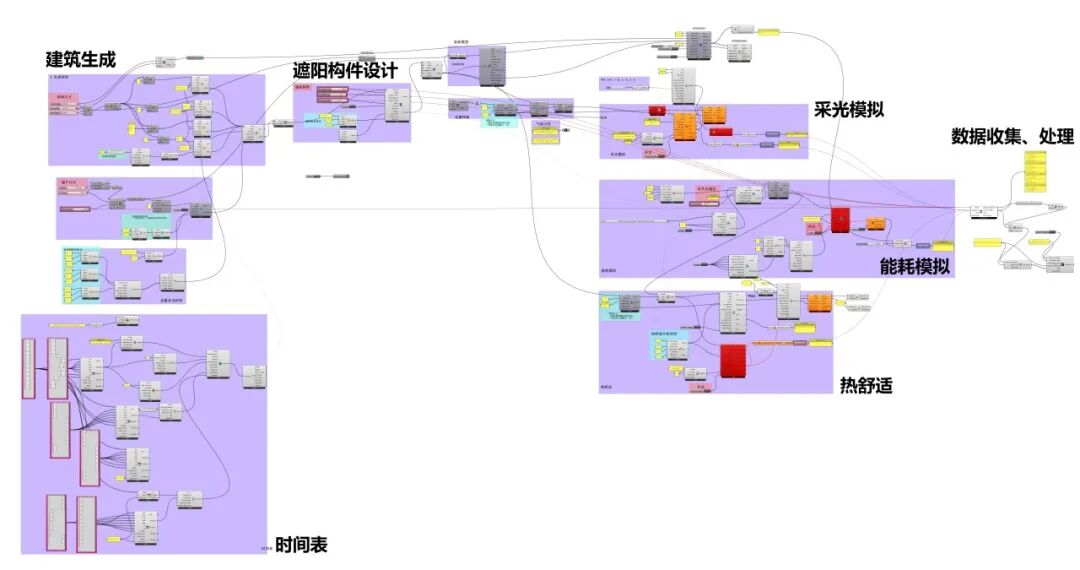
竖向遮阳百叶系统的宽度、角度与间距是影响室内光热环境与能耗性能的关键设计变量。遮阳百叶在阻挡夏季太阳辐射、节约空调能耗、提升室内热舒适性的同时,也可能显著削弱自然采光水平,导致人工照明能耗增加,形成光热性能间的矛盾。设计结合三亚当地气候条件,采用遗传算法对不同朝向的竖向百叶进行参数化模拟与多目标优化,得出兼顾遮阳效率与采光需求的竖向百叶最优几何参数组合,并结合建筑造型与景观朝向完成形态整合。这一基于性能模拟的理性设计方法,不仅与科研建筑注重实证与优化的内在精神相契合,亦为湿热地区建筑外遮阳系统的精细化设计提供了可量化的技术路径。
电池图©UAD
热力图©UAD
丰富的光影效果©赵强
浙江大学(海南)先进技术与产业创新平台项目以“叠荫观澜”为理念,建筑体块布局和空间组织满足使用需求和规划条件的同时,减轻当地气候带来的不利影响;立面设计以室内环境为导向,充分考虑室内自然采光、热舒适性和能耗的制约关系,从而获得最终功能与形象,气候与景观,情感与理性互相平衡的设计成果。
流动的共享空间©赵强
项目图纸—
总平面图©UAD
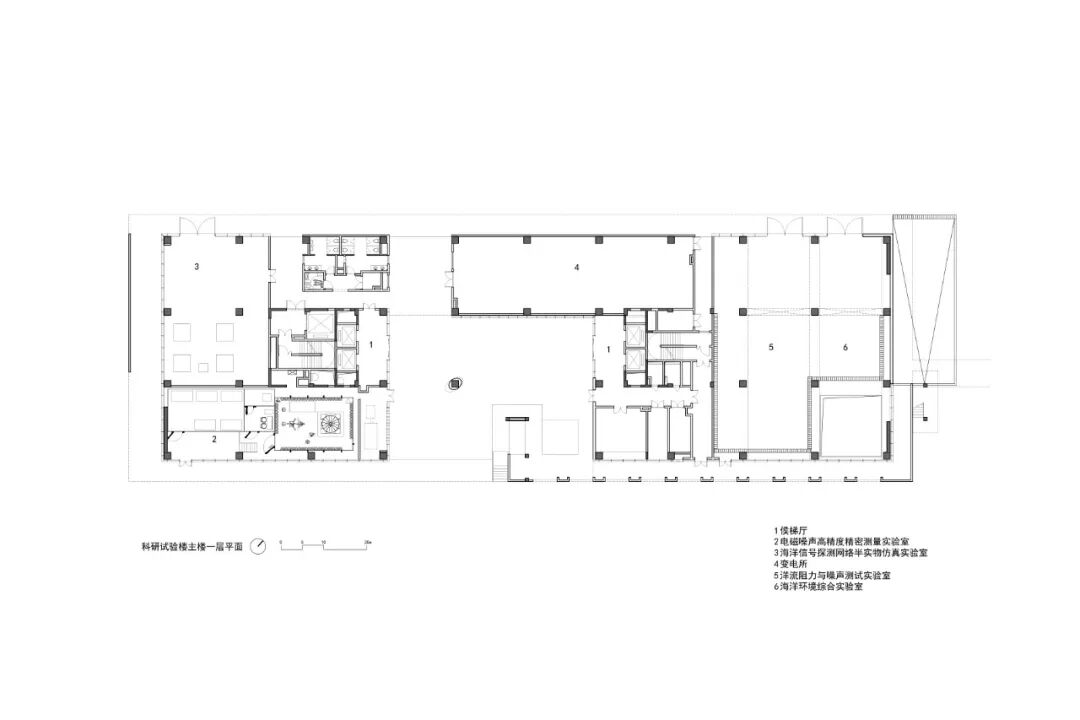
科研试验楼主楼一层平面©UAD
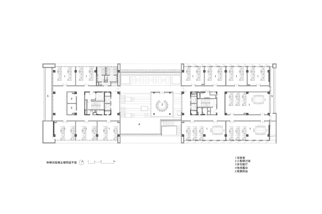
科研试验楼主楼四层平面©UAD
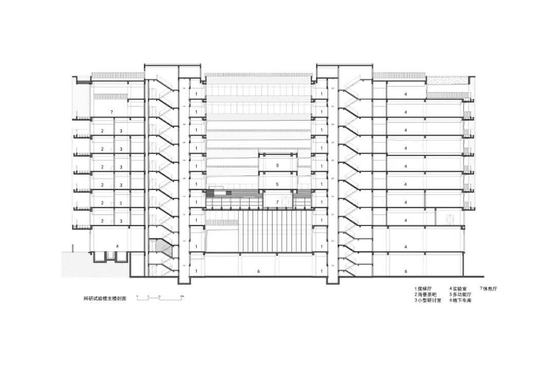
科研试验楼主楼剖面©UAD
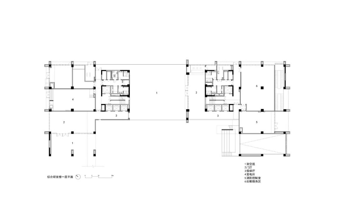
综合研发楼一层平面©UAD
综合研发楼六层平面©UAD
综合研发楼剖面©UAD
项目信息—
项目名称丨浙江大学(海南)先进技术与产业创新平台
项目业主丨三亚崖州湾科技城开发建设有限公司
设计单位丨浙江大学建筑设计研究院(UAD)
项目地址丨海南 三亚
建筑设计丨吴震陵、颜慧、赵博、张宇喆、许逸敏
结构设计丨潘加富、南晶晶、金鑫、叶芳芳
给排水设计丨汪奕贝、陈思源、周欣
电气设计丨丰建华、俞侃、朱继承
智能化设计丨李向群、袁骁男、孙超敏
暖通设计丨宁太刚、孙彪、朱思睿
幕墙设计丨陈栋、俞灏、章洁、黄淑娴
室内设计丨李静源、刘欣耘、张慈、卢晓凌、黄丽璇
软装设计丨丁怡
景观设计丨吴维凌、王洁涛、何颖、张雨晨、敖丹丹、姚海燕
照明设计丨陆丹雨、吕佳琪、郑龙、肖舒峥
岩土设计丨陈赟、杨勤锋、赵志远
建筑经济丨张瑛、孟睿覃、阮识翰、朱奕菲、费欢、帅朝晖
施工单位丨中建三局集团有限公司
工艺设计丨西安航天神舟建筑设计院有限公司
建筑摄影丨赵强
客服
消息
收藏
下载
最近






























