查看完整案例

收藏

下载

翻译
Architects:Abon Studio
Area:680m²
Year:2024
Photographs:Greg Cox
Manufacturers:Gassner,Go Green,Oggie Flooring
Category:Houses
Lead Team:James Mitchell
Design Team:Abon Studio
Structural Engineers:Thys van Rooyen Consulting
City:Hermanus
Country:South Africa
Text description provided by the architects. Perched along the rugged coastline of Hermanus, Coastal Dwelling is conceived as an architecture anchored in geology and horizon. Set on a slender 15 x 40 meter site framed by mountain backdrop and southern ocean views, the project responds directly to its elemental context.
The design narrative began with excavation. Solid coastal rock was carved away to recess the lower levels into the terrain, anchoring the home physically and visually. The extracted stone was then reintroduced as cladding and landscape elements, forming a protective skin that ties the building materially back to its site. This approach establishes a sense of permanence - as though the house has emerged from the ground rather than been placed upon it.
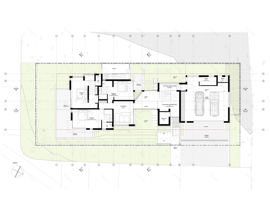
Organized across three levels, the dwelling negotiates exposure and shelter. The lower floor opens to a protected courtyard, offering privacy from wind and neighbouring properties. Above, the primary living level unfolds toward uninterrupted ocean panoramas. Expansive sliding panels dissolve the boundary between interior and exterior, while deep overhangs and timber screens modulate light and climate. Terraces and courtyards weave between built volumes, softening edges and creating layered outdoor moments.
A triple-volume circulation core forms the spatial heart of the home, drawing daylight deep into the interior through skylights and carefully positioned glazing. The staircase and lift act as a sculptural spine, connecting levels while framing selected views of sea and mountain.
Material restraint defines the architectural language: off-shutter concrete, timber, and natural stone weather gracefully against the coastal climate. Sliding timber shutters provide adaptability, allowing occupants to calibrate privacy, light, and exposure.
Coastal Dwelling explores the duality of Hermanus - mountain and sea, protection and horizon - crafting a home that is grounded in rock yet open to sky, in constant dialogue with the landscape beyond.
Project gallery
客服
消息
收藏
下载
最近






















