查看完整案例

收藏

下载

翻译
Architects:Kanisavaran Office
Area:470m²
Year:2025
Photographs:Mohammad Hassan Ettefagh
Manufacturers:FAD,Knauf
Lead Architects:Mohammad Kanisavaran
Category:Houses
Lead Team:Mohammad Kanisavaran
Design Team:Golnessa Mottahed, Fatemeh Ahmadieh, Atefeh Parandeh, Nastaran Nasri
Technical Team:Banafsheh Saghari
City:Tehran
Country:Iran
Text description provided by the architects. Nestled within the plains of Seyedabad, Damavand, this villa redefines the relationship between architecture and natural light, transforming it from a mere utility into the central protagonist of the living experience. The design orchestrates a daily performance where light, shadow, and form interact to mark the rhythm of time, offering a sanctuary of vibrant tranquility.
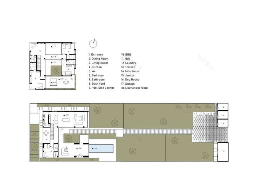
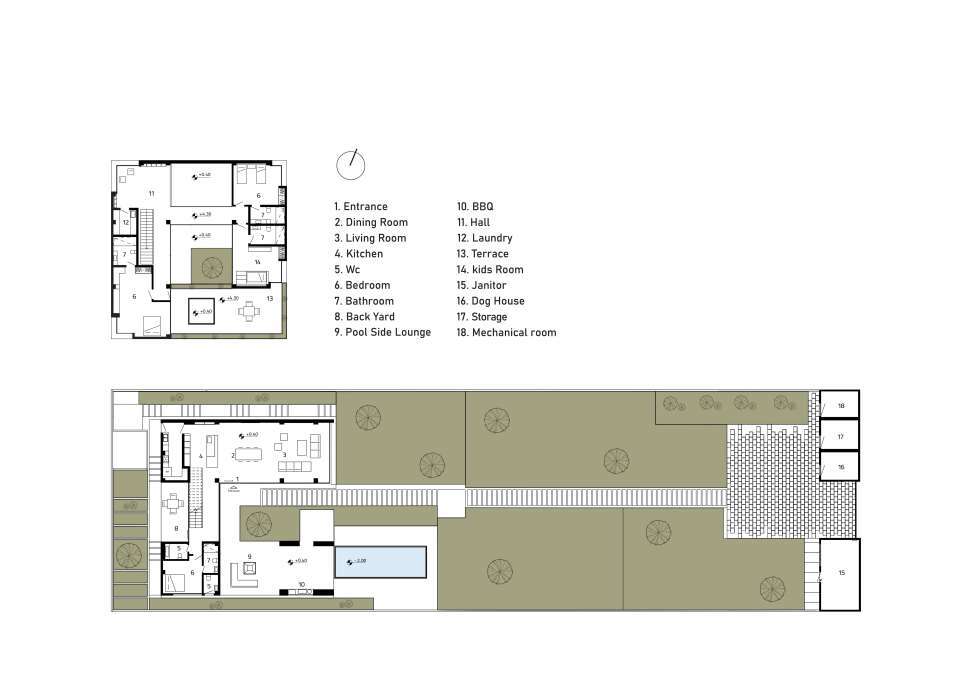
The project responds to a 1,650-square-meter east-west plot, with the core concept emerging from the interplay between site constraints and the aspiration to create a space pulsating with life. The client's brief sought a retreat that was both deeply connected to its environment and a sanctuary from it. The primary architectural challenge was to harness the powerful, defining light of the region while mitigating the area's strong winds, turning these elemental forces into integral components of the design.
The solution was found in a modern reinterpretation of the central courtyard. This courtyard is not merely a void but the active heart of the villa, a luminous core that organizes the entire spatial sequence. It draws light deep into the plan, creating a dynamic, multi-level dialogue between interior and exterior. The strategic placement of floor-to-ceiling windows at the four corners of the square volume functions as precise apertures, framing the dramatic sunrise and sunset throughout the year. The orientation and design of these openings align with prevailing winds to promote passive cooling and provide protection, seamlessly blending climate response with aesthetic intention.
Materially, the architecture presents a restrained palette, allowing the play of light and shadow to take center stage. The form initially appears as a classically symmetrical, protective shell—a singular volume standing resilient in the landscape. However, this initial perception is deliberately subverted upon closer engagement. The interior layout introduces a fluid equilibrium, where spaces oscillate between open, semi-open, and enclosed. This ambiguity creates a journey of discovery, where the true nature of the villa is only revealed through movement and occupation. The intersection of horizontal planes and vertical connections generates unexpected vistas and spatial experiences, with the climax felt when traversing the layered spaces around the central courtyard.
Ultimately, the villa's impact lies in its atmospheric quality. It is a building that offers its inhabitants a profound sense of peace, a silence filled with the vibrant narrative of light. It stands not as a static object, but as a dynamic backdrop for life, a testament to how architecture can frame the elemental to create a deeply resonant and human-centered environment.
Project gallery
客服
消息
收藏
下载
最近























