查看完整案例

收藏

下载
海门市(现已更名为江苏省南通市海门区)文化中心含剧院[1]及图书馆两项目[2] ,剧院位于核心区府南绿廊西侧,与江海博物馆、图书馆共同构成绿廊北区“品”字形公共文化集群。遵循府南片区上位规划,致力于打造“行政、文化、生态”三位一体的整体格局。通过中部打开与图书馆形成的视觉轴线以及压低檐口呈现的水平向韵律,一起营造出和而不同、共融共生的文化中心组群。
The Haimen Cultural Center (the city of Haimen has since been renamed Haimen District, Nantong City, Jiangsu Province) comprises two projects: a theater[1] and a library[2]. The theater is situated west of the Funan Green Corridor core area. Together with the Jianghai Museum and the library, it forms a “pin”-shaped (triangular) public cultural cluster in the northern section of the green corridor. Adhering to the upper-level planning for the Funan district, the project strives to establish an integrated pattern unifying “administration, culture, and ecology.” The visual axis created by opening up the central area towards the library, combined with the horizontal rhythm generated by the lowered eaves, collectively fosters a cultural center complex that embodies harmony in diversity and integrated symbiosis.
▼西向全景,West Panoramic View © 时差影像
▼东南鸟瞰,Southeast Aerial View © 时差影像
▼剧院与绿廊湖面,Theater and Green Corridor Lake View © 时差影像
项目包含1200座大剧场、400座多功能百姓剧场、艺术剧团和配套商业四大部分。同样以地方传统民居四汀宅为原型,形成紧凑集约、圈层分区、分时运营的院落式布局:将大剧场、小剧场、剧团等空间布置于靠近城市与公园的外围区域,而将需要服务各区的影城与商业空间布置在大剧场观众厅升起形成的台地和空中广场的下部,构建起从地面至屋面,紧凑、集约、有序的空间场景。公众可无阻碍地四向穿行场地,或于台地上眺望绿廊、坐下游憩,或通过光影斑驳的冷巷与门廊入室观看演出。剧场前厅的屋顶天窗可自然采光、通风与排烟,利用数字工具实现与钢结构精准共构的跳色拼花石材以及吊挂式全玻幕墙系统,共同促成了这座建筑的高品质完成。
▼项目区位:江海之滨,Project Location: Riverside of the Yangtze © 东南大学建筑设计研究院有限公司
▼“三位一体”的滨江低密度生态绿廊&“行政、文化、生态”三位一体的整体格局,The “Trinity” Low-Density Riverside Ecological Green Corridor & The Integrated “Administration, Culture, Ecology” Urban Pattern © 东南大学建筑设计研究院有限公司
The program comprises four main components: a 1200-seat main theater, a 400-seat multi-purpose public theater, an art troupe area, and associated commercial facilities. Drawing inspiration from the local vernacular “Sitingzhai” (courtyard house) prototype, the design employs a compact, intensive, and zoned courtyard layout that facilitates time-shared operation. Key programmatic elements—the main theater, the small theater, and the troupe spaces—are positioned on the periphery adjacent to the city and park. In contrast, the cinema and commercial spaces, which serve all zones, are located beneath the terraced platform formed by the raked seating of the main theater and the elevated public plaza above. This creates a sequence of compact, intensive, and orderly spatial experiences transitioning from ground level to rooftop. The public can navigate the site unimpeded from all four sides, whether gazing out over the green corridor from the terraces, resting, or entering the building for performances via the light-dappled “lengxiang”^3 and porches. The roof skylight in the theater foyer allows for natural lighting, ventilation, and smoke exhaust. The high-quality execution of the building is furthered by digitally coordinated, color-blocked stone cladding that integrates precisely with the steel structure, and a suspended full-glass curtain wall system.
▼东北全景,Northeast Panoramic View © 时差影像
▼西向全景,West Panoramic View © 时差影像
▼南入口全景,South Entrance Panoramic View © 时差影像
共生共融:在宏观层面,建筑体量沿绿廊南北向延展,清晰有力地界定了城市公共空间的边界。通过一个与图书馆对望的“景框”,构建贯通东西的视觉通廊,与南北向生态绿轴共同形成片区的十字空间架构,实现了建筑与城市脉络的深度耦合。在中微观层面,借鉴本地“四汀宅”的合院形制,围合出内向静谧的庭院,闹中取静。特别设置的6米标高二层“城市阳台”,成为关键的立体连接器:向北无缝衔接大剧院主门厅,向南直通百姓剧场,不仅高效组织立体人流,也提供了一个可俯瞰整个绿廊全景的公共观景平台,实现功能与体验的复合。
▼南北长向绿廊界面与灵动的天际线,North-South Elongated Green Corridor Interface and Dynamic Skyline © 东南大学建筑设计研究院有限公司
Symbiosis and Integration: At the macro level, the building volume extends north-south along the green corridor, clearly and powerfully defining the edge of the urban public space. A strategically placed “picture frame” framing the view towards the library establishes an east-west visual axis, which, together with the north-south ecological spine, forms the cross-shaped spatial framework for the district, achieving a deep integration of architecture and urban fabric. At the meso and micro levels, the design references the local “Sitingzhai” courtyard typology, creating an inwardly focused, tranquil courtyard that offers respite from the urban bustle. A particularly crucial element is the “Urban Balcony,” a second-floor terrace at the 6-meter level that functions as a key vertical connector. It seamlessly links northward to the main theater foyer and southward to the public theater, efficiently organizing vertical circulation while providing a public viewing platform overlooking the entire green corridor, thereby synthesizing function and experiential quality.
▼东入口广场近景,East Entrance Plaza Close-up © 时差影像
▼东入口广场近景,East Entrance Plaza Close-up © 时差影像
▼空中音乐广场全景,Aerial Music Plaza Panorama © 时差影像
▼空中音乐广场南望小剧院入口,View South from Aerial Music Plaza towards Small Theater Entrance © 时差影像
▼西入口近景,West Entrance Close-up © 时差影像
开放共享:设计通过多层次台地和面向城市的空中音乐广场,以开放姿态消弭建筑与城市的边界,吸引并容纳市民自由活动。一条可穿行的公共内街将剧场、剧团、商业等业态有机串联,使文化体验融入市民日常休闲动线之中。公众可无阻碍地四向穿行于场地,或于台地上眺望绿廊、坐下游憩,或通过光影斑驳的内街与门廊进入室内观看演出,强化建筑的公共性。
▼视觉通廊与城市轴线,Visual Corridor and Urban Axis © 东南大学建筑设计研究院有限公司
▼口字形院落形制,“Kouzi”-shaped (Enclosed) Courtyard Typology © 东南大学建筑设计研究院有限公司
▼空中广场眺望周边城市景观,View of Surrounding Cityscape from the Aerial Plaza © 东南大学建筑设计研究院有限公司
▼空中广场眺望周边城市景观,View of Surrounding Cityscape from the Aerial Plaza © 东南大学建筑设计研究院有限公司
Openness and Sharing: Through the use of multi-level terraces and the city-facing Aerial Music Plaza, the design adopts an open posture that dissolves the boundary between building and city, attracting and accommodating spontaneous public activities. A publicly accessible interior street organically links the theater, troupe spaces, and commercial functions, integrating cultural experiences into the daily leisure routes of citizens. The public can traverse the site unimpeded from all sides, whether lingering on the terraces overlooking the green corridor or entering the building for performances via the light-dappled interior street and porches, thereby reinforcing the building’s public character.
▼东局部夜景,East Facade Night View © 时差影像
▼内街近景,Interior Street Close-up © 时差影像
▼西入口局部,West Entrance Detail © 时差影像
▼西向近景,West Facade Close-up © 时差影像
▼内街近景,Interior Street Close-up © 时差影像
遮阳避雨:结合当地夏热冬冷的气候特征,遮阳避雨作为重要的公共场所考量。环绕空中音乐广场与起伏台地的大进深檐下灰空间,以及建筑体量所自然形成的遮蔽区域,能够有效应对日照与雨水,为各种市民活动提供全天候、全季节的户外庇护所,极大增幅了公共空间的使用时间与舒适度。
▼檐下空间避雨遮阳,Eave Space Providing Shelter from Rain and Sun © 东南大学建筑设计研究院有限公司
▼台地空间与空中广场,Terraced Spaces and Aerial Plaza © 东南大学建筑设计研究院有限公司
▼紧凑布局 多元业态,Compact Layout, Diverse Programs © 东南大学建筑设计研究院有限公司
Shelter from Sun and Rain: Responding to the region’s hot-summer and cold-winter climate, providing shelter from sun and rain was a key consideration for public space usability. The deep overhanging eaves surrounding the Aerial Music Plaza and undulating terraces, along with other naturally shaded areas formed by the building’s massing, effectively mitigate solar radiation and precipitation. These spaces offer all-weather, year-round outdoor refuge for various public activities, significantly enhancing the usage time and comfort of the public realm.
▼西入口近景,West Entrance Close-up © 时差影像
▼小剧场门厅外景,Small Theater Foyer Exterior View © 时差影像
▼空中音乐广场,Aerial Music Plaza © 时差影像
▼商业入口近景,Commercial Entrance Close-up © 时差影像
▼商业入口近景,Commercial Entrance Close-up © 时差影像
▼小剧场门厅,Small Theater Skybridge © 时差影像
多元可变:为实现内部空间集约高效与灵活适应的核心目标,设计通过一系列集成化技术手段予以支撑。1200座主剧场采用包括机械升降舞台(主台升降、侧台平移)、智能自动光控系统,以及多种数字软件的集成运用,使舞台与观众席得以实现快速、精准的灵活调整,实现演出模式在音乐会、话剧、舞剧、儿童剧、戏曲、脱口秀等多元场景间的切换。这不仅满足了从高标准专业演出到地方特色活动的广泛需求,更确保剧院在视觉与声学上的优质效果,最终极大提升场馆的运营效率与社会效益。
▼大剧场空间模拟效果,Main Theater Spatial Simulation © 东南大学建筑设计研究院有限公司
▼大剧场观众席视觉设计,Main Theater Audience Sightline Analysis © 东南大学建筑设计研究院有限公司
▼大剧场声学仿真设计,Main Theater Acoustic Simulation © 东南大学建筑设计研究院有限公司
Flexibility and Adaptability: Achieving efficient internal space utilization and flexible adaptability was a core design objective, supported by a series of integrated technical strategies. The 1200-seat main theater incorporates mechanized stage systems (e.g., lifting main stage, sliding side stages), an intelligent automated lighting control system, and the integrated application of various digital software. These allow for rapid and precise reconfiguration of the stage and auditorium, enabling seamless transitions between diverse performance modes such as concerts, dramas, dance performances, children’s plays, traditional Chinese opera, and stand-up comedy. This meets a wide range of demands from high-standard professional performances to local community events, while ensuring optimal visual and acoustic quality, ultimately maximizing the venue’s operational efficiency and social benefits.
▼大剧场观众厅,Main Theater Auditorium © 时差影像
▼大剧场观众厅,Main Theater Auditorium © 时差影像
▼小剧场观众厅,Multi-purpose Small Theater Auditorium © 时差影像
数字技术与地域表达:建筑整体意象取自江海之滨的礁石,充满力量与在地感。外墙采用了参数化设计跳色石材技术,通过精准控制三种暖色石材的尺寸、比例与拼接逻辑,在立面上形成斑驳有致的肌理,抽象再现当地“砺蚜山”景观的嶙峋形态与江海潮汐冲刷的视觉记忆。这一数字建造与地域意象的结合,不仅强化了文化建筑的独特韵味,其丰富肌理在夜景照明下更显生动。
Digital Technology and Regional Expression: The overall architectural imagery draws inspiration from the rocky reefs along the riverside, conveying a sense of tectonic force and site-specificity. The exterior cladding utilizes parametrically designed, variegated stone technology. By precisely controlling the dimensions, proportions, and assembly logic of three warm-toned stone types, a dappled texture is formed on the facade. This technique abstractly reconstructs the craggy morphology of the local “Liya Mountain” landscape and the visual memory of tidal scouring along the river. This integration of digital fabrication and regional imagery not only accentuates the distinctive character of the cultural building but also makes its rich texture appear even more dynamic under nighttime lighting.
▼北附属入口近景,North Ancillary Entrance Close-up © 时差影像
▼西入口局部,West Entrance Detail © 时差影像
建筑师主导气候适应性设计:通过将建筑体形系数精准控制在0.15,远优于夏热冬冷地区的地方标准,从形态源头大幅降低能耗负荷;同步严格控制各立面窗墙比不超过0.50,显著低于规范限值,有效减少外围护结构的热损失。在空间与细部层面,于剧院公共区域集中设置天窗,实现自然采光与通风,降低照明与空调能耗;通过组织多层次室外庭院与檐下灰空间,夏季引导东南风渗透场地、冬季阻挡西北冷风,形成可调节微气候的缓冲体系,并利用形体自遮阳优化室内光热环境。最终,结合高气密性、无热桥的外围护结构设计与施工,共同构成一套由建筑形态、空间组织与构造技术协同作用的高性能节能系统。
▼夏季过渡季:形体汇聚、引导东南主风,Summer/Shoulder Seasons: Form Channels and Directs Southeast Breezes © 东南大学建筑设计研究院有限公司
▼冬季:形体阻挡西北主风向冷风向,增强场地通风,Winter: Form Blocks Northwest Winds, Enhancing Site Ventilation © 东南大学建筑设计研究院有限公司
Architect-Driven Climate-Adaptive Design: The building’s form factor is precisely controlled to 0.15, significantly outperforming the local standard for the hot-summer/cold-winter zone, thereby substantially reducing energy loads from the morphological outset. Window-to-wall ratios on all facades are strictly maintained below 0.50, notably lower than code limits, effectively minimizing heat loss through the building envelope. At the spatial and detail level, skylights are strategically placed in the theater’s public areas to enable natural daylighting and ventilation, reducing lighting and HVAC energy consumption. The organization of multi-level outdoor courtyards and shaded spaces beneath eaves creates a buffer system that facilitates the penetration of prevailing southeast breezes through the site in summer and blocks cold northwest winds in winter, allowing for microclimate modulation. This is further enhanced by the building’s self-shading geometry, optimizing the indoor luminous and thermal environment. Ultimately, this integrated approach, combined with a highly airtight, thermal-bridge-free envelope design and construction, constitutes a high-performance energy-saving system where architectural form, spatial organization, and construction technology work synergistically.
▼大剧场门厅,Main Theater Foyer © 时差影像
▼大剧场门厅,Main Theater Foyer © 时差影像
▼小剧场门厅,Small Theater Foyer © 时差影像
项目于2021年正式开放运营。其灵活可变的空间系统已得到有效验证,大剧场达到周均开放三场以上的活跃度,影城与小剧场的使用则更为频繁,真正成为市民喜爱的“城市客厅”,持续为地区注入文化活力。
The theater officially opened in 2021. Its flexible spatial systems have proven effective, with the main theater achieving an active schedule of over three performances per week on average, and the cinema and small theater seeing even more frequent use. It has genuinely become a beloved “urban living room” for citizens, continuously infusing the area with cultural vitality.
▼大剧场排练厅,Main Theater Rehearsal Room © 时差影像
▼墙身节点大样,Wall Section Detail © 东南大学建筑设计研究院有限公司
▼墙身节点大样,Wall Section Detail © 东南大学建筑设计研究院有限公司
▼总图,Master Plan © 东南大学建筑设计研究院有限公司
▼一层平面,First Floor Plan © 东南大学建筑设计研究院有限公司
▼二层平面,Second Floor Plan © 东南大学建筑设计研究院有限公司
▼东、北立面,East and North Elevation © 东南大学建筑设计研究院有限公司
▼西、南立面,West and South Elevation © 东南大学建筑设计研究院有限公司
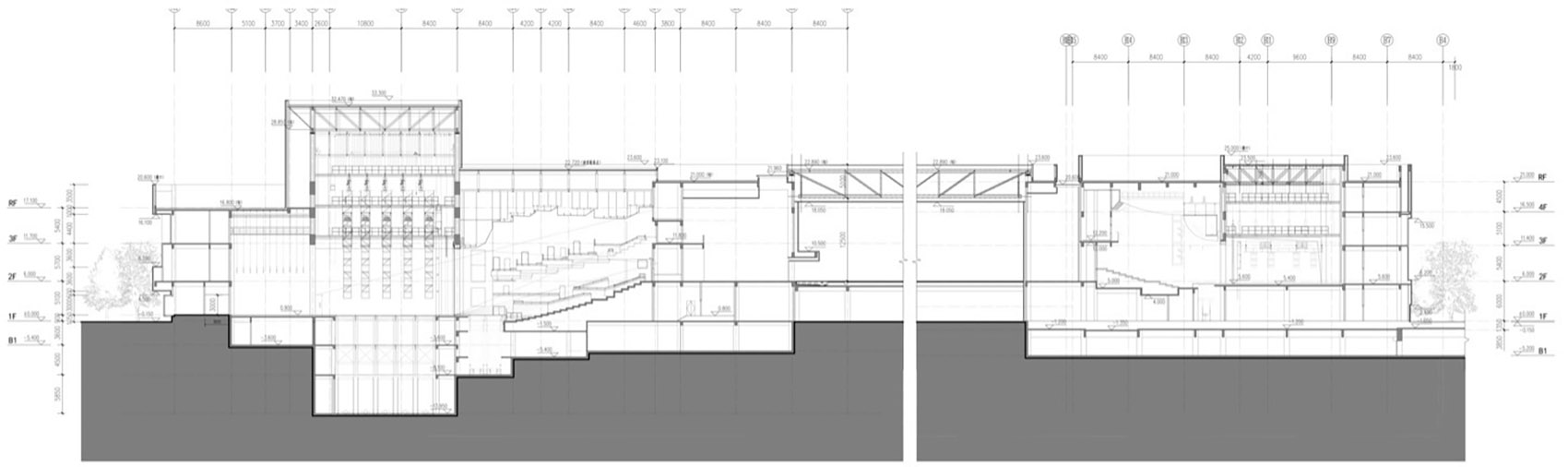
▼剖面1、2.,Section 1, 2 © 东南大学建筑设计研究院有限公司
▼剖面3、4,Section 3, 4 © 东南大学建筑设计研究院有限公司
[1] 项目设计时海门为县级市,现已并入南通市,为南通市海门区。
[2]剧院及图书馆均由我司(东南大学建筑设计研究院有限公司)设计,本次发表为剧院项目。
[1] At the time of design, Haimen was a county-level city. It has since been incorporated into Nantong City as Haimen District.
[2] Both the theater and the library were designed by our firm (Architects & Engineers Co., Ltd. of Southeast University). This publication focuses on the theater project.
工程档案
项目名称:海门市文化中心-剧院项目/Haimen Cultural Center: Theater Project
设计单位:东南大学建筑设计研究院有限公司/Architects & Engineers co.,ltd of Southeast University
主创建筑师:高庆辉
项目负责人:高庆辉 袁玮
方案设计:高庆辉 刘腾霄 袁伟俊
初设及施工图设计:穆勇、刘腾霄、吴文竹、万小梅、袁伟俊(建筑);韩重庆、李亮、曹志亮(结构);贺海涛、黄河(给排水);王玲、丁惠明(暖通);周桂祥(电气);臧传国(智能);路苏荣、周意(景观);高庆辉、余阳天、李桢、刘腾霄(室内);沈燕(绿建);史旭辉(经济)
地点:江苏省南通市海门区
设计时间:2018-2019年
竣工时间:2023年
基地面积:3.95公顷
建筑面积:4.77万平方米
结构形式:钢筋混凝土框架-剪力墙结构体系+局部大跨度钢梁结构
声学设计:杭州智达建筑科技有限公司
舞台工艺设计:上海锋尚世纪工程设计有限公司
摄影:时差建筑影像
Project: Haimen Cultural Center: Theater Project
Design: Architects & Engineers Co., Ltd. of Southeast University
Principal Architect: Gao Qinghui
Project Leaders: Gao Qinghui, Yuan Wei
Schematic Design Team: Gao Qinghui, Liu Tengxiao, Yuan Weijun
Leader designer & Team: – Architecture: Mu Yong, Liu Tengxiao, Wu Wenzhu, Wan Xiaomei, Yuan Weijun – Structure: Han Chongqing, Li Liang, Cao Zhiliang – Water Supply & Drainage: He Haitao, Huang He – HVAC: Wang Ling, Ding Huiming – Electrical: Zhou Guixiang – Intelligent Systems: Zang Chuanguo – Landscape: Lu Surong, Zhou Yi – Interior: Gao Qinghui, Yu Yangtian, Li Zhen, Liu Tengxiao – Green Building: Shen Yan – Economics: Shi Xuhui
Location: Haimen District, Nantong City, Jiangsu Province, China
Design Period: 2018–2019
Completion Date: 2023
Site Area: 3.95 hectares
Gross Floor Area: 47,700 m²
Structural System: Reinforced concrete frame–shear wall structure with localized large-span steel beams
Acoustics Consultant: Hangzhou Zhida Building Technology Co., Ltd.
Stage Technology Designer: Shanghai Fengshang Century Engineering Design Co., Ltd.
Photography: Timeraw
客服
消息
收藏
下载
最近




























































