查看完整案例

收藏

下载
在场,是事情正在发生的状态。在消费之外,商业空间重新被期待变成真实情节的发生现场,不断被看见、被使用、被分享。© 具场
ON-SITE refers to a condition in which things are actively happening. Besides the consumption behavior, physical commercial spaces are being re-expected to be real situation spaces that are continuously seen, used, and shared.
▼外立面,Facade© In
在场的日常|慢生活与快商业
ON-SITE Daily Life | Where slow living meets fast commerce
愚园路承载着两种并存的城市性格:梧桐树荫下的缓行、不同年代的建筑,以及不断更新的生活状态;同时通勤、商业与社交活动交织叠加,使街区始终保持着克制而有张力的繁忙。
Yuyuan Road embodies two parallel urban characters: the slow pace beneath plane trees, buildings from different eras, and ways of living that continue to evolve. At the same time, commuting, commerce, and social activities overlap, keeping the street in a dynamic state of activity.
▼老社区中的新日常,New routines in the old community© ouyang
设计通过对空间、工艺与体验的重新组织,回应这里的时间感与生活气质,在品牌表达与社区生活之间建立一种自然的连接。
Design responds to Yuyuan Road’s specific sense of time and lived atmosphere, through a reorganization of space, craft, and experience, and establishes connection between brand expression and community life.
▼沿街窗口,Street-facing windows© In
▼树影中的烘豆工坊,Coffee Bean Roasting in the shade of trees© 几木
在场的体验|不只是消费
ON-SITE Experience| More than consumption
作为三立方首家线下体验店,更强调体验、交流与品牌认同的建立。在业态上融合面包制作、咖啡豆烘焙、咖啡制作和会员交流场景,对街道既有生活结构进行补充。
▼空间布局,Space planning© 具场
As the brand’s first offline experiential store, it emphasizes experience, interaction, and the formation of brand identity. The program brings together bread-making, coffee bean roasting, coffee preparation, and member exchange, supplementing the existing everyday structure of the street.
▼面包售卖区,Bread sales area© In
▼现场手作区,Handcraft station© In
▼烘豆工坊,coffee bean roasting© In
▼从台阶看烘豆工坊,Viewing coffee bean roasting from the stairs© 几木
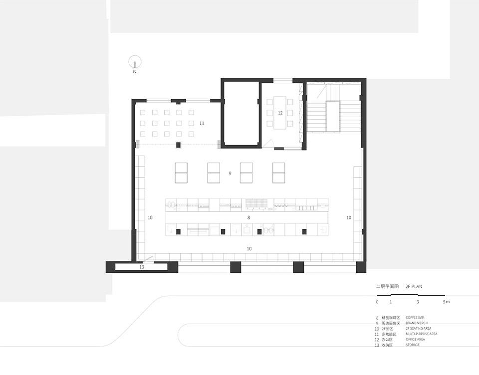
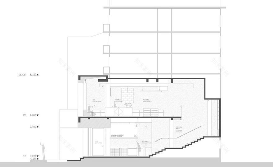
在功能足够丰富的前提下,设计的重点在于如何以“制作过程”为亮点,用最清晰高效的方法将这些内容组织在一起。一层是烘焙厨房和烘豆工坊,二层则以12米长的咖啡吧台为核心,围绕交流空间与积分兑换区。从原料处理、烘焙到出品,变成一个制作、体验和交流在持续发生的生活场景。
With a rich program in place, the key challenge is to organize these elements through a clear and efficient spatial logic. The ground floor contains Baking Kitchen and Roasting Workshop; The second floor is centered around a 12 - meter - long coffee bar, surrounded by the communication and product exchange area. From raw material processing, baking to final presentation, it becomes a continuous living scene of production, experience, and communication.
▼楼梯与存豆区,staircase and bean storage© ouyang
▼楼梯间,staircase © 几木 & In
▼长凳与窗景,Bench and Window View© Ouyang
▼二层空间,Second floor space© In
▼12米咖啡吧台界定空间,12-meter-long coffee bar defines the space© In
▼咖啡吧台,coffee bar© In
在场的空间|通过差异,让秩序出现
ON-SITE Space | Order emerges through contrast
第一层面来自于流动的街道、老建筑日常和新生活方式的关系,三种界面同时在场,形成一种有张力的日常结构。一层沿街立面采用可变换的玻璃推拉门系统,使空间边界随使用方式进行调节。
▼沿街立面的三种状态,3 States of the Facade© 具场
The first level stems from the relationship among flowing streets, daily life in old buildings, and new lifestyles. The coexistence of three interfaces creates a daily structure with tension. The facade along the street adopts a transformable sliding glass door system, allowing the spatial boundaries to be adjusted according to the mode of use.
▼街旁歇脚处、入口,Streetside resting spots, entrances© In
第二层面体现在粗粝与精密的共存。空间还原最原本的建筑状态,用混凝土和砖来呈现时间的厚度与使用痕迹;新置入的门窗、扶手与道具则以新的材料介入,放大差异形成清晰的秩序。
The second is the coexistence of roughness and precision. The space follows the building’s original condition, using concrete and brick to reveal time, material weight, and traces of use. Newly installed doors, windows, handrails, and props incorporate new materials, amplifying differences and creating a clear order.
▼咖啡吧台,Coffee bar© In
▼临窗坐区,Seating area by the window© In
▼临窗过道,Window-side passage© ouyang
另外,精密的工业设备(KEES 六头咖啡机、PROBAT烘焙机等)与手工炭烤炉、传统手冲咖啡并行存在,不同感受的制作行为让体验可被观看、理解和传播。
In addition, highly precise industrial machines, the six-group KEES coffee machine and Probat roasting equipment, coexist with hand-built charcoal ovens and traditional pour-over methods. The act of creating with different feelings allows the experience to be viewed, understood, and disseminated.
▼粗粝空间中的精密机器,Precision machine in the rugged space© In
在场的系统 | 可以被编辑的场景
ON-SITE System | A scenecan be edited
当下的商业空间被看作一个可持续更新的系统,在场也是一种可编辑、迁移、随环境变化的状态。项目采用可快速拆装的空间道具体系,所有吧台、货柜和坐凳均由标准模块组成,可根据不同运营阶段的需求重组,在长期使用中提高复用频率。▼吧台模块研究,Single module research© 具场
Current commercial space is understood as a system for long-term use and renewal. On-site describes a condition that can be edited, relocated, and continuously reactivated in response to changing contexts. The project adopts a rapidly demountable modular fixture system. All counters, display units, and seating elements are composed of standardized modules that can be reconfigured according to different operational phases, and improving reuse over time.
▼现场安装过程,on-site installation process© 具场+In
▼现场安装过程,On-site installation process© 番外木器
标准模块的研发试图囊括咖啡与面包业态会出现的场景,在同一结构下,预留不同设备的接口条件,当场地和业态发生调整、设备更新或视觉需求更替时,也可通过更替功能构件和表面材料适应新的使用需求。在实施层面,实木多层板与金属材料核心组件在工厂内加工预制,到达现场后进行模块的快速组装,接入水电系统即可投入使用。
▼12米咖啡吧台及周边场景组建,Construction of 12 - meter coffee bar counter and surrounding scenery© 具场
Within a unified structural system, multiple equipment interfaces are reserved, allowing future adjustments—whether changes in program, equipment upgrades, visual language, or even relocation—to be addressed through the replacement of worktops, facade panels, and functional components.In terms of construction, the core components made of plywood and metal are fabricated and pre-assembled in the factory, then quickly installed on site. Once connected to utilities, the space is ready for immediate use.
▼构件组装,Component assembly© In
一切都在现场发生
Everything Happens on Site
空间中弱化常规桌椅的固定摆放,将更多可能性让渡给人的使用方式,随意停留和坐下。松弛感正是源于真实使用所留下的痕迹,那些被观看、被触碰、被消耗的过程。
Inside, conventional fixed seating is deliberately minimized, allowing for more possibilities in terms of people’s usage, such as stopping and sitting down at will. A sense of ease emerges from traces of real use – the processes that are seen, touched, and consumed.
▼傍晚的街道,Street at night© In
▼长凳转角处,corner of the bench© In
▼多功能区,multifunction area© ouyang
每一杯咖啡的生产、消费与交流在同一场景中并置,顾客从消费者转变为过程的参与者与分享者。这种混合体验可以变成街道生活的一部分,而非被孤立的商业单元,也契合创邑街区“生活即文化”的精神。
The coffee’s production, consumption, and social exchange occur within the same scene, shifting visitors from consumers to participants and sharers of the process. This hybrid experience becomes part of street life rather than an isolated commercial unit, resonating with the “life as culture” ethos of the Yuyuan Road Creative Community.
▼立面与街道,Facade and street© In
▼一层平面图,1F plan© 具场
▼二层平面图,2F plan© 具场
▼外立面图,facade© 具场
▼室内东立面,east elevation interiors© 具场
▼室内西立面,west elevation interiors© 具场
▼立面节点,details© 具场
项目名称:三立方愚园路店
项目类型:建筑改造/商业零售空间设计/道具设计
设计方:具场
项目设计:2025.03-2025.07
完成年份:2025.12
设计团队:罗霜华、欧阳彦权
项目地址:上海市长宁区愚园路1429号
建筑面积:400㎡
摄影版权:In、几木、ouyang
合作方:周津、In(业主方设计师)、上海迪拓实业有限公司(施工方)、潍坊番外木器有限公司(道具制作/安装)
客户:三立方咖啡
材料:实木多层板、罗非岩涂料、火烧钢板、混凝土、耐火砖、不锈钢
品牌:segezha、莫兰迪
Project name:CUBIC 3 Yuyuan Road
Project type:Architecture Renovation/Commercial retailing space design/prop design
Design:JUCHANG
Design year:2025.03-2025.07
Completion Year:2025.12
Leader designer & Team:Luo Shuanghua, Ouyang Yanquan
Project location: No.1429 Yuyuan Road, Changning, Shanghai
Gross built area: 400㎡
Photo credit: In, Jimu, ouyang
Partner:Zhou Jin, In(Designer from CUBIC 3),Shanghai Dituo Industrial Co., Ltd(Engineering),FUNWARE(Prop production/installation)
Clients:CUBIC 3 COFFEE
Materials:Solid wood multi-layer board, rock paint, steel plate, concrete, refractory brick
Brands:segezha、Morandi
客服
消息
收藏
下载
最近















































