查看完整案例

收藏

下载
地址:兴隆家园
设计施工单位:久栖设计
面积:40㎡
造价:15万
风格:简约中古风
说在前面:
这是业主小姐姐的第一套房子,未来希望还可以当做婚房来使用。虽然面积很小,但还是对未来改造充满期待。由于空间整体比较小,所以在设计上希望能够合理的利用开敞的格局,弱化空间的局促感,实现通透明亮的居住环境。
屋主自己的物品也比较多,希望增加充足的收纳,避免久住后显得杂乱。
客厅用原木地板搭配奶白墙,像杯温润的燕麦奶茶,简约却暖到心坎里。焦糖色布艺沙发往中间一瘫,黑色小方柜轻轻点缀,让客厅透着一股舒服与松弛。
格子折叠玻璃窗做隔断,划分空间布局的同时,让小客厅显大又通透。
观影区用带滑轮的铁艺支架,取代笨重电视墙,省钱还甩掉厚重感。吃饭时拉近追剧,不看时推开腾地儿,灵活观影爽到飞起!
走廊连接玄关和客厅,利用转角结构定制满墙储物柜。
柜子嵌入式设计不占过道空间,两侧一门到顶中间预留两组大抽屉,满足储物的多样性。黑色细拉手简洁利索,避免走动时磕碰。
客厅与阳台一体化布局,搭配通铺的木地板,让小户型偷出大平层的敞亮感。垭口处立靠了一面穿衣镜,可以折射增强空间延展性。
焦糖色的沙发背靠在白色吧台,开放式的布局,让空间通透翻倍。
厨房拆除了隔断墙,用半墙高吧台进行划分,中间零遮挡。下厨、看电视、互动全在一眼之内,完美解决小户型的拥挤和局促感。
阳台用滚轮圆桌和单椅组成休闲角,可以根据需求随便挪移,轻盈感拉满还不占地儿。阳光透过白纱帘,变成柔光滤镜,营造出一抹慵懒与惬意。
阳光透过白纱帘洒在木地板上,绿植给予空间生机感。整个角落像按了暂停键的咖啡厅,凹出松弛的氛围感。
厨房采用U型布局,搭配一字型吧台,高低台设计充分发挥空间利用率。洗衣机塞进橱柜,家务活一条龙搞定,小空间榨出双倍功能。
吧台侧面定制一排木质开放格,可以囤放厨房纸、保鲜膜等物品,还能当作零食架使用。
卧室选用黑色格子框玻璃门,冰裂纹理阳光一照还能在地上投出漂亮的光斑。透光又朦胧的特质,像加了一层柔光滤镜,颜值和隐私性都不能少。
卧室整个空间以奶白色打底,搭配原木色点缀,像一杯温热的燕麦奶茶。黑色细框玻璃窗,勾勒利落线条,营造出一种极简的静谧感。
卧室折叠的玻璃窗,打开时秒变开放式大通间,采光和通风效果拉满。关起来独特的冰裂纹理,营造一抹朦胧美。采光、分区、氛围感,一扇折叠窗轻松搞定。
推开窗让阳光温柔地漫进房间,站在窗外望向卧室,仿佛在欣赏一幅静物画,宁静得让人想驻足片刻。
玄关选用一款超薄鞋柜,悬浮式设计紧贴墙面。多个立式抽屉存放鞋子,45°倾斜开合特别省地儿,让1m宽的过道也能整洁不压抑。
卫生间地面用复古花砖铺贴,墙面用浅绿色与奶油色瓷砖进行半墙拼接,像奶茶配了层焦糖挂壁,防水又耐看,整体色调暖乎乎的。
卫生间用黑色细框门和银色圆镜悄悄呼应,绿浴帘一抹跳色提气,让小小的空间盈满不张扬的怀旧氛围。
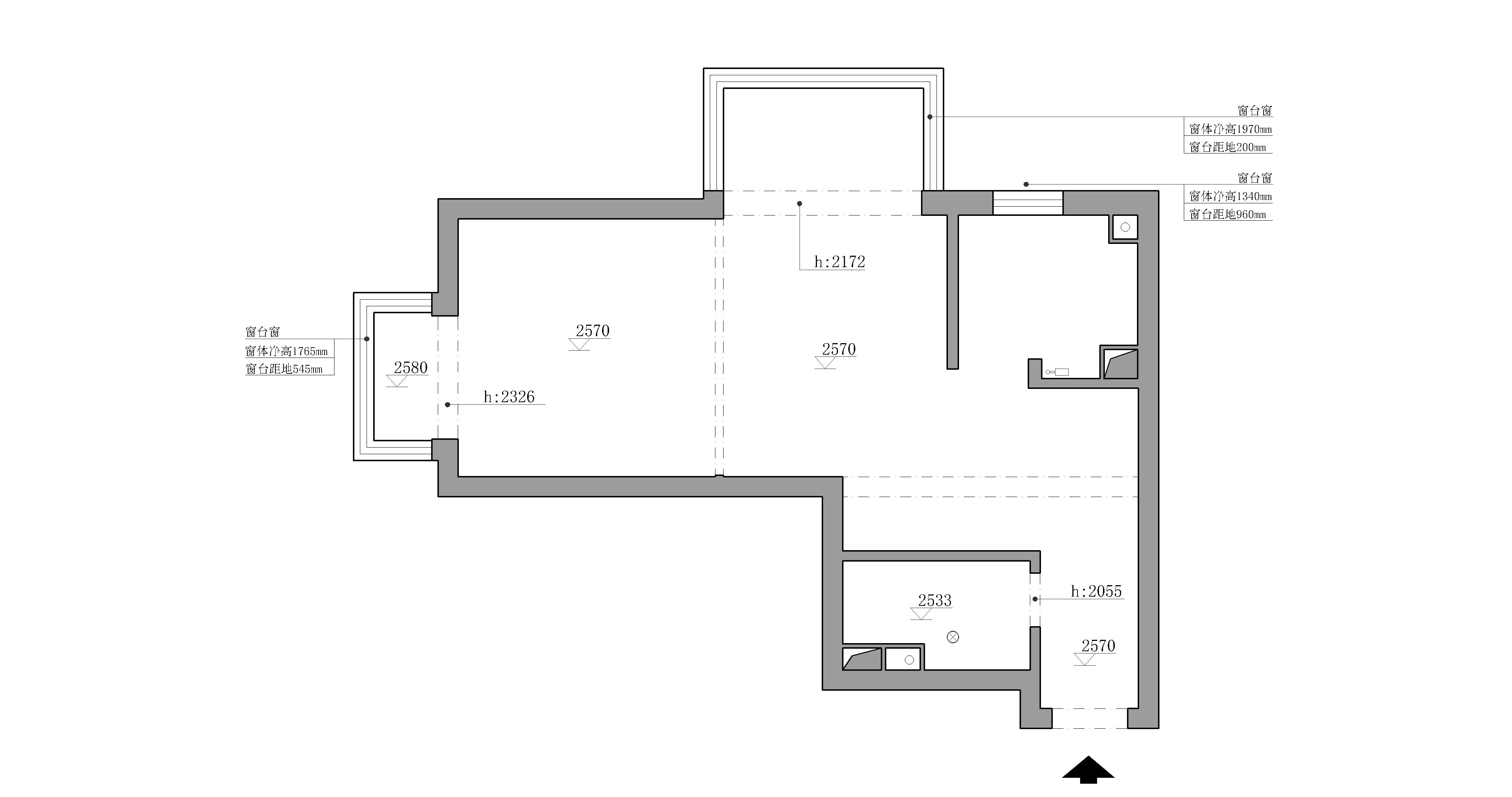
改造前:
1.玄关与走廊的动线占据了一定空间,需要合理的充分利用起来扩容收纳。
2.封闭的厨房比较压抑,空间不大需要满足各类功能,会显得十分拥挤。
3.开间部分没有明确的空间划分,功能分布时还要注意采光是否受影响。
改造后:
1.玄关贴墙增加一组超薄鞋柜,并在走廊处定制一组满墙储物柜,提供充足的收纳所需。
2厨房拆除隔断墙,用半墙吧台做隔断划分,增强视野的通透性,还能弥补采光。
3.用折叠的玻璃门窗划分客厅和卧室空间,开合之间实现封闭与通透的自由切换。既保证了私密性,又不会影响采光与整体感。
客服
消息
收藏
下载
最近






















