查看完整案例

收藏

下载
破局:从厂房到一体化设计生产基地的迭代
Breaking the Impasse: Evolution from a Factory Building to an Integrated Design and Production Base
幻成设计中心项目,前身为一幢三层厂房,总建筑面积达6000平方米,每层面积2000平方米,整体呈长31米、宽65米的长方形框架结构。受限于建筑进深长的先天条件,室内普遍存在光线不足的问题,成为空间改造的核心痛点之一。幻成设计,是原有万升包装产业升级的核心载体与目标——我们旨在通过引入全新全自动生产线,结合幻成自身前端设计优势,构建“设计、打样、生产 ”一体化的全链条服务能力,精准对接高端包装需求甲方客户,助力万升包装实现产业破局、价值跃升。
The Huancheng Design Center project was formerly a three-storey factory building with a total construction area of 6,000 square meters (2,000 square meters per floor). It features a rectangular frame structure with a length of 31 meters and a width of 65 meters. Plagued by the inherent disadvantage of a deep building depth, insufficient indoor lighting has become a core pain point in the space renovation. Huancheng Design serves as the core carrier and goal of the industrial upgrading of the original Wansheng Packaging. We aim to build an integrated full-chain service capability covering design, prototyping and production by introducing a brand-new fully automatic production line and combining Huancheng’s inherent advantages in front-end design. This will enable precise alignment with high-end packaging clients and help Wansheng Packaging break the industrial impasse and achieve value enhancement.
▼办公楼改造后的外观, The exterior of the office building ©刘鹰
彼得·艾森曼他主张建筑应摆脱传统的功能主义束缚,追求形式的自主性和内在逻辑。他的设计常常通过复杂的几何关系和空间叠加,探索建筑作为一种语言系统的可能性。埃森曼建筑批判的核心:语言、结构与“不可判定性”本项目的破碎化设计理念形成呼应,以断裂、解构的设计手法,打破原有厂房的固有形态,既贴合“破局”的核心目标,也通过空间的重构与再生,实现了产业、功能与美学的三重升级。
Peter Eisenman advocates that architecture should break free from the constraints of traditional functionalism and pursue the autonomy and internal logic of form. His designs often explore the possibility of architecture as a linguistic system through complex geometric relationships and spatial superposition. The core of Eisenman’s architectural criticism lies in language, structure and “undecidability”. This project echoes the fragmented design concept with fractured and deconstructive design techniques to break the inherent form of the original factory building. It not only aligns with the core goal of “breaking the impasse” but also realizes the triple upgrading of industry, function and aesthetics through the reconstruction and regeneration of space.
▼入口设计, Entrance design©刘鹰
▼电梯, Elevator©刘鹰
外立面设计:彰显品牌,迭代质感
Façade Design: Highlighting the Brand and Upgrading the Texture
外立面的重新设计,核心是彰显幻成设计“时尚、前卫 ”的品牌调性,以及包装设计领域的产业特色。我们采用铝板和聚碳酸酯板铺设,既通过光影层次提升了建筑的精致度,又重新构建了原建筑立面比例结构,让建筑外观与品牌定位高度契合,实现从老旧厂房到高端设计基地的视觉蜕变。
The core of the redesigned façade is to highlight the fashionable and avant-garde brand tone of Huancheng Design and the industrial characteristics of the packaging design field. We adopted aluminum panels and polycarbonate panels for cladding, which not only enhance the delicacy of the building through the layers of light and shadow but also restructure the proportional structure of the original building’s façade. This makes the architectural appearance highly consistent with the brand positioning, achieving a visual transformation from an old factory building to a high-end design base.
▼空间设计:以线条破局,以光线赋活, Spatial Design: Breaking Boundaries with Lines, Bringing Life with Light ©刘鹰
针对长方形平面单调、空间灵活性不足的问题,我们采用多组大型斜线分割空间边角,在规整的长条式平面中,划分出大小各异、形态不规则的功能分区,既打破了原有空间的沉闷感,又赋予空间灵活度、层次感与秩序感,让单调的厂房空间焕发多元活力。考虑到建筑三层跨度较大且为平板结构,我们在竖向设计上打破原有结构板的局限,重点解决室内采光不足的问题。其中,我们移除屋顶主梁与次梁之间的部分楼板,嵌入玻璃结构,既实现了自然换气,又通过5米×1米的采光洞口引入充足阳光,让光线充盈整个空间,传递出温暖、明朗的空间情绪,彻底改变原有厂房阴暗压抑的质感。
To address the monotony of the rectangular plane and the lack of spatial flexibility, we used multiple groups of large diagonal lines to divide the space corners. Within the regular long-strip plane, we demarcated functional zones of varying sizes and irregular shapes, which not only break the dullness of the original space but also endow the space with flexibility, layering and a sense of order, breathing diverse vitality into the monotonous factory space. Considering the large span and flat plate structure of the third floor, we broke the limitations of the original structural slab in the vertical design, focusing on solving the problem of insufficient indoor lighting. Specifically, we removed part of the floor slab between the main and secondary roof beams and embedded glass structures, which not only realize natural ventilation but also introduce ample sunlight through lighting openings of 5m×1m. This fills the entire space with light, conveys a warm and bright spatial mood, and completely transforms the dark and depressing texture of the original factory building.
▼室内花园, Interior garden ©刘鹰
▼三楼挑空平台, Double-height space on the third floor©刘鹰
功能分区:贴合需求,精准布局
Functional Zoning: Aligning with Demands for Precise Layout
结合幻成设计的核心业务需求,我们对三层空间进行精准功能规划,实现空间价值最大化:
一层聚焦生产与接待,规划为全自动生产线与入户门厅,兼顾生产效率与接待质感;
二层定位为办公与交流空间,打造24小时可灵活使用的办公场景,满足团队协作与商务沟通需求;
三层主打展示与体验,设置展厅与全新体验厅,作为品牌展示、客户对接的核心场景;
In combination with the core business needs of Huancheng Design, we have carried out precise functional planning for the three-storey space to maximize spatial value:
1st Floor: Focused on production and reception, housing a fully automatic production line and an entrance hall to balance production efficiency and reception quality.
2nd Floor: Positioned as an office and communication space, creating a 24/7 flexible office environment to meet the needs of team collaboration and business communication.
3rd Floor: Highlighted exhibition and experience, with a showroom and a new experience hall serving as the core venues for brand display and client engagement.
▼二楼办公区,Second-floor office area©刘鹰
▼二楼经理室, Second Floor Manager’s Office©刘鹰
▼二楼接待室, Second-floor reception room©刘鹰
▼三楼过道,Third floor corridor©刘鹰
其中,展厅采用差异化设计,针对不同地区客户的审美与需求,打造风格各异的展示空间,提升客户体验的针对性与专业性。空间的 “断裂” 并非无序的拆解,而是对固有边界的精准切割:深色调展厅中,几何体量的错位悬挑、硬朗的折角线条打破了水平与垂直的常规秩序,木石材质的块面碰撞制造出视觉上的断裂感;红调围合空间里,曲面墙体与直线界面的对冲、内凹式展架的碎片化布局,让完整的围合感被刻意解构,形成有节制的视觉张力。这种断裂是批判性的,它拒绝了空间的单一叙事,让结构本身成为表达的核心。
Among them, the showroom features a differentiated design, with distinct display spaces tailored to the aesthetic tastes and demands of clients from different regions, enhancing the pertinence and professionalism of the client experience. The “fracture” of the space is not an unordered dismantling but a precise cutting of inherent boundaries: In the dark-toned showroom, the misplaced overhang of geometric volumes and tough angular lines break the conventional horizontal and vertical order, and the collision of wooden and stone block surfaces creates a visual sense of fracture. In the red-toned enclosed space, the confrontation between curved walls and linear interfaces, together with the fragmented layout of indented display racks, deliberately deconstructs the complete sense of enclosure and forms a restrained visual tension. This fracture is critical – it rejects the single narrative of space and makes the structure itself the core of expression.
▼三楼产品发布区,Third Floor Product Launch Area©刘鹰
▼小陈列展示区,Small Display Area©刘鹰
▼一体化的VIP展厅,Integrated VIP showroom©刘鹰
而 “通透” 则为这份断裂提供了平衡的支点,成为解构后的重构法则:金属构架与镜面材质在首层展厅中交织,通透的竖向杆件消解了实体墙体的厚重,让绿意从空中悬挑的景观区穿透至核心线;玻璃隔断、线性灯带的延伸,让封闭的功能区与开放展厅形成视觉连通,浅色木构展厅中,框架式结构的留白处理,更让光线、视线在 “断裂” 的构件之间自由游走。
“Transparency” serves as a balancing fulcrum for this fracture and becomes the reconstruction principle after deconstruction: Metal frames and mirror materials interweave in the first-floor showroom, and transparent vertical members dissolve the heaviness of solid walls, allowing greenery to penetrate from the overhanging aerial landscape area to the core line; the extension of glass partitions and linear light strips realizes visual connection between enclosed functional areas and the open showroom. In the light-colored wooden structure showroom, the blank design of the frame structure allows light and sight to flow freely between the “fractured” components.
▼VIP展厅,VIP showroom©刘鹰
▼玻璃反射的陈列展示区,Glass-reflected display area©刘鹰
▼走廊空间,Corridor space©刘鹰
总结:Conclusion
一个项目的成功,离不开甲方的信任与支持——感恩甲方的认可与配合,也让我们在解决实际空间问题、实现设计落地的过程中,进一步提升了自身的设计执行力与问题解决能力。本项目的设计语言,与彼得·艾森曼的破碎化设计理念形成呼应,以断裂、解构的设计手法,打破原有厂房的固有形态,既贴合“破局”的核心目标,也通过空间的重构与再生,实现了产业、功能与美学的三重升级。
The success of a project is inseparable from the trust and support of the client. We are grateful for the client’s recognition and cooperation, which has enabled us to further enhance our design execution and problem-solving capabilities in the process of addressing practical spatial issues and delivering the design. The design language of this project echoes Peter Eisenman’s fragmented design concept. By adopting fractured and deconstructive design techniques to break the inherent form of the original factory building, it not only aligns with the core goal of “breaking the impasse” but also realizes the triple upgrading of industry, function and aesthetics through the reconstruction and regeneration of space.
▼三楼门厅,Third Floor Lobby ©刘鹰
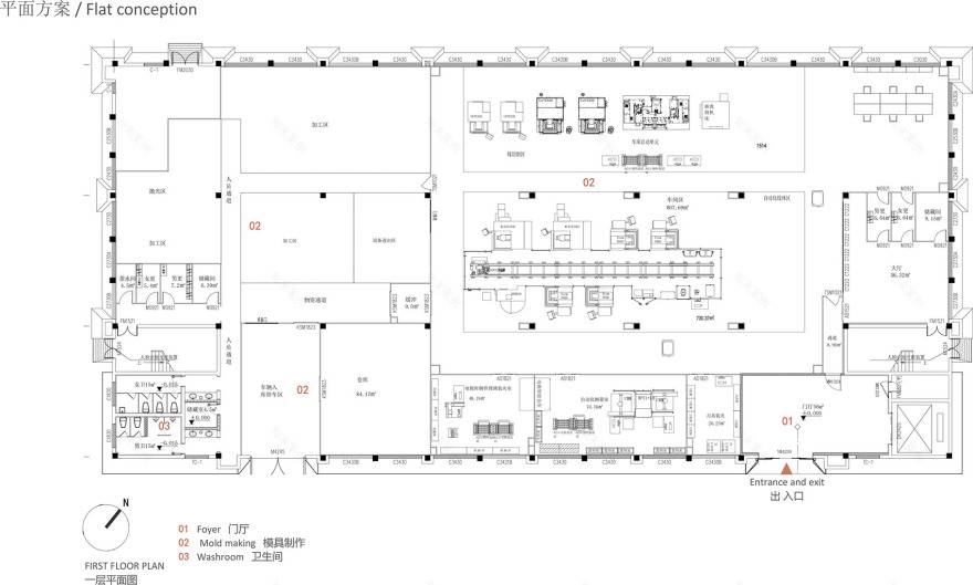
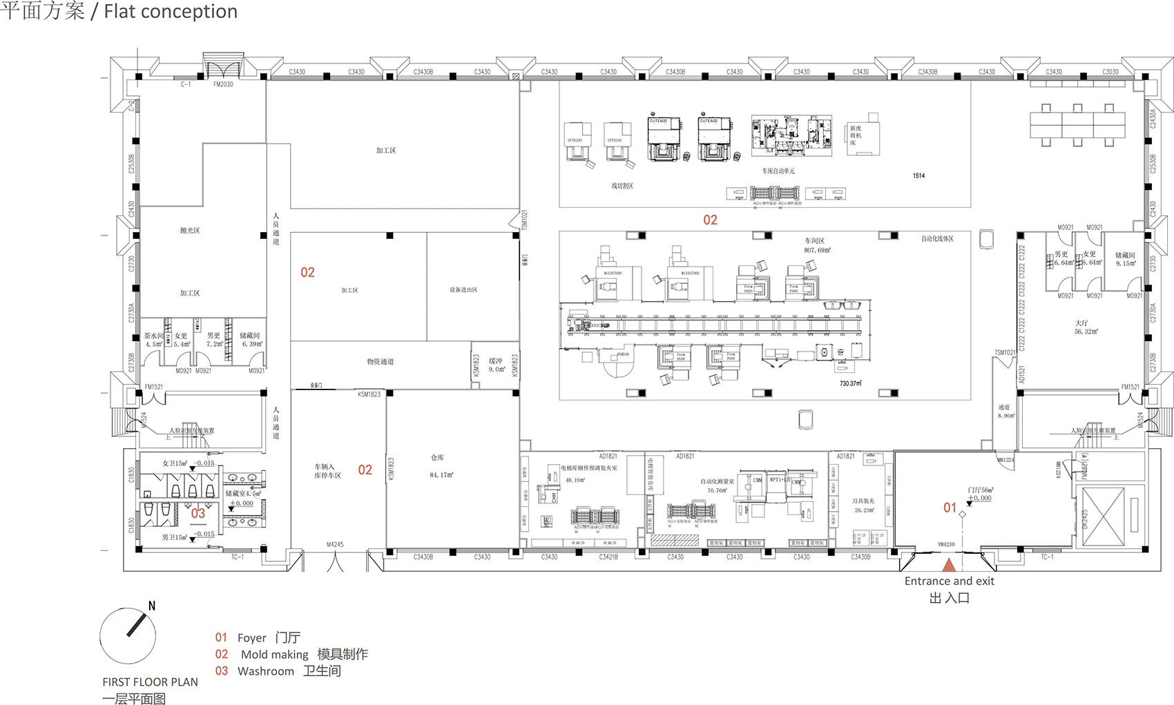
▼1F平面,1F plan ©慧空间设计机构
▼2F平面,2F plan ©慧空间设计机构
▼3F平面,3F plan ©慧空间设计机构
▼剖面,Section ©慧空间设计机构
项目名称:幻成设计中心
施工单位:绅豪装饰
完成时间:2025年12月
主案设计师:潘高峰
设计团队:毛巧鑫 唐君 汤焘玮
项目地址:绍兴上虞
建筑面积:6000平方米
摄影师:刘鹰
Project Name: Huancheng Design Center
Construction Contractor: Shenhao Decoration
Completion Date: December 2025
Lead Designer: Pan Gaofeng
Design Team: Mao Qiaoxin, Tang Jun, Tang Taowei
Project Location: Shangyu, Shaoxing
Building Area: 6,000 square meters
Photographer: Liu ying
客服
消息
收藏
下载
最近































