查看完整案例

收藏

下载
当极简成为泛滥的风格标签,我们更需要追问:剥离装饰之后,空间还剩下什么?今天分享的两个案例来自台湾的设计公司新橙设计,以材质的诚实、光线的叙事、尺度的精确,构建起人与空间的深层对话。大地色系在此不仅是视觉选择,更是一种价值立场——拒绝喧嚣,回归本真,在克制的奢华中安放当代生活的焦虑与渴望。
01
在米色深处
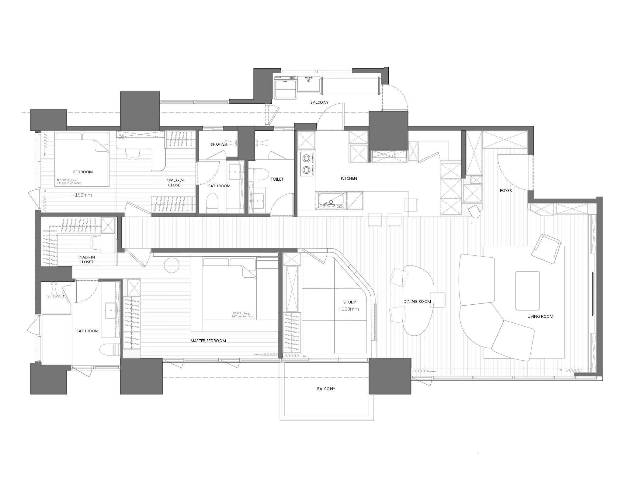
台湾台中 155㎡ 极简私宅
座落于台中西屯中科生活圈,这座室内面积达155平的居所,是新澄设计与屋主历时四载的深度对话。本案自预售屋阶段即展开规划,新澄设计设计总监黄重蔚深知一家三口对未来生活的期待,不仅仅是风格的堆砌,更是空间机能随时间流动的弹性。全屋以后极简主义(Post-Minimalism)为核心语彙,捨弃繁複的装饰符码,转而运用大面积的大地色系与天然材质,在温润的奶茶色调中,为屋主一家开闢一方静谧的栖所。
原有的三房格局虽方正,却也侷限了光影与空气的流动。设计团队大刀阔斧地拆除多数隔间,仅保留结构完整的小孩房,重新梳理出开放且自由的公领域动线。为了极大化窗外景观优势,主卧室向景观阳台延伸,将隔间牆精准落于铝窗框位点,改以大面落地窗取而代之。这项变动不仅强化了採光,更打破了室内外的疆界。客厅后方,一处“留白”的弹性区应运而生,它现在是孩子的创意乐园,未来则是书房或客房的备援空间。地面预留的铺设弹性,细腻考量了长辈留宿的温馨需求,展现设计对空间未来变动性的预留与考量。
餐厨区的转型是本案动线的另一亮点。黄重蔚将原先封闭、侷促的 L 型短边拆除,将厨房彻底解放。开放式的配置与餐厅一气呵成,中岛吧檯不仅是晨间享用轻食的据点,更成为连结客厅与厨房的社交核心。沙发后方配置的长桌,则扮演了场域转换的灵魂角色。它既是工作、阅读的静谧角落,也是亲友聚会时的谈笑中心,更陪伴著孩子完成每日功课。与之相邻的书房立面,以穿透式形式与俐落的线条分割,引领视线在不同维度间恣意游走,确保了155平的宽阔尺度不被牆面所阻断。
材质的选择,决定了后极简空间的温度。女屋主倾心的奶茶色调,在设计师笔下转化为细腻的沙色与米白层次。主卧室的端景牆为石材与木作的完美共舞,精选低色温、避开偏黄调性的“米色洞石”,以大面积铺陈展现石材天然的孔隙美学,搭配精緻的壁灯与吊灯,形塑出稳定且内敛的睡眠氛围。照明规划亦呼应了“减法”原则。减少了传统天花板繁琐的崁灯,取而代之的是线性灯带与间接光源。主卧衣柜採用感应式铝框烤漆玻璃,在光影明灭间,于雾面美感与取物便利性中取得平衡。柜体底部特意嵌入的发光灯带,消弭了家具的厚重感,让光影从地坪缓缓升起,勾勒出极简线条的轻盈秩序。
真正的设计,往往藏在看不见的细节裡。主卧床架採落地大框架设计,却考量家务负担,将两侧床板设计为“磁吸式固定”,让更换床单变得轻而易举。面对风水考量,玄关处巧妙设置屏风阻隔视线,小孩房则透过弧形柜体的转折,优雅迴避了正对厕所门的疑虑。电视牆亦是一场机能美学的实践。22 公分的进深内,整合了影音设备与杂乱的网络线路,并于玄关侧保留维修便利性。这种“隐于无形”的设计思考,让整体视觉面始终维持清爽俐落,体现了后极简主义对“纯粹生活”的最高致敬。
平面布局图
项目名称|
以大地色系与极简语言,构筑155平弹性功能
项目地点|
台湾 台中
项目面积|
155㎡
设计机构|
新橙设计
02
杉苒
台湾台中300㎡当代极简主义
坐落于台中七期重划核心地段,内部空间以300平米,毛胚格局,赋予设计以无限可能。设计团队承袭“全龄宅”的精神,揉合现代极简的美学语彙,于空间中蕴藏人性化的考量与细腻的情感温度。自然石材与温润木纹搭配,手刷纹理流淌于牆面与细节巧妙的与光线融合交织,彷彿将自然的律动注入日常。
推门而入,豁然开朗的空间叙事缓缓展开。设计师以视觉开阔性为核心切入点,自玄关便注入对材质与氛围的深刻诠释。两侧米白色莱姆石与温润木质如一场和谐的对话,天然肌理间流露出沉稳而朴质的气息。视线随之延展,直抵公领域的壮阔落地窗,窗外景緻犹如动态画布,成为空间的灵魂核心。
公领域的规划,既忠于建筑的本质,也深思人与空间的互动关係。以开放式设计串联客厅、餐厅与厨房功能,整体格局流畅通透,暖色系基调铺陈出家的温度,为一家七口创造了彼此共融的场所。电视牆的设计尤为引人注目,採用莱姆石以细腻的拼接工艺呈现。整齐的排列结构拉伸了空间的视觉感知,而天然纹理则赋予牆面一种低调而内敛的自然之美。
当光影随日升日落游走于石材表面,变幻的纹理彷彿是一幅幅大自然的画作,为空间注入诗意与灵动。在这裡,设计不仅止于形式,更成为一种生活的艺术化表达,让人于日常之中,感知自然的恬静与家的温暖。
主卧空间以极简哲学为设计基调,捨弃多馀的装饰性语彙,专注于纯粹与实用之间的平衡。材质与结构的选择贴合居住者的生活需求,空间成为五感放鬆的休憩之地。每一处设计都如诗般内敛,却暗藏细腻的机能思考。
平面布局图
项目名称|
杉苒
设计出品|
新橙设计
室内面积|
300 ㎡
项目地址|
台湾 台中
客服
消息
收藏
下载
最近













































