查看完整案例

收藏

下载
LUC Lifestyle综合体被构想为一个当代目的地,将餐饮、时尚、香氛、美学牙科护理以及巴厘岛传统工艺无缝融合为一体化的高品质体验。其核心设计理念在于打造一个充满活力的枢纽空间,既反映苍古(Canggu)充满活力的国际化能量,又致敬岛屿自身的文化身份。这一愿景不仅引导了整体生活方式概念,也塑造了贯穿整个开发项目的建筑语言。
The LUC Lifestyle is envisioned as a contemporary destination that seamlessly blends food and beverages, fashion, fragrance, aesthetic dental care, and traditional Balinese craftsmanship into a single elevated experience. Its core design idea is to create a vibrant hub that reflects the dynamic, international energy of Canggu while honoring the island’s cultural identity. This vision guided not only the lifestyle concept but also the architectural language that defines the entire development.
▼项目鸟瞰,Aerial view of the project © Indra Wiras
巴厘岛于2023年在TripAdvisor上被评为全球最受欢迎的旅游目的地,加之苍古持续崛起、现每年接待逾一百万名访客,这些都构成了LUC战略愿景的基础。面对不断增长的受众,LUC Lifestyle综合体的建筑设计拥抱开放性、流动性与连接性。其空间被构想为现代平台,使全球影响与本土真实性交汇,确保每位访客既能体验便利,也能感受独特个性。
▼生物气候分析图,Bioclimatic diagram © Atelier Generation Vasudeva Design
Bali’s recognition as the world’s most popular destination on TripAdvisor in 2023, along with Canggu’s continued rise, now welcoming over one million visitors annually, serves as the foundation for The LUC’s strategic ambition. In response to this growing audience, the architecture of The LUC Lifestyle embraces openness, movement, and connection. Its spaces are designed as modern platforms where global influences meet local authenticity, ensuring every visitor encounters both convenience and character.
▼光影交织的立面,Light-filtering façade © Indra Wiras
▼开放式商业中庭,Open commercial courtyard © Indra Wiras
项目距离贝拉瓦(Berawa)冲浪海滩步行仅三分钟,坐落于以健康生活方式与现代岛屿文化著称的核心区域。建筑设计直接汲取这一环境灵感。简洁的当代线条、自然材质肌理、繁茂的景观设计以及宽敞的户外流线空间,共同呼应长谷悠闲的海岸氛围。同时,建筑精致的结构几何与精心组织的空间流线体现出更为提升的城市感,使其自然融入周边咖啡馆、精品店、市集、国际学校以及世界知名海滩俱乐部所构成的语境之中。
Located just three minutes on foot from Berawa’s surf beach, The LUC is positioned at the heart of an area celebrated for healthy living and modern island culture. The architectural design takes direct inspiration from this environment. Clean contemporary lines, natural material palettes, lush landscaping, and generous outdoor circulation zones echo Canggu’s relaxed coastal atmosphere. At the same time, the building’s refined structural geometry and curated spatial flow reflect an elevated urban sensibility, making it a natural complement to the surrounding cafés, boutiques, markets, international schools, and world-renowned beach clubs.
▼室内外连续空间,Seamless indoor–outdoor transition © Indra Wiras
可达性与体验塑造了建筑的形态与功能。距离伍拉·赖国际机场仅30分钟车程,LUC旨在成为游客抵达巴厘岛的第一印象,同时也是一个精致的日常目的地。其建筑优先考虑直观的流线组织、室内外空间之间的无缝过渡,以及可灵活适应岛屿蓬勃发展的生活方式市场需求的商业空间。
▼建筑形态演变图,Building transformation diagram © Atelier Generation Vasudeva Design
Accessibility and experience shape the building’s form and function. Just 30 minutes from Ngurah Rai International Airport, The LUC is intended to serve as both a welcoming first impression of Bali and a sophisticated everyday destination. Its architecture prioritizes intuitive pathways, seamless transitions between indoor and outdoor areas, and flexible commercial spaces that adapt easily to the evolving demands of the island’s thriving lifestyle market.
▼一层公共空间,Ground floor public space © Indra Wiras
▼旋转楼梯,Spiral staircase © Indra Wiras
▼餐厅,Restaurant © Indra Wiras
▼零售商店,Retail store © Indra Wiras
通过将周密的设计与市场洞察相结合,LUC Lifestyle不仅是一处商业综合体,更是一种经策划的建筑体验。最终呈现的是一个现代生活方式目的地,在这里,空间、文化与功能相互交织,营造出兼具视觉辨识度与情感吸引力的环境,并与长谷未来生活方式的发展方向高度契合。
▼功能分解轴测图,Lifestyle exploded axonometric © Atelier Generation Vasudeva Design
By integrating thoughtful design with market insight, The LUC Lifestyle becomes more than a commercial complex—it becomes a curated architectural experience. The result is a modern lifestyle destination where space, culture, and function come together, offering an environment that is visually distinctive, emotionally engaging, and perfectly aligned with the future of living in Canggu.
▼鸟瞰夜景,Aerial night view © Indra Wiras
▼外观夜览,Exterior night view © Indra Wiras
▼开放式商业中庭夜景,Open commercial courtyard night view © Indra Wiras
▼一层公共空间夜景,Ground floor public space night view © Indra Wiras
▼餐厅夜景,Restaurant night view © Indra Wiras
▼零售商店夜景,Retail store night view © Indra Wiras
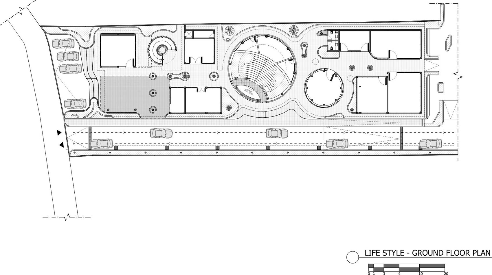
▼首层平面图,Ground floor layout plan © Atelier Generation Vasudeva Design
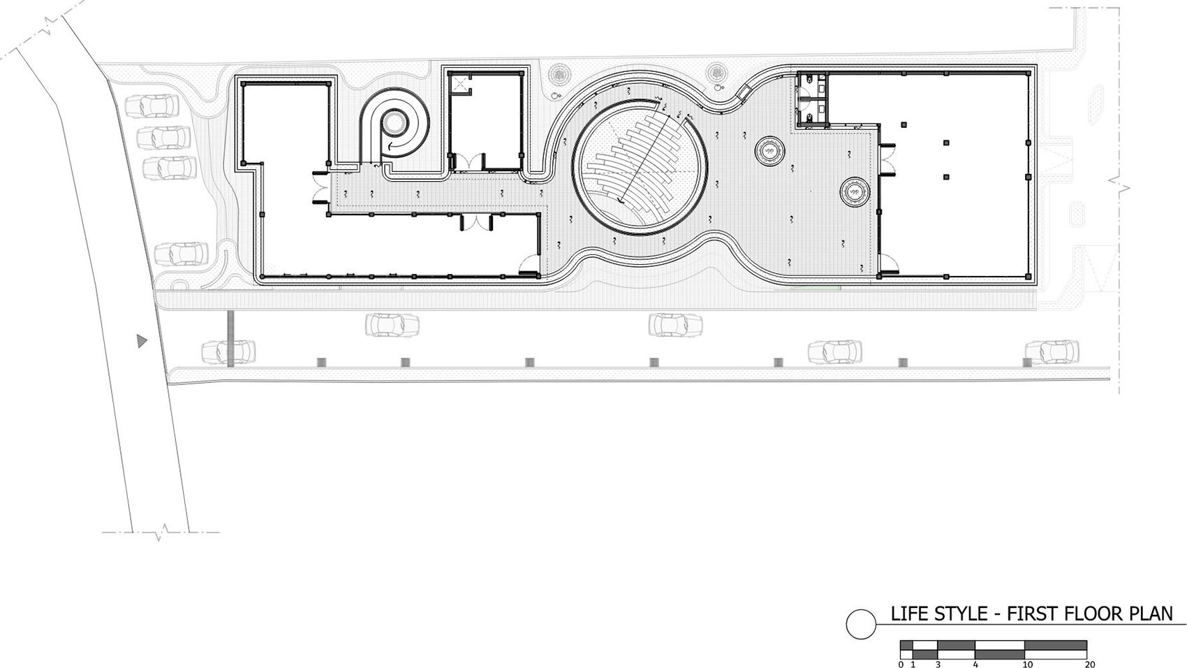
▼二层平面图,First floor layout plan © Atelier Generation Vasudeva Design
▼屋顶平面图,Roof plan © Atelier Generation Vasudeva Design
Project Name: The Luc Lifestyle
Office Name: Atelier Generation Vasudeva Design
Social Media Accounts: @ateliergvd_rh & @ateliergvd_rc
Firm Location: Bali
Completion Year: 2024
Gross Built Area (m2/ ft2): 908.2 m2
Project Location: Berawa, Bali
Program / Use / Building Function: Commercial
Lead Architects:
Ar. I Putu Angga Prastika, S.T. IAI.
Ar. Julius Saptian Gunawan, S.Ars., IAI.
Architectural Designer Team:
Ar. Sang Ayu Putu Cantika A. S.Ars. IAI.
Ar. I Kadek Wahyu Sanjaya, S.Ars. IAI.
Davey Rezon, S.Ars.
Ar. Gayatri Wening Satyatama, S.Ars. IAI.
Photographer:
Photo Credits: Indra Wiras
客服
消息
收藏
下载
最近










































