查看完整案例

收藏

下载
本案原始格局为标准四房两卫,带有景观阳台与入户花园,室内空间配置完整。考量业主以静态活动为主的生活习惯,如阅读、模型制作与植栽照护等,设计团队选择在保留原有格局的前提下,针对开口、动线与视线节点进行微调,强化空间弹性与使用感知。
设计手法上,团队将原先卧室出入口集中于单一方向配置的格局,改为四向分散式配置,导入非线性空间节点,使视觉轴线得以在横向与纵向间交错串联,形塑出十字型动线布局,进一步扩展室内的使用弹性与视野范围。这项调整并非为了形式上的创新,而是回应日常居住中对空间流动性与使用逻辑的实际需求。陈煦指出:“在空间中不特别强调洄游动线,而是希望人在单一动线中反覆走过,能从不同角度感受空间,带来层次感与惊喜。”此一策略不仅有助于使用者建立空间的辨识记忆,也让各区功能划分更清晰、串联更顺畅。
在具体配置上,主卧与模型工作室之间设置视线开口,使两个空间在维持机能独立的前提下,保有适度的视觉连结。客厅与厨房之间的原有牆体也经重新调整,透过打开界面、释放边界,提升空间的流动性,并强化跨区域之间的整合感。
在设备与家具思考上,此案也进一步强化与结构的整合性。设计团队将柜体等机能收纳嵌入牆体与动线节点,使其成为空间界面的引导元素。例如厨房原本内部预留空间有限,透过打 通玄关,并将部分柜体移转至邻接的玄关柜背牆,成功释放主要操作区的使用馀裕。由于玄关对面即为餐厅区,整体动线衔接顺畅,机能使用上也更加直觉。次卫则採三分离设计,将洗手檯外置至走道区域,表现东方的自然形式,同时也提升了清洁与维护的便利性。“我们在功能尺度上特别关注,让日常使用的每项功能都能在相对宽裕的空间中完成,而非压缩到最小来凑合。”陈煦补充道。
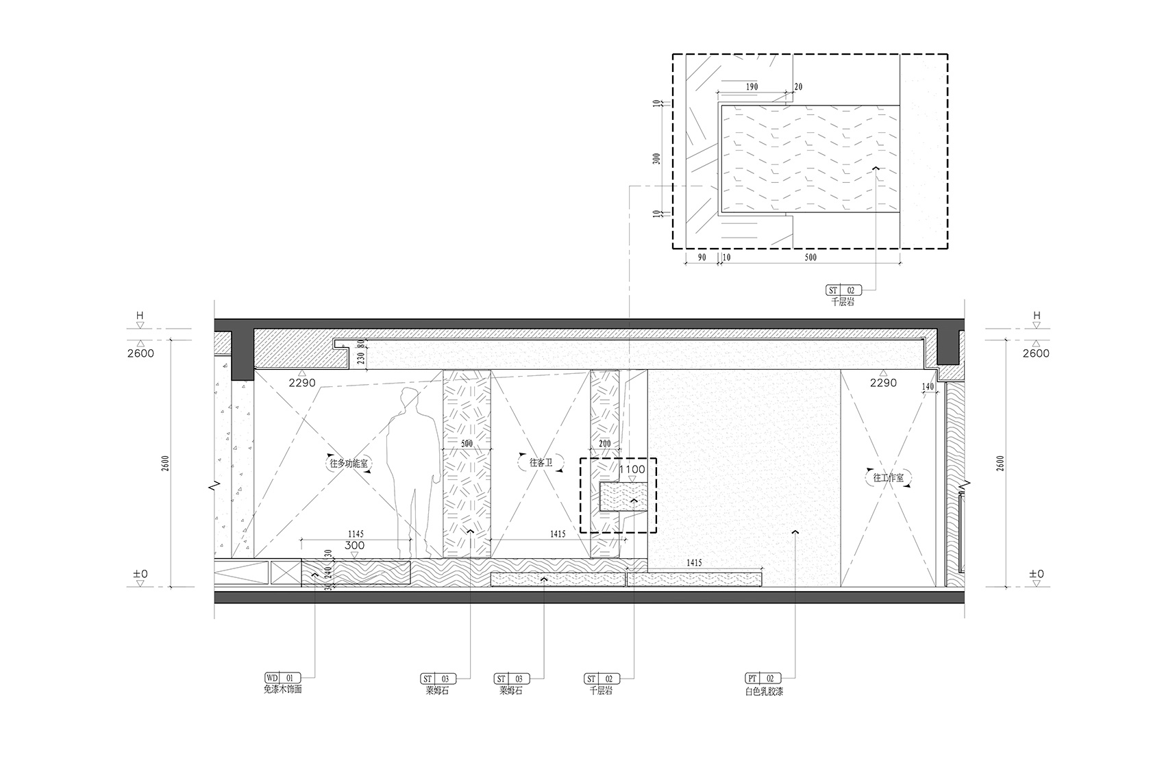
地坪部分採用30∼32公分高的地台设计,作为主要的隐藏式收纳系统。陈煦指出,这类抬高处理是团队在多个专案中常见的设计手法,目的不只是为了形式呈现,更在于“释放立面尺度与视线距离,形成更高效的收纳方式”。此外,透过地坪高低错落的设计,也增添空间层次感,强化使用者的空间感知,让空间不仅在功能上达成整合,也在视觉上有丰富的变化与节奏。这类“平台式家具”的配置,实际上也是将收纳机能结构化,纳入整体空间系统中,避免另设大量柜体而干扰整体视觉的统一性。
空间以纯白作为主体色,搭配木皮与天然石材,营造出稳定且温润的整体调性。
原本空间的开口方向各自独立,造成动线分散、视线受限。设计团队透过重新调整出入口位置,整合空间动线,释放原有潜力,形塑出自由流动的动线关係。这样的配置不仅提升室内使用的弹性,也扩展视觉延伸的可能性,使人得以自在游走其中,感受空间层次的变化与节奏。
设计依据建筑结构特性,利用结构间隙与高度差作为收纳配置基础,使空间机能与结构相辅相成,提升整合度与使用效益。设计团队将地台架高约30至32公分,兼具主要收纳功能,有效避免零散家具干扰视线,维持空间整洁与开放感,同时释放牆面空间,提升整体使用效率。
传统卫浴多是合併式空间,容易在使用尖峰时段造成机能衝突,影响使用效率。为了解决这个问题,次卫浴改採三分离设计,把洗手檯移到走道区域,分散使用动线,降低尖峰时段的干扰,也方便清洁和维护。这样的配置同时结合设备与结构整合,让空间使用更有效率,机能协调性也更好。
设计打破卧室出入口集中在单一方向的旧有格局,改以四向分散方式导入非线性节点,让视觉与动线在空间中自由穿梭,并透过阳台引光入室、明确划分功能区域,串联起工作与生活、开放与私密的多重需求。
客服
消息
收藏
下载
最近













