查看完整案例

收藏

下载
项目名称:昆山元丰路消防站
位置:江苏
设计单位:亘建筑事务所
图片数量:41张
地块位于昆山高新区城郊,周围规划为工业园区,初到现场时,周围还是空地,西侧的小河连通南侧不远的吴淞江,它的下游就是苏州河,在上海外滩汇入黄浦江。▼位于吴淞江畔工业园区旁的昆山元丰路消防站©陈颢
项目一开始并没有一份完整的任务书,我们先去了解了消防员的日常。消防员需要全天候驻留在消防站,出警只是工作的一部分。值班、等待、训练、吃饭、娱乐、休息……大部分时间是在站内度过。消防站通常只被当作一个高效的装置,但其实效率并不是唯一的问题,我们认为这个设计还有一个主题:作为一个容纳日常生活的地方,空间应该怎么组织,才不会让时间太难熬。讨论过程中,有一个硬性要求始终非常明确:从接到指令到到达消防车库,必须控制在两分钟之内。刚性的需求能让设计展开变得明确,设计的很多决定,都首先围绕着这个核心。
▼总平面图©亘建筑
▼庭院是建筑的另一个中心©陈颢
▼作为整个消防站建筑核心的车库©陈颢
我们把消防车库当作整个建筑的核心,它既是出警的起点,也是整个建筑秩序的中心。它被设计成一个类似厂房的空间,柱、梁、板,一层一层往上叠加,构成一个结构逻辑清晰的体系。我们希望这个空间像一个儿童装玩具车的箱子,或者一个工具箱,每一件东西都有自己的位置,一切都清晰明了的摆在那里。▼剖透视图©亘建筑
▼柱、梁、板层层叠加的车库是整个建筑的核心©陈颢
与传统的封闭式车库不同,车库顶部设置了通长的高窗和拔风的缝隙,以利用日光照明和自然通风。这也为这个空间赋予了一种与外界环境连通的氛围。白天,站在明亮的车库里,可以看到上方的天空,也可以透过健身空间看到南侧的庭院,车库不再只是一个储存用的盒子,而是成为日常生活可以经过的场地。电动折叠门平常是完全关闭的,在人视高的位置有一排视窗。出警时,门可以完全打开。▼从车库透过健身空间看到南侧的庭院©陈颢
▼两侧的天窗让车库变得明亮©陈颢
▼高敞的车库和压低的健身空间©陈颢
▼车库的电动折叠门平常完全关闭,在人视高度有一排视窗©陈颢
▼车库电动折叠门的开启©陈颢
消防员的宿舍被安排在紧邻车库的南侧,朝向庭院,可以通过北侧的走廊快速出警。健身,办公,会议,娱乐也都围绕庭院组织。庭院是这个建筑的另一个中心——等候与日常生活的中心。▼空间示意图©亘建筑
▼朝向庭院的宿舍©陈颢
▼被宿舍、健身房、餐厅围绕的庭院是日常生活的中心©陈颢
▼从庭院看上一层的健身空间和二层的宿舍©亘建筑
▼每间宿舍都有朝向庭院的阳台©亘建筑
通长的天窗放置在几个关键位置,让车库、宿舍走廊、卫生间、楼梯间白天都有自然采光。车库天窗的形式很简单,从室内看去,就是一个朝北开口的洞。天窗和屋顶都是钢结构体系,表面涂漆,放置在清水混凝土框架之上,分别扮演了覆盖与承重的角色。
▼主楼结构关系示意图©亘建筑
▼车库上方的天窗©陈颢
▼宿舍走廊的采光天窗©陈颢
▼由高侧窗带来自然采光的东侧楼梯间©亘建筑
▼西侧楼梯间一层©亘建筑
▼西侧楼梯间二层©亘建筑
项目进行到后期时遇到疫情。消防员长时间无法外出活动,大队长希望增加一个下雨天也能打球的篮球场。这个需求并不在最初的设想中,但却很合理。最终,我们在场地南端搭建了一个半室外的篮球场。为了尽量减少结构总量,采用了膜结构,并利用了原来的建筑屋顶和训练塔为结构,辅以几根立柱,完成了这个覆盖。▼篮球场顶棚结构关系示意图©亘建筑
▼篮球场的膜结构顶棚挡雨,侧面半透膜遮挡南向的直射光©陈颢
▼主楼南侧的风雨篮球场是消防员们在紧张备勤之余的放松场所©陈颢
▼消防站的主楼、训练塔,以及由主楼和训练塔共同支撑起的篮球场顶棚©陈颢
在方案的推进过程中,车库与出警动线始终是核心,其余功能围绕它逐步展开。不同功能与车库的亲疏远近,人的行动路线,采光方向,通风方式,用餐和健身的感受,都围绕着这个中心逐步生长。这个建筑的确是高度功能化的,但围绕着这个坚硬的内核,我们也希望空间不要过度紧张,让人在重复和等待之中,也能感受到一点放松和舒适。
▼从健身空间看向车库©陈颢
▼金属折叠门和混凝土框架构成的车库外立面©陈颢
▼透过车库和健身空间看向庭院©陈颢
▼夕阳下的消防站©陈颢
▼由主楼、训练塔和篮球场组成的消防站©亘建筑
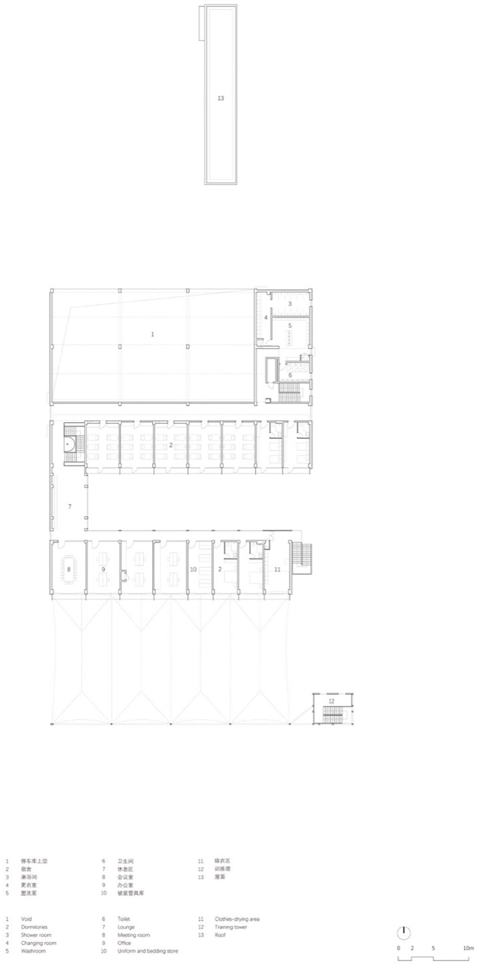
▼一层平面图©亘建筑
▼二层平面图©亘建筑
▼屋顶平面图©亘建筑
▼南立面图©亘建筑
▼北立面图©亘建筑
▼西立面图©亘建筑
▼东立面图©亘建筑
▼剖面图©亘建筑
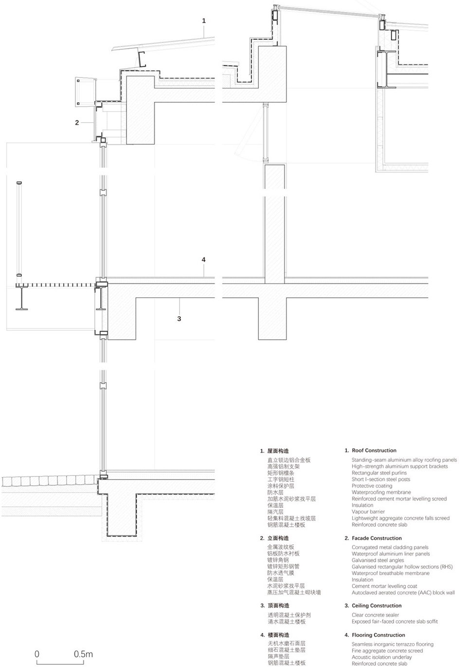
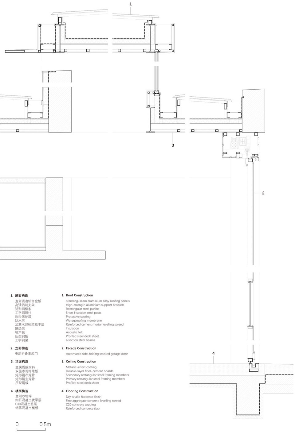
▼详图一©亘建筑
▼详图二©亘建筑
▼详图三©亘建筑
项目名称:昆山元丰路消防站
项目地点:江苏昆山
建筑、室内、景观设计:亘建筑事务所
主持建筑师:范蓓蕾、薛喆、孔锐
方案阶段负责人:张怡羚
深化阶段负责人:薛君
施工阶段负责人:宋崇芳
设计团队: 邱圣禄、王诗羽、陈希、钱佳、余晨埜、庞寅雷、张佳馨、李涵之
结构设计:张准、胡晓劼、蔡研明 / 和作结构建筑研究所
机电设计:梁明、潘珅、万华军、刘剑平 / 上海勘察设计研究院(集团)有限公司
金属立面顾问:来实Lysaght
膜结构顾问:法拉利Serge Ferrari
车库折叠门顾问:诺沃芬Novoferm
合作设计院:苏州中海建筑设计有限公司
业主:昆山市玉山镇人民政府
施工总包:天合建设集团有限公司
膜结构专项施工:上海迈博张拉膜结构工程技术有限公司
车库折叠门施工:三和诺沃芬门业(常熟)有限公司
类型:新建
功能:公共服务设施
占地面积:6996㎡
建筑面积:3216㎡
设计时间:2020年7月至2023年8月
施工时间:2022年6月至2024年10月
建成时间:2024年10月
项目状态:建成
结构类型:混凝土结构、钢结构、膜结构
主要材料:混凝土、钢、金属波纹板、PVDF 聚酯基布膜材
摄影:陈颢、亘建筑
客服
消息
收藏
下载
最近












































